Zandweegbree 4 – Wolvega
Kenmerken
Status
Vraagprijs
Oplevering
Energielabel
Bouwjaar
Inhoud
Woonoppervlakte
Aantal kamers
Aantal slaapkamers
Aantal badkamers
Perceeloppervlakte
Buitenruimte
Ligging tuin
Oppervlakte
Garage
Omschrijving
Vrijstaande gasloze villa met royale tuin en energielabel A++++ in Wolvega. Welkom bij deze moderne en energiezuinige vrijstaande villa, prachtig gelegen aan de rand van Wolvega in een kleinschalige, ruim opgezette villawijk. Deze in 2009 gebouwde woning is met uitsluitend hoogwaardige materialen gerealiseerd en biedt een perfecte mix van luxe, ruimte en comfort in een rustige, groene omgeving. Met het centrum van Wolvega en diverse uitvalswegen op slechts enkele minuten afstand, combineer je hier landelijk wonen met stedelijk gemak.
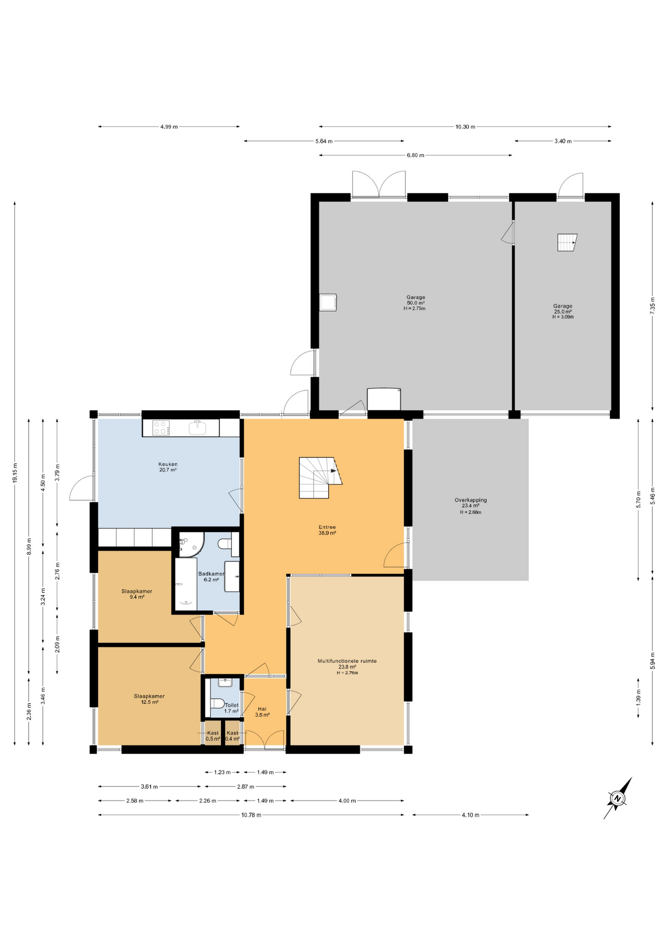
De villa heeft een woonoppervlakte van ca. 248m², een dubbele en een enkele inpandige garage en ligt op een royaal perceel van 1.163 m² eigen grond. De fraai aangelegde tuin rondom de woning biedt meerdere terrassen, een groot gazon en volop parkeergelegenheid op eigen terrein.
BEGANE GROND
Bij aankomst valt direct de verzorgde uitstraling en de royale oprit op. Binnenkomen doe je droog via de carport. De ruime hal met imposante trapopgang vormt een prachtige binnenkomst en biedt tevens toegang tot de garages.
Aanwezig zijn een carport en 3 inpandige garages waarvan de dubbele (ca. 50 m²) voorzien is van vloerverwarming en de derde extra hoog (3,09m) is om een camper te kunnen stallen.
Onder de carport is een laadpunt voor je elektrische auto. Beide garages zijn voorzien van een hand bedienbare sectionaaldeur.
Via de entree aan de voorzijde kom je in het tochtportaal, dat toegang geeft tot de uitgebreide meterkast, een toilet met fontein en een praktijkruimte van ca. 24 m². Deze veelzijdige ruimte kun je perfect gebruiken als kantoor, salon of ga
Vrijstaande gasloze villa met royale tuin en energielabel A++++ in Wolvega. Welkom bij deze moderne en energiezuinige vrijstaande villa, prachtig gelegen aan de rand van Wolvega in een kleinschalige, ruim opgezette villawijk. Deze in 2009 gebouwde
Vrijstaande gasloze villa met royale tuin en energielabel A++++ in Wolvega. Welkom bij deze moderne en energiezuinige vrijstaande villa, prachtig gelegen aan de rand van Wolvega in een kleinschalige, ruim opgezette villawijk. Deze in 2009 gebouwde woning is met uitsluitend hoogwaardige materialen gerealiseerd en biedt een perfecte mix van luxe, ruimte en comfort in een rustige, groene omgeving. Met het centrum van Wolvega en diverse uitvalswegen op slechts enkele minuten afstand, combineer je hier landelijk wonen met stedelijk gemak.
De villa heeft een woonoppervlakte van ca. 248m², een dubbele en een enkele inpandige garage en ligt op een royaal perceel van 1.163 m² eigen grond. De fraai aangelegde tuin rondom de woning biedt meerdere terrassen, een groot gazon en volop parkeergelegenheid op eigen terrein.
BEGANE GROND
Bij aankomst valt direct de verzorgde uitstraling en de royale oprit op. Binnenkomen doe je droog via de carport. De ruime hal met imposante trapopgang vormt een prachtige binnenkomst en biedt tevens toegang tot de garages.
Aanwezig zijn een carport en 3 inpandige garages waarvan de dubbele (ca. 50 m²) voorzien is van vloerverwarming en de derde extra hoog (3,09m) is om een camper te kunnen stallen.
Onder de carport is een laadpunt voor je elektrische auto. Beide garages zijn voorzien van een hand bedienbare sectionaaldeur.
Via de entree aan de voorzijde kom je in het tochtportaal, dat toegang geeft tot de uitgebreide meterkast, een toilet met fontein en een praktijkruimte van ca. 24 m². Deze veelzijdige ruimte kun je perfect gebruiken als kantoor, salon of gastenverblijf. Verder vind je op de begane grond nog twee slaapkamers, een complete badkamer en een lichte, tuingerichte keuken met uitzicht op het groen.
EERSTE VERDIEPING
Via de imposante trapopgang kom je op de lichte overloop met grote raampartijen. Hier is bij het ontwerp al rekening gehouden met de mogelijkheid om een lift te realiseren.
De royale living van ca. 50 m² is ingedeeld met een gezellige zithoek, tv-hoek en een ruime keukenopstelling. Wonen op de verdieping betekent hier genieten van prachtige zichtlijnen aan alle kanten en overvloedig daglicht. De grote ramen (schuifpuien) die geheel open geschoven kunnen worden geven toegang tot het dakterras. Stijlvolle spotverlichting en het royale dakterras rondom zorgen voor een unieke woonbeleving.
Woonkamer en keuken zijn rondom voorzien van rolluiken en er is een airco aanwezig voor koeling en bijverwarming.
De open woonkeuken met modern kookeiland en luxe apparatenwand is een echte blikvanger. Hier kun je heerlijk koken, eten en samen genieten.
De overloop met vide en grote ramen versterkt het gevoel van licht en ruimte. Op deze verdieping vind je twee comfortabele slaapkamers en een royale badkamer.
De master bedroom (ca. 20 m²) biedt genoeg ruimte voor een groot bed en beschikt over een praktische inloopkast (walk in closet). De moderne en-suite badkamer is ook via de overloop bereikbaar. Daarnaast is er een separaat toilet en een berging van ca. 5 m² aanwezig.
TUIN
De fraai aangelegde tuin ligt op het noordwesten en grenst aan een rustige bossingel, waardoor je geniet van optimale privacy en is geheel omsloten door een hekwerk. De tuin is met meerdere terrassen, een groot gazon, volwassen beplanting en een zitkuil aan het water de ideale plek om te ontspannen of gasten te ontvangen. Dankzij de gunstige ligging vind je de hele dag door wel een zonnig plekje. Uw gazon wordt gemaaid door een robotmaaier die bij de koop is inbegrepen.
OMGEVING
Wolvega is een levendige plaats met een breed aanbod aan voorzieningen zoals winkels, scholen, horeca en sportfaciliteiten (sportschool op 200 m). Door de centrale ligging nabij de A32 heb je uitstekende verbindingen richting Heerenveen, Leeuwarden, Meppel en Zwolle. Station Wolvega ligt op loopafstand ( 10 minuten)
Daarnaast liggen de uitgestrekte natuurgebieden van het Drents-Friese Wold en de Weerribben-Wieden binnen handbereik, perfect als je houdt van wandelen, fietsen of het buitenleven.
BIJZONDERHEDEN
+ Bouwjaar 2009;
+ 28 zonnepanelen;
+ Energielabel A, volledig geïsoleerd;
+ Verwarming en warm water middels luchtwarmtepomp met boilervat;
+ Woning heeft geen gasaansluiting meer;
+ In de woonkamer/keuken is voor koeling en bijverwarming een airco aanwezig;
+ Volledige vloerverwarming op zowel begane grond als verdieping;
+ Zoneregeling op het verwarming systeem d.w.z. in iedere ruimte een thermostaat;
+ Inpandige dubbele garage van ca. 55 m² met vloerverwarming en daarnaast nog een extra hoge garage voor een camper;
+ Fraai aangelegde tuin op het noordwesten met veel privacy;
+ Parkeergelegenheid voor meerdere (5) auto’s op eigen terrein;
+ Perceeloppervlakte 1.163 m²;
+ Tot in de puntjes verzorgd en uitstekend onderhouden;
+ Gehele woning voorzien van kunststof kozijnen;
+ Centraal stofzuigsysteem;
+ Geschikt voor dubbele bewoning of praktijk aan huis (d.w.z. 2 keukens, 2 badkamers , 4 WC’s, twee hoofdingangen);
+ Robotmaaier voor het gazon.
Interesse?
Heb je interesse in deze woning of wil je een bezichtiging inplannen? Wij helpen je graag."*" geeft vereiste velden aan
Video
Plattegrond










