van Ostadestraat 40 – Leeuwarden
Kenmerken
Status
Vraagprijs
Oplevering
Energielabel
Bouwjaar
Inhoud
Woonoppervlakte
Aantal kamers
Aantal slaapkamers
Aantal badkamers
Perceeloppervlakte
Buitenruimte
Ligging tuin
Oppervlakte
Garage
Omschrijving
Wonen in een van de zonnigste huizen van Huizum West? Dan is Van Ostadestraat 40 absoluut een bezichtiging waard. Deze fijne tussenwoning met circa 90 m2 woonoppervlak, twee slaapkamers, een tuin op het westen en een heerlijke houtkachel biedt een warme basis om helemaal naar eigen smaak verder vorm te geven. Een huis met karakter, licht en volop mogelijkheden.
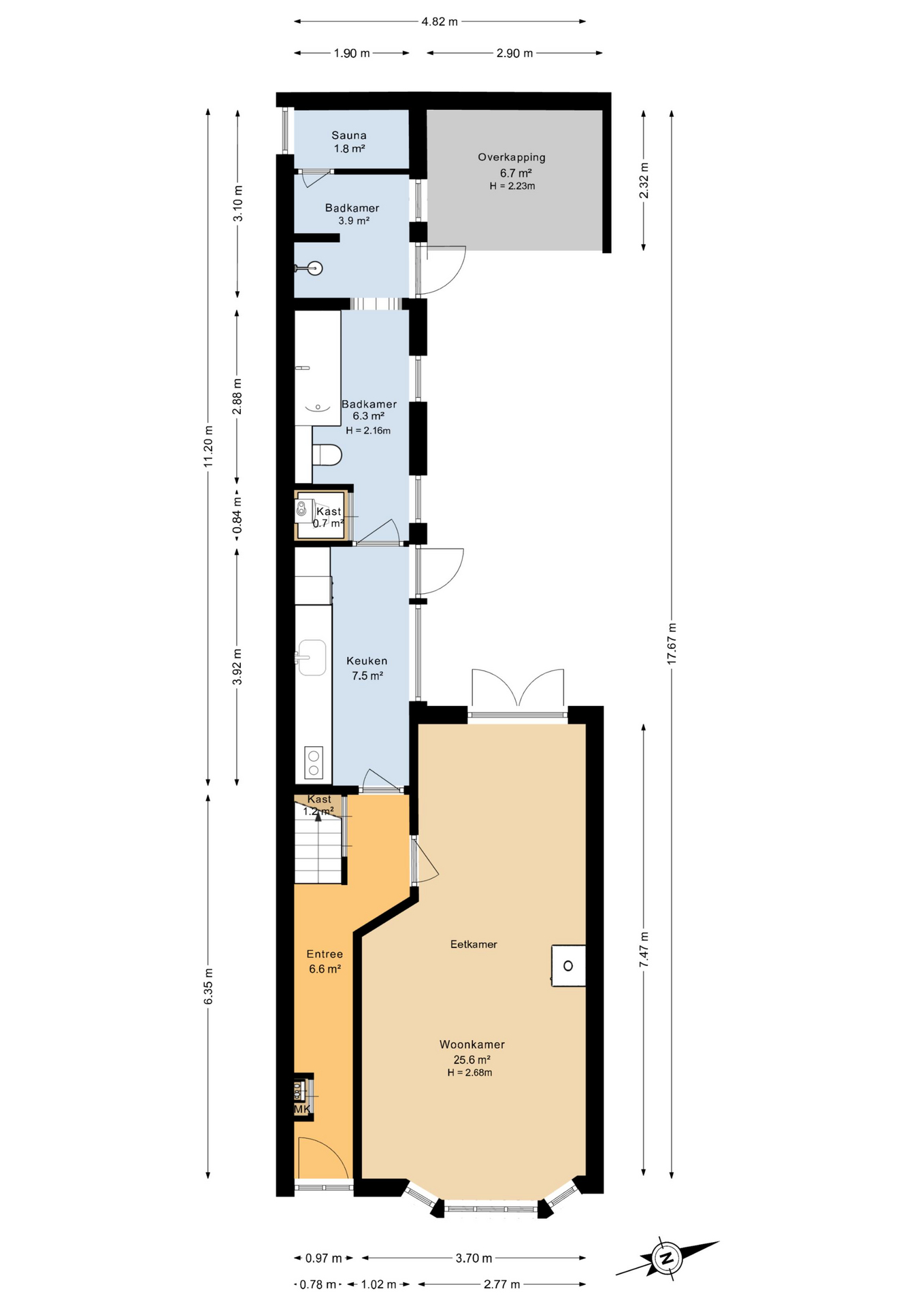
BEGANE GROND
Via de entree heb je toegang tot de woonkamer, de trapopgang naar de eerste verdieping en de dichte keuken. De doorzonwoonkamer is zonder twijfel een van de pluspunten van deze woning. Door het vrije zicht aan de voorzijde komt de opkomende zon hier prachtig naar binnen en wordt de ruimte in de ochtend al heerlijk verlicht. Aan de achterzijde zorgen openslaande deuren voor een directe verbinding met de tuin. De houtkachel maakt het plaatje compleet en zorgt voor extra sfeer tijdens de koudere maanden.
De dichte keuken biedt toegang tot de achtertuin en staat in directe verbinding met de royale badkamer. Deze opvallend ruime badkamer van maar liefst zes meter diep is voorzien van een ligbad, toilet, witgoedaansluiting en een inloopdouche. Achterin bevindt zich zelfs een sauna, eveneens met toegang tot de tuin. Een bijzonder comfortabele toevoeging die je niet vaak tegenkomt.
EERSTE VERDIEPING
De overloop geeft toegang tot het droogplat en twee slaapkamers. De slaapkamer aan de achterzijde beschikt over een vaste trap naar de zolderverdieping. Deze zolder biedt extra ruimte voor opslag, mogelijk derde slaapkamer of kan verder worden benut afhankelijk van je woonwensen.
TUIN & BERGING
De achtertuin ligt
Wonen in een van de zonnigste huizen van Huizum West? Dan is Van Ostadestraat 40 absoluut een bezichtiging waard. Deze fijne tussenwoning met circa 90 m2 woonoppervlak, twee slaapkamers, een tuin op het westen en een heerlijke houtkachel biedt een
Wonen in een van de zonnigste huizen van Huizum West? Dan is Van Ostadestraat 40 absoluut een bezichtiging waard. Deze fijne tussenwoning met circa 90 m2 woonoppervlak, twee slaapkamers, een tuin op het westen en een heerlijke houtkachel biedt een warme basis om helemaal naar eigen smaak verder vorm te geven. Een huis met karakter, licht en volop mogelijkheden.
BEGANE GROND
Via de entree heb je toegang tot de woonkamer, de trapopgang naar de eerste verdieping en de dichte keuken. De doorzonwoonkamer is zonder twijfel een van de pluspunten van deze woning. Door het vrije zicht aan de voorzijde komt de opkomende zon hier prachtig naar binnen en wordt de ruimte in de ochtend al heerlijk verlicht. Aan de achterzijde zorgen openslaande deuren voor een directe verbinding met de tuin. De houtkachel maakt het plaatje compleet en zorgt voor extra sfeer tijdens de koudere maanden.
De dichte keuken biedt toegang tot de achtertuin en staat in directe verbinding met de royale badkamer. Deze opvallend ruime badkamer van maar liefst zes meter diep is voorzien van een ligbad, toilet, witgoedaansluiting en een inloopdouche. Achterin bevindt zich zelfs een sauna, eveneens met toegang tot de tuin. Een bijzonder comfortabele toevoeging die je niet vaak tegenkomt.
EERSTE VERDIEPING
De overloop geeft toegang tot het droogplat en twee slaapkamers. De slaapkamer aan de achterzijde beschikt over een vaste trap naar de zolderverdieping. Deze zolder biedt extra ruimte voor opslag, mogelijk derde slaapkamer of kan verder worden benut afhankelijk van je woonwensen.
TUIN & BERGING
De achtertuin ligt op het westen en is daarmee een heerlijke plek om van de middag en avondzon te genieten. Achterin de tuin staat een overkapping waar je beschut kunt zitten. Dankzij de achterom is de tuin ook praktisch in gebruik.
OMGEVGING
De woning ligt in het geliefde Huizum West, een karaktervolle en rustige wijk met veel jaren dertig bebouwing. Op loop en fietsafstand vind je het centrum van Leeuwarden, het station en diverse winkels en voorzieningen. Ook scholen, sportfaciliteiten en uitvalswegen zijn goed bereikbaar. Een fijne combinatie van rustig wonen en de levendigheid van de stad binnen handbereik.
BIJZONDERHEDEN
+ 90 m2 woonoppervlak;
+ 2 slaapkamers;
+ Energielabel F;
+ Tuin op westen met achterom;
+ Badkamer met sauna;
+ Zonnige ligging in geliefde wijk;
+ Wordt 'As is, Where is' verkocht.
Disclaimer
Deze informatie is door ons met de nodige zorgvuldigheid samengesteld. Onzerzijds wordt echter geen enkele aansprakelijkheid aanvaard voor enige onvolledigheid, onjuistheid of anderszins, dan wel de gevolgen daarvan. Alle opgegeven maten en oppervlakten zijn indicatief.
Toelichtingsclausule NEN2580
De Meetinstructie is gebaseerd op de NEN2580. De Meetinstructie is bedoeld om een meer eenduidige manier van meten toe te passen voor het geven van een indicatie van de gebruiksoppervlakte. De Meetinstructie sluit verschillen in meetuitkomsten niet volledig uit, door bijvoorbeeld interpretatieverschillen, afrondingen of beperkingen bij het uitvoeren van de meting.
Interesse?
Heb je interesse in deze woning of wil je een bezichtiging inplannen? Wij helpen je graag."*" geeft vereiste velden aan
Video
Geen video beschikbaarPlattegrond











