van der Helststraat 70 – Leeuwarden
Kenmerken
Status
Vraagprijs
Oplevering
Energielabel
Bouwjaar
Inhoud
Woonoppervlakte
Aantal kamers
Aantal slaapkamers
Aantal badkamers
Perceeloppervlakte
Buitenruimte
Ligging tuin
Oppervlakte
Garage
Omschrijving
Gelegen in Huizum, in het zuiden van Leeuwarden, bevindt zich deze karakteristieke tussenwoning uit 1938. De woning dient gemoderniseerd te worden en biedt daarmee volop mogelijkheden om geheel naar eigen wens en stijl in te richten. Een mooie kans om een huis in een geliefde wijk te transformeren en te verduurzamen. Met een woonoppervlakte van 97 m², vier slaapkamers en een ruime doorzonwoonkamer biedt de woning veel ruimte voor starters en gezinnen.
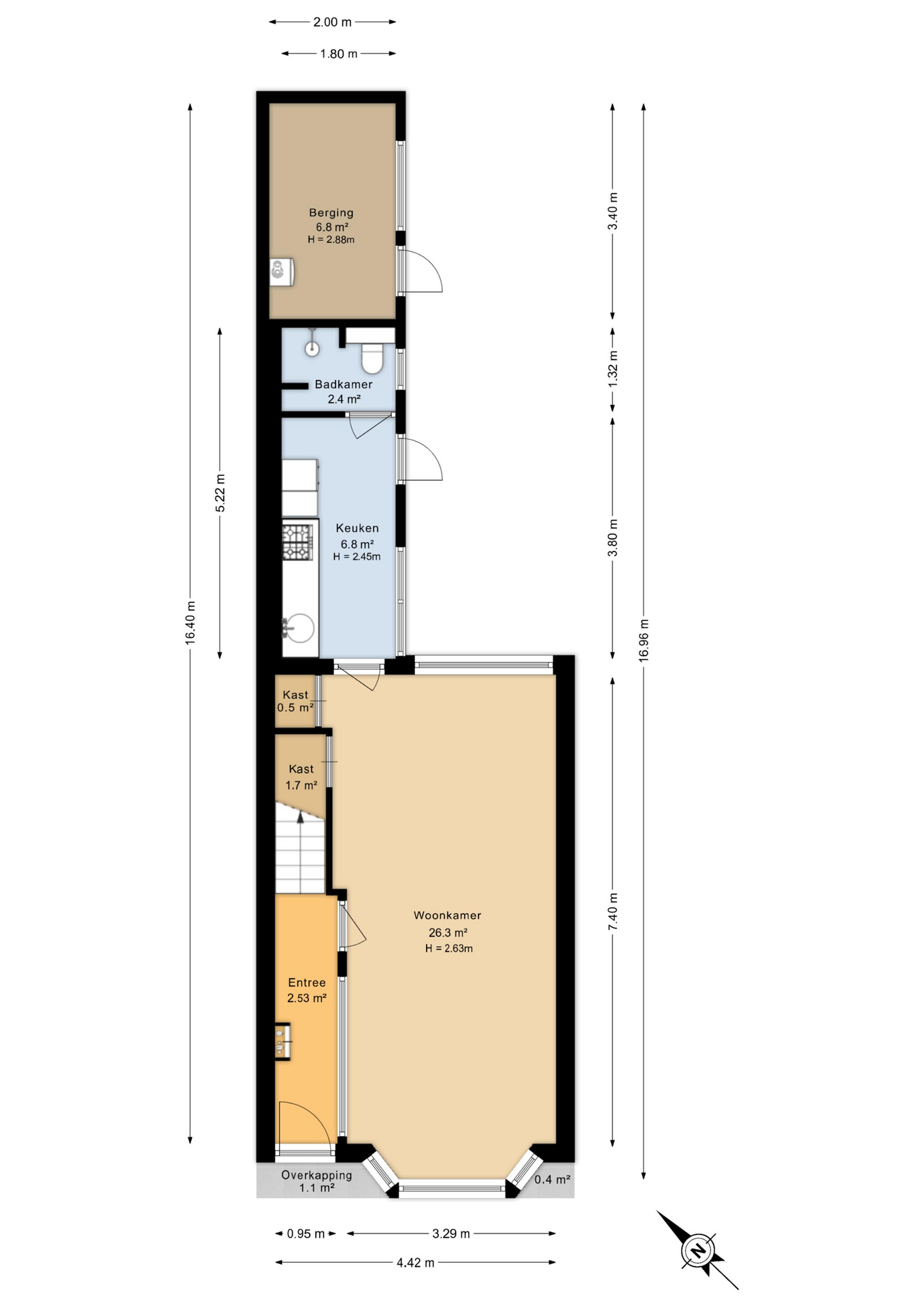
BEGANE GROND
Via de voortuin kom je binnen in de lange entree, waar zich de trapopgang bevindt en de doorgang naar de doorzonwoonkamer (26 m²). Aan de achterzijde van de woonkamer, richting de keuken, zijn twee praktische opbergkasten aanwezig. De keuken is gesitueerd aan de achterkant van de woning en biedt tevens toegang tot de badkamer, voorzien van een toilet en inloopdouche. Vanuit de keuken bereik je de diepe achtertuin, gelegen op het noordoosten. Deze is ook bereikbaar via een achterom en beschikt achterin over een ruime berging.
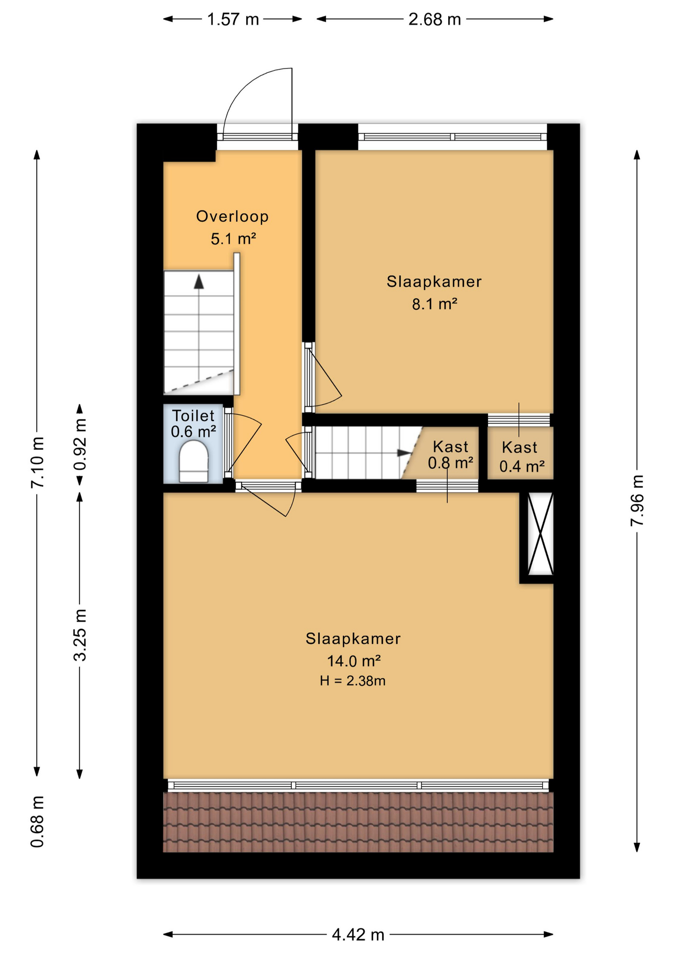
EERSTE VERDIEPING
De eerste verdieping beschikt over twee slaapkamers, waarvan één circa 8 m² groot is en de andere met circa 14 m² royaal te noemen is. Beide kamers zijn voorzien van een praktische inbouwkast. Daarnaast bevindt zich op deze verdieping een tweede toilet.
TWEEDE VERDIEPING
De tweede verdieping beschikt ook over twee vergelijkbare slaapkamers qua grootte, waarvan één ook voorzien is van een inbouwkast.
OMGEVING
Huizum staat bekend als een rustige, groene en kindvriendelijke woonomgeving met diverse voorzieningen zoals winkels, scholen en het Julianapark op loopafsta
Gelegen in Huizum, in het zuiden van Leeuwarden, bevindt zich deze karakteristieke tussenwoning uit 1938. De woning dient gemoderniseerd te worden en biedt daarmee volop mogelijkheden om geheel naar eigen wens en stijl in te richten. Een mooie kan
Gelegen in Huizum, in het zuiden van Leeuwarden, bevindt zich deze karakteristieke tussenwoning uit 1938. De woning dient gemoderniseerd te worden en biedt daarmee volop mogelijkheden om geheel naar eigen wens en stijl in te richten. Een mooie kans om een huis in een geliefde wijk te transformeren en te verduurzamen. Met een woonoppervlakte van 97 m², vier slaapkamers en een ruime doorzonwoonkamer biedt de woning veel ruimte voor starters en gezinnen.
BEGANE GROND
Via de voortuin kom je binnen in de lange entree, waar zich de trapopgang bevindt en de doorgang naar de doorzonwoonkamer (26 m²). Aan de achterzijde van de woonkamer, richting de keuken, zijn twee praktische opbergkasten aanwezig. De keuken is gesitueerd aan de achterkant van de woning en biedt tevens toegang tot de badkamer, voorzien van een toilet en inloopdouche. Vanuit de keuken bereik je de diepe achtertuin, gelegen op het noordoosten. Deze is ook bereikbaar via een achterom en beschikt achterin over een ruime berging.
EERSTE VERDIEPING
De eerste verdieping beschikt over twee slaapkamers, waarvan één circa 8 m² groot is en de andere met circa 14 m² royaal te noemen is. Beide kamers zijn voorzien van een praktische inbouwkast. Daarnaast bevindt zich op deze verdieping een tweede toilet.
TWEEDE VERDIEPING
De tweede verdieping beschikt ook over twee vergelijkbare slaapkamers qua grootte, waarvan één ook voorzien is van een inbouwkast.
OMGEVING
Huizum staat bekend als een rustige, groene en kindvriendelijke woonomgeving met diverse voorzieningen zoals winkels, scholen en het Julianapark op loopafstand. De wijk bestaat vooral uit jaren ’30 woningen en naoorlogse huizen, wat zorgt voor een sfeervolle en gevarieerde uitstraling.
BIJZONDERHEDEN
+ Kluswoning met veel potentie;
+ Bouwjaar 1938;
+ 97m2 woonoppervlakte;
+ Energielabel D;
+ 4 slaapkamers;
+ Verwarming middels HR-ketel (2016);
+ As-is-where-is van toepassing.
Disclaimer
Deze informatie is door ons met de nodige zorgvuldigheid samengesteld. Onzerzijds wordt echter geen enkele aansprakelijkheid aanvaard voor enige onvolledigheid, onjuistheid of anderszins, dan wel de gevolgen daarvan. Alle opgegeven maten en oppervlakten zijn indicatief.
Toelichtingsclausule NEN2580
De Meetinstructie is gebaseerd op de NEN2580. De Meetinstructie is bedoeld om een meer eenduidige manier van meten toe te passen voor het geven van een indicatie van de gebruiksoppervlakte. De Meetinstructie sluit verschillen in meetuitkomsten niet volledig uit, door bijvoorbeeld interpretatieverschillen, afrondingen of beperkingen bij het uitvoeren van de meting.
Interesse?
Heb je interesse in deze woning of wil je een bezichtiging inplannen? Wij helpen je graag."*" geeft vereiste velden aan
Video
Geen video beschikbaarPlattegrond











