Tjaardastate 25 – Leeuwarden
Kenmerken
Status
Vraagprijs
Oplevering
Energielabel
Bouwjaar
Inhoud
Woonoppervlakte
Aantal kamers
Aantal slaapkamers
Aantal badkamers
Perceeloppervlakte
Buitenruimte
Ligging tuin
Oppervlakte
Garage
Omschrijving
COMFORTABEL WONEN VLAKBIJ HET GROEN
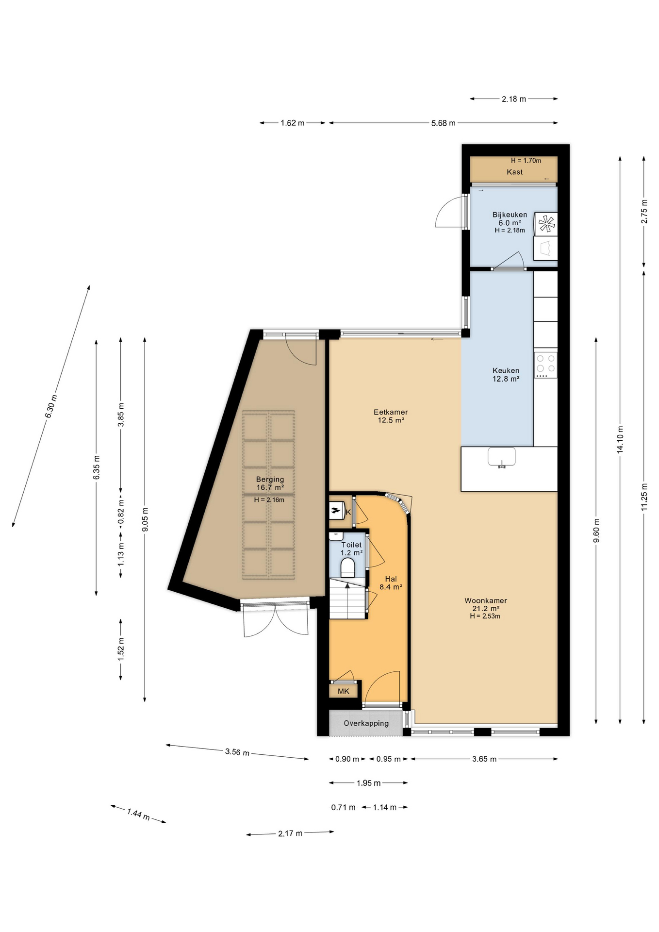
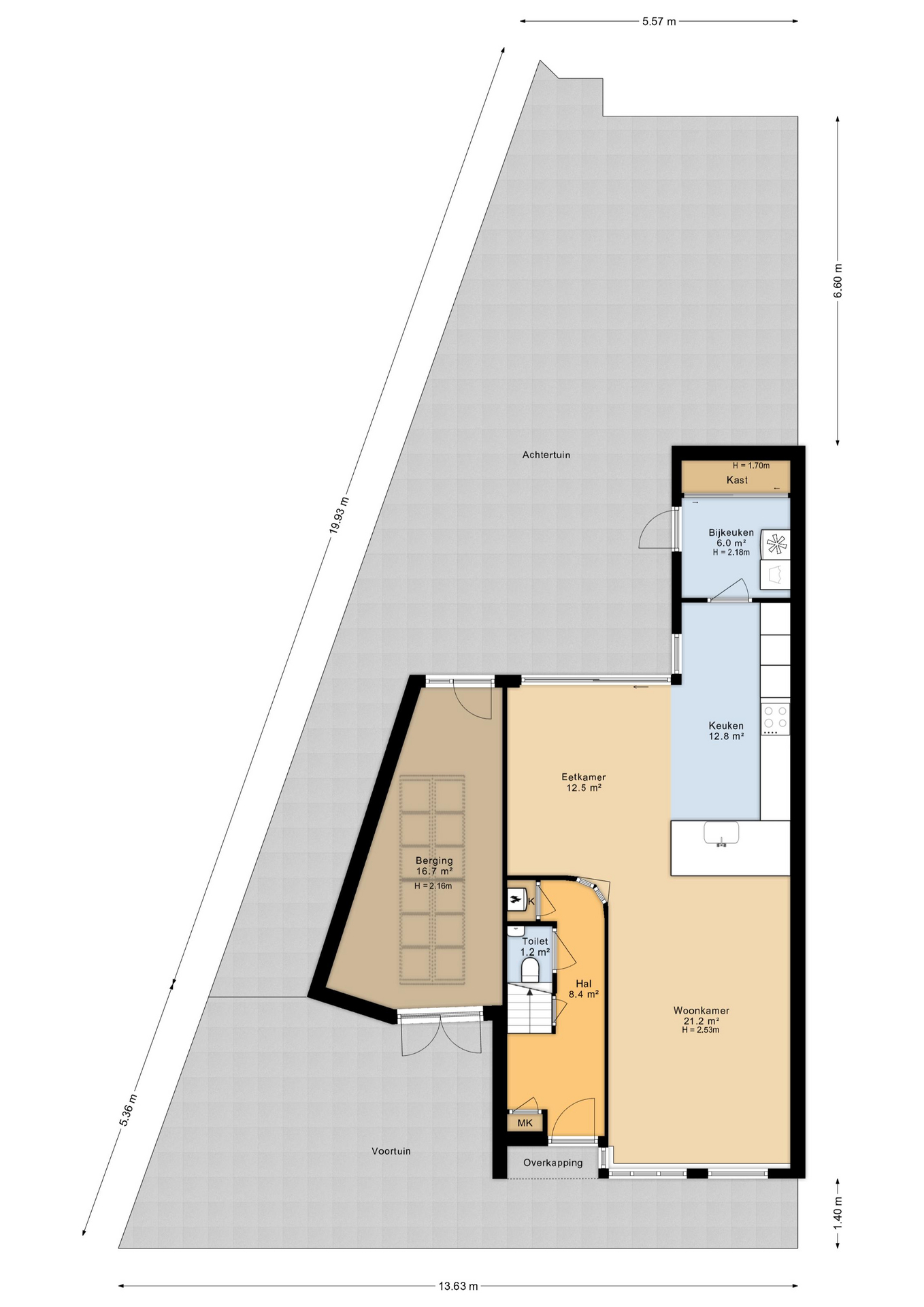
Aan een rustig hofje in de groene wijk Camminghaburen ligt deze verrassend ruime en uitstekend onderhouden hoekwoning op een royaal perceel van 215 m² eigen grond. De woning biedt volop rust, privacy en comfort, met uitzicht op gemeentegroen aan de voorzijde en een zonnige, onderhoudsvriendelijke achtertuin op het zuidwesten. Dankzij de praktische indeling en de gelijkvloerse mogelijkheden is dit een ideale plek voor wie houdt van comfortabel wonen, buitenleven met een huisdier én de nabijheid van het groen.
BEGANE GROND
Via de lichte entree met vernieuwde meterkast (2023), toilet en doorgang naar werk/slaapkamer kom je in de ruime doorzonwoonkamer met schuifpui naar de tuin. De open woonkeuken is voorzien van een handgemaakte inrichting met moderne apparatuur. Aansluitend bevindt zich de praktische bijkeuken met wasmachineaansluiting en directe toegang tot de tuin.
Uniek is de volledig verwarmde houten garage (2021 verbouwd) met eigen ingang – ideaal als hobbyruimte, atelier, werkplek of zelfs als slaapkamer op de begane grond. Hiermee is gelijkvloers wonen eenvoudig te realiseren, wat deze woning extra aantrekkelijk maakt voor wie toekomstgericht wil wonen.
EERSTE VERDIEPING
De verdieping telt twee ruime kamers, waarvan één met veel daglicht en uitzicht op het groen. De tweede kamer is uitstekend te gebruiken als logeerkamer of hobbyruimte. De badkamer is netjes afgewerkt en voorzien van douchecabine en wastafel, met ruimte voor een bad of tweede toilet. De CV-ruimte is ingebouwd in een kledingkast die makkelijk toegankelijk is.
VLI
COMFORTABEL WONEN VLAKBIJ HET GROEN
Aan een rustig hofje in de groene wijk Camminghaburen ligt deze verrassend ruime en uitstekend onderhouden hoekwoning op een royaal perceel van 215 m² eigen grond. De woning biedt volop rust, privacy en c
COMFORTABEL WONEN VLAKBIJ HET GROEN
Aan een rustig hofje in de groene wijk Camminghaburen ligt deze verrassend ruime en uitstekend onderhouden hoekwoning op een royaal perceel van 215 m² eigen grond. De woning biedt volop rust, privacy en comfort, met uitzicht op gemeentegroen aan de voorzijde en een zonnige, onderhoudsvriendelijke achtertuin op het zuidwesten. Dankzij de praktische indeling en de gelijkvloerse mogelijkheden is dit een ideale plek voor wie houdt van comfortabel wonen, buitenleven met een huisdier én de nabijheid van het groen.
BEGANE GROND
Via de lichte entree met vernieuwde meterkast (2023), toilet en doorgang naar werk/slaapkamer kom je in de ruime doorzonwoonkamer met schuifpui naar de tuin. De open woonkeuken is voorzien van een handgemaakte inrichting met moderne apparatuur. Aansluitend bevindt zich de praktische bijkeuken met wasmachineaansluiting en directe toegang tot de tuin.
Uniek is de volledig verwarmde houten garage (2021 verbouwd) met eigen ingang – ideaal als hobbyruimte, atelier, werkplek of zelfs als slaapkamer op de begane grond. Hiermee is gelijkvloers wonen eenvoudig te realiseren, wat deze woning extra aantrekkelijk maakt voor wie toekomstgericht wil wonen.
EERSTE VERDIEPING
De verdieping telt twee ruime kamers, waarvan één met veel daglicht en uitzicht op het groen. De tweede kamer is uitstekend te gebruiken als logeerkamer of hobbyruimte. De badkamer is netjes afgewerkt en voorzien van douchecabine en wastafel, met ruimte voor een bad of tweede toilet. De CV-ruimte is ingebouwd in een kledingkast die makkelijk toegankelijk is.
VLIERING
Via een vlizotrap bereik je de ruime bergzolder, ideaal voor seizoensspullen of extra opslag.
BUITENRUIMTE EN OMGEVING
De zonnige achtertuin op het zuidwesten is onderhoudsvriendelijk aangelegd en biedt volop ruimte voor een zitje, planten én een huisdier. Dankzij de eigen achterom is de tuin goed bereikbaar. De ligging aan een verkeersarm hofje met gemeentegroen maakt dit een fijne plek voor wie houdt van wandelen, rust en natuur.
Camminghaburen is een groene wijk met uitstekende voorzieningen, goede bereikbaarheid en volop wandelmogelijkheden. Het centrum van Leeuwarden is eenvoudig te bereiken, zowel met de fiets als het openbaar vervoer. De directe omgeving nodigt uit tot dagelijkse wandelingen, ideaal voor mens én dier.
BIJZONDERHEDEN
- woning volledig opnieuw gevoegd;
- 11 zonnepanelen (2023) zorgen voor lage maandlasten;
- Nieuwe Intergas HRE combiketel (2025);
- Volledig verwarmde houten aanbouw met eigen ingang, ideaal als studio, praktijkruimte of atelier;
- Slaapkamer op begane grond;
- Zonnige achtertuin op het zuidwesten met achterom;
- Moderne keuken en nette laminaatvloer;
- Airco/luchtwarmtepomp;
- Ruime bergzolder via vlizotrap;
- Uitzicht op gemeentegroen aan de voorzijde;
- Gelegen op 215 m² eigen grond.
Disclaimer
Deze informatie is door ons met de nodige zorgvuldigheid samengesteld. Onzerzijds wordt echter geen enkele aansprakelijkheid aanvaard voor enige onvolledigheid, onjuistheid of anderszins, dan wel de gevolgen daarvan. Alle opgegeven maten en oppervlakten zijn indicatief.
Toelichtingsclausule NEN2580
De Meetinstructie is gebaseerd op de NEN2580. De Meetinstructie is bedoeld om een meer eenduidige manier van meten toe te passen voor het geven van een indicatie van de gebruiksoppervlakte. De Meetinstructie sluit verschillen in meetuitkomsten niet volledig uit, door bijvoorbeeld interpretatieverschillen, afrondingen of beperkingen bij het uitvoeren van de meting.
Interesse?
Heb je interesse in deze woning of wil je een bezichtiging inplannen? Wij helpen je graag."*" geeft vereiste velden aan
Video
Plattegrond















