Mozartstraat 51 – Leeuwarden
Kenmerken
Status
Vraagprijs
Oplevering
Energielabel
Bouwjaar
Inhoud
Woonoppervlakte
Aantal kamers
Aantal slaapkamers
Aantal badkamers
Perceeloppervlakte
Buitenruimte
Ligging tuin
Oppervlakte
Garage
Omschrijving
Jaren ’30 charme met zonnige tuin in de geliefde Componistenbuurt van Leeuwarden. Aan de rand van de karakteristieke Componistenbuurt, in het westen van de stad, staat deze prachtige en instapklare jaren ’30 woning met een heerlijke tuin op het zuiden. De klassieke erker, openslaande deuren en smaakvolle afwerking zorgen voor een bijzonder sfeervol geheel. De woning beschikt over 96m² woonoppervlakte op een perceel van 108m² en is grotendeels voorzien van HR beglazing en een royale dakkapel aan de achterzijde.
BEGANE GROND
Via de hal met garderobe en trapopgang betreed je de ruime woonkamer. De karakteristieke erker aan de voorzijde en de openslaande deuren naar de tuin aan de achterzijde zorgen voor een prachtige lichtinval. De massief eiken vloer is een echte blikvanger en geeft de ruimte een warme uitstraling.
De dichte keuken vormt een mooie verbinding met het eetgedeelte. Deze keuken is goed functioneel en voorzien van alle gemakken. Vanuit de keuken bereik je de praktische bijkeuken met plaats voor het witgoed, de cv-installatie en toegang tot het eerste toilet.
De diepe achtertuin ligt op het zuiden en biedt veel privacy. Hier vind je een fijne en handige berging over de gehele breedte. Via de steeg is de tuin ook achterom met de fiets bereikbaar.
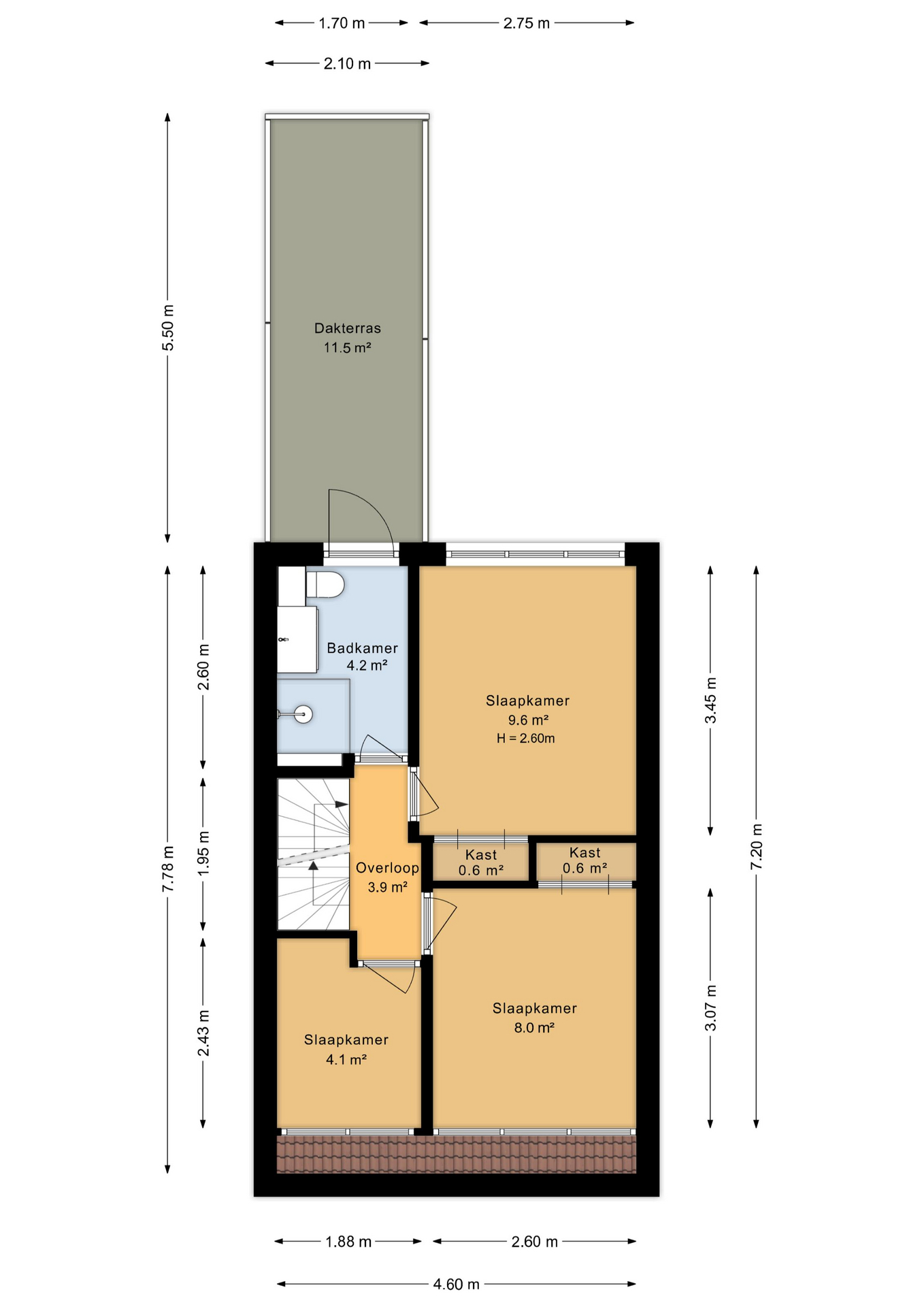
EERSTE VERDIEPING
Via de vaste trap bereik je de overloop van de eerste verdieping. Hier heb je toegang tot twee slaapkamers, beide voorzien van inbouwkasten en mooie raampartijen met prettige lichtinval. Daarnaast bevindt zich nog een kleinere kamer, ideaal geschikt als thuiswerkplek of kinderkamer.
De ruime badkame
Jaren ’30 charme met zonnige tuin in de geliefde Componistenbuurt van Leeuwarden. Aan de rand van de karakteristieke Componistenbuurt, in het westen van de stad, staat deze prachtige en instapklare jaren ’30 woning met een heerlijke tuin op he
Jaren ’30 charme met zonnige tuin in de geliefde Componistenbuurt van Leeuwarden. Aan de rand van de karakteristieke Componistenbuurt, in het westen van de stad, staat deze prachtige en instapklare jaren ’30 woning met een heerlijke tuin op het zuiden. De klassieke erker, openslaande deuren en smaakvolle afwerking zorgen voor een bijzonder sfeervol geheel. De woning beschikt over 96m² woonoppervlakte op een perceel van 108m² en is grotendeels voorzien van HR beglazing en een royale dakkapel aan de achterzijde.
BEGANE GROND
Via de hal met garderobe en trapopgang betreed je de ruime woonkamer. De karakteristieke erker aan de voorzijde en de openslaande deuren naar de tuin aan de achterzijde zorgen voor een prachtige lichtinval. De massief eiken vloer is een echte blikvanger en geeft de ruimte een warme uitstraling.
De dichte keuken vormt een mooie verbinding met het eetgedeelte. Deze keuken is goed functioneel en voorzien van alle gemakken. Vanuit de keuken bereik je de praktische bijkeuken met plaats voor het witgoed, de cv-installatie en toegang tot het eerste toilet.
De diepe achtertuin ligt op het zuiden en biedt veel privacy. Hier vind je een fijne en handige berging over de gehele breedte. Via de steeg is de tuin ook achterom met de fiets bereikbaar.
EERSTE VERDIEPING
Via de vaste trap bereik je de overloop van de eerste verdieping. Hier heb je toegang tot twee slaapkamers, beide voorzien van inbouwkasten en mooie raampartijen met prettige lichtinval. Daarnaast bevindt zich nog een kleinere kamer, ideaal geschikt als thuiswerkplek of kinderkamer.
De ruime badkamer bevindt zich eveneens op deze verdieping en is uitgerust met een met douche, wastafelmeubel en een tweede toilet, daarnaast is hier de doorgang naar het platte dak.
TWEEDE VERDIEPING
Via een vaste trap kom je op de tweede verdieping. Op de overloop is extra opslagruimte gecreëerd. Dankzij de grote dakkapel aan de achterzijde is hier verrassend veel extra ruimte ontstaan. Aan de achterzijde bevindt zich de derde slaapkamer: een fijne, ruime kamer met een prachtig uitzicht over de skyline van Leeuwarden.
OMGEVING
De Mozartstraat ligt in de sfeervolle en gewilde Componistenbuurt, één van de oudste wijken van Leeuwarden. Op loop- en fietsafstand bevindt zich het historische centrum van de stad. In de directe omgeving zijn twee buurtwinkelcentra met onder andere een supermarkt, warme bakker, slijterij, snackbar en drogist. Daarnaast zijn er diverse sportverenigingen, basisscholen en kinderopvangvoorzieningen in de buurt. De wijk ligt zeer gunstig ten opzichte van de Haak om Leeuwarden en binnen enkele minuten bereik je de N31, A31 en A32.
BIJZONDERHEDEN
+ Gelegen in de geliefde Componistenbuurt;
+ 96 m² woonoppervlakte;
+ Perceeloppervlakte 142 m²;
+ Energielabel D;
+ Verzorgde en diepe tuin op het zuiden;
+ Grote dakkapel aan de achterzijde
+ Niet- zelfbewoningsclausule en ouderdomsclausule van toepassing.
Disclaimer
Deze informatie is door ons met de nodige zorgvuldigheid samengesteld. Onzerzijds wordt echter geen enkele aansprakelijkheid aanvaard voor enige onvolledigheid, onjuistheid of anderszins, dan wel de gevolgen daarvan. Alle opgegeven maten en oppervlakten zijn indicatief.
Toelichtingsclausule NEN2580
De Meetinstructie is gebaseerd op de NEN2580. De Meetinstructie is bedoeld om een meer eenduidige manier van meten toe te passen voor het geven van een indicatie van de gebruiksoppervlakte. De Meetinstructie sluit verschillen in meetuitkomsten niet volledig uit, door bijvoorbeeld interpretatieverschillen, afrondingen of beperkingen bij het uitvoeren van de meting.
Interesse?
Heb je interesse in deze woning of wil je een bezichtiging inplannen? Wij helpen je graag."*" geeft vereiste velden aan
Video
Plattegrond












