Leeuwerikstraat 86 – Leeuwarden
Kenmerken
Status
Vraagprijs
Oplevering
Energielabel
Bouwjaar
Inhoud
Woonoppervlakte
Aantal kamers
Aantal slaapkamers
Aantal badkamers
Perceeloppervlakte
Buitenruimte
Ligging tuin
Oppervlakte
Garage
Omschrijving
Ben je op zoek naar een woning waar je écht zo in kunt? Waar sfeer, afwerking en comfort naadloos samenkomen en jij alleen je koffers maar hoeft te pakken? Dan is deze prachtige tussenwoning aan de Leeuwerikstraat 86 precies wat je zoekt. Met een hoogwaardig afwerkingsniveau, energielabel A, 116m2 leefruimte, drie slaapkamers én een multifunctionele zolderverdieping, is dit een woning die je direct zult omarmen. Gelegen in de kindvriendelijke en gezellige Vogelbuurt, op korte afstand van het centrum, is dit thuis komen in een warm geheel.
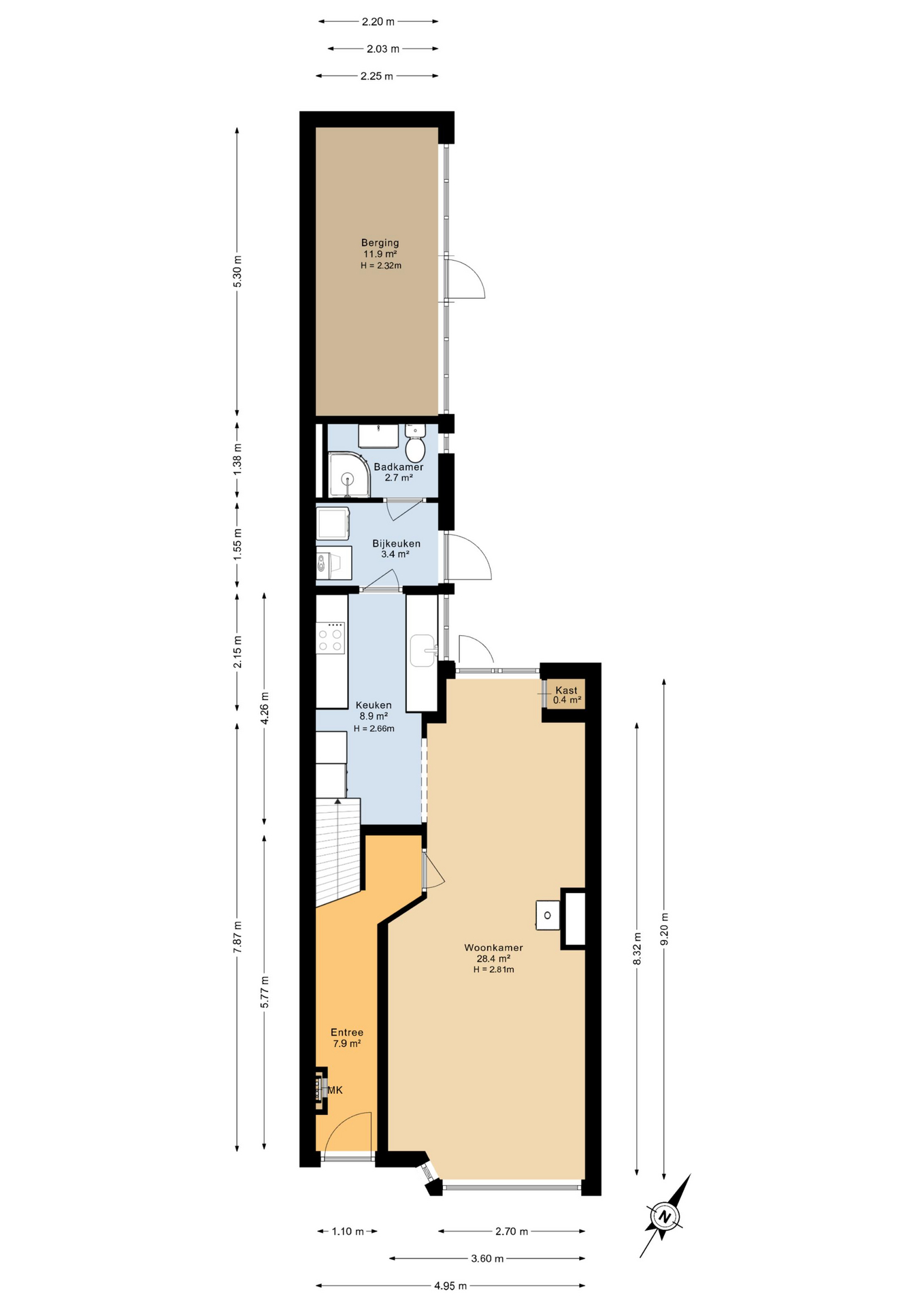
BEGANE GROND
De onderhoudsvrije voortuin leidt je naar de lichte entree, waar je direct de kwaliteit en sfeer van de woning ervaart. Vanuit de hal bereik je de warme en sfeervolle woonkamer: licht, ruim en voorzien van een heerlijke houtkachel die meteen de toon zet. De fijne kleurstelling, de nette afwerking en de open verbinding met de moderne keuken (2018) zorgen voor een harmonieuze woonruimte.
De keuken is modern, rustig vormgegeven en uitgerust met alle benodigde inbouwapparatuur. Via de keuken bereik je de bijkeuken, waar de witgoedaansluitingen en de cv-installatie (2017) zich bevinden. Vanuit hier is er toegang tot zowel de badkamer als de achtertuin. De badkamer is voorzien van een douche, toilet en wastafel; deze ruimte kan eventueel gemoderniseerd worden om aan te sluiten bij het verdere afwerkingsniveau van de woning.
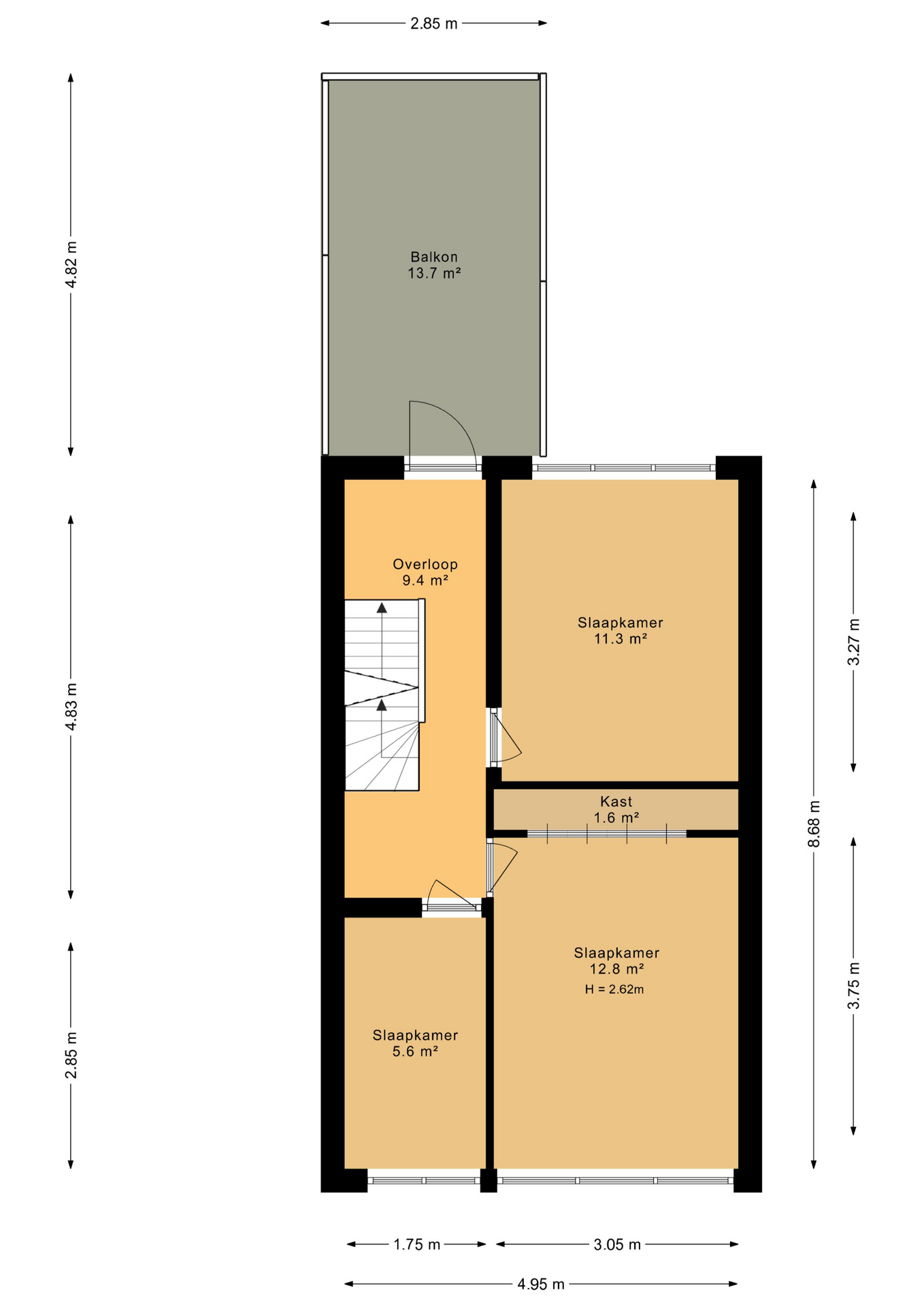
EERSTE VERDIEPING
De overloop biedt toegang tot drie slaapkamers, twee aan de voorzijde en één aan de achterzijde. De twee grootste kamers zijn ruim van formaat; één van hen beschikt over een grote inbouwkast. Vanaf de o
Ben je op zoek naar een woning waar je écht zo in kunt? Waar sfeer, afwerking en comfort naadloos samenkomen en jij alleen je koffers maar hoeft te pakken? Dan is deze prachtige tussenwoning aan de Leeuwerikstraat 86 precies wat je zoekt. Met een
Ben je op zoek naar een woning waar je écht zo in kunt? Waar sfeer, afwerking en comfort naadloos samenkomen en jij alleen je koffers maar hoeft te pakken? Dan is deze prachtige tussenwoning aan de Leeuwerikstraat 86 precies wat je zoekt. Met een hoogwaardig afwerkingsniveau, energielabel A, 116m2 leefruimte, drie slaapkamers én een multifunctionele zolderverdieping, is dit een woning die je direct zult omarmen. Gelegen in de kindvriendelijke en gezellige Vogelbuurt, op korte afstand van het centrum, is dit thuis komen in een warm geheel.
BEGANE GROND
De onderhoudsvrije voortuin leidt je naar de lichte entree, waar je direct de kwaliteit en sfeer van de woning ervaart. Vanuit de hal bereik je de warme en sfeervolle woonkamer: licht, ruim en voorzien van een heerlijke houtkachel die meteen de toon zet. De fijne kleurstelling, de nette afwerking en de open verbinding met de moderne keuken (2018) zorgen voor een harmonieuze woonruimte.
De keuken is modern, rustig vormgegeven en uitgerust met alle benodigde inbouwapparatuur. Via de keuken bereik je de bijkeuken, waar de witgoedaansluitingen en de cv-installatie (2017) zich bevinden. Vanuit hier is er toegang tot zowel de badkamer als de achtertuin. De badkamer is voorzien van een douche, toilet en wastafel; deze ruimte kan eventueel gemoderniseerd worden om aan te sluiten bij het verdere afwerkingsniveau van de woning.
EERSTE VERDIEPING
De overloop biedt toegang tot drie slaapkamers, twee aan de voorzijde en één aan de achterzijde. De twee grootste kamers zijn ruim van formaat; één van hen beschikt over een grote inbouwkast. Vanaf de overloop bereik je ook het balkon op het noorden. Alles op deze verdieping is netjes afgewerkt, met zorg gekozen kleuren en materialen. En via de vaste trap bereik je de zolderverdieping.
ZOLDERVERDIEPING
Een prachtige open ruimte, recent (slechts drie weken geleden) de laatste hand aan gelegd en voorzien van een dakkapel over de volledige breedte. Hierdoor baadt de ruimte in het licht en ontstaat er enorm veel extra leefruimte. Hoewel de nokhoogte van 1,95 meter maakt dat deze verdieping officieel niet als woonoppervlak mag meetellen, is de ruimte absoluut geschikt als vierde slaapkamer, werkruimte of hobbykamer. De afwerking is ook hier weer van hoog niveau, met volop opbergruimte achter de knieschotten.
TUIN & BERGING
De achtertuin is maar liefst 14 meter diep, ligt op het noorden en beschikt over een achterom. Door de lengte van de tuin is er altijd een heerlijk plekje in de zon én schaduw te vinden. Achterin de tuin vind je een kleine overkapping voor het stookhout. De vrijstaande berging van circa 12 m² biedt volop plek voor fietsen, gereedschap, hobby’s of opslag.
OMGEVING
De Leeuwerikstraat ligt in de geliefde Vogelbuurt, een gezellige, groene en rustige wijk op slechts enkele minuten fietsen van het centrum van Leeuwarden. Je vindt er diverse buurtvoorzieningen, basisscholen, speeltuintjes en sportmogelijkheden. De ligging is ideaal: centraal, kindvriendelijk, met veel karakteristieke jaren ’30 woningen en een fijne sfeer in de straat. Ook uitvalswegen, supermarkten en openbaar vervoer liggen op korte afstand.
BIJZONDERHEDEN
+ Instapklare jaren '30 woning;
+ 116 m2 leefruimte;
+ Energielabel A;
+ 3 slaapkamers (of 4);
+ Hoog afwerkingsniveau;
+ Diepe tuin op het noorden met achterom;
+ Fijne ligging in geliefde buurt.
Disclaimer
Deze informatie is door ons met de nodige zorgvuldigheid samengesteld. Onzerzijds wordt echter geen enkele aansprakelijkheid aanvaard voor enige onvolledigheid, onjuistheid of anderszins, dan wel de gevolgen daarvan. Alle opgegeven maten en oppervlakten zijn indicatief.
Toelichtingsclausule NEN2580
De Meetinstructie is gebaseerd op de NEN2580. De Meetinstructie is bedoeld om een meer eenduidige manier van meten toe te passen voor het geven van een indicatie van de gebruiksoppervlakte. De Meetinstructie sluit verschillen in meetuitkomsten niet volledig uit, door bijvoorbeeld interpretatieverschillen, afrondingen of beperkingen bij het uitvoeren van de meting.
Interesse?
Heb je interesse in deze woning of wil je een bezichtiging inplannen? Wij helpen je graag."*" geeft vereiste velden aan
Video
Plattegrond











