Leeuwerikstraat 16 – Leeuwarden
Kenmerken
Status
Vraagprijs
Oplevering
Energielabel
Bouwjaar
Inhoud
Woonoppervlakte
Aantal kamers
Aantal slaapkamers
Aantal badkamers
Perceeloppervlakte
Buitenruimte
Ligging tuin
Oppervlakte
Garage
Omschrijving
Met maar liefst 162 m² woonoppervlak, verdeeld over drie woonlagen, zes slaapkamers en een achtertuin van nagenoeg 22 meter diep, biedt deze woning aan de gewilde Leeuwerikstraat enorm veel ruimte en mogelijkheden. Let wel: het betreft een kluswoning, wat jou als koper de kans geeft om de woning volledig naar eigen smaak en wensen te moderniseren.
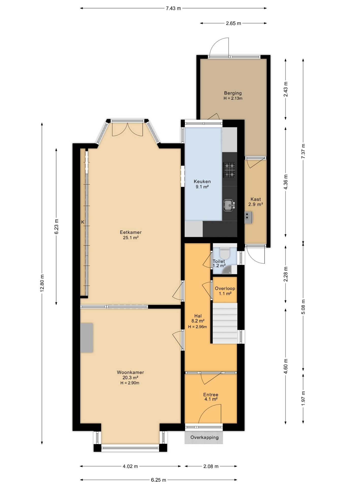
BEGANE GROND
Via de beschutte voortuin bereik je het tochtportaal en de ruime hal, die toegang biedt tot de woonkamer, eetkamer, het toilet, de kelder en de trap naar de eerste verdieping. De woon- en eetkamer strekken samen bijna 13 meter diep en zijn verbonden met de halfopen keuken. Vanuit de eetkamer leiden openslaande deuren naar de achtertuin. De keuken sluit aan op de bijkeuken, voorzien van witgoedaansluiting en een eigen toegang tot de tuin. Vanuit de bijkeuken bereik je ook de technische ruimte, een voormalige steeg die eveneens via de voortuin toegankelijk is.
EERSTE VERDIEPING
De ruime overloop geeft toegang tot drie slaapkamers, waarvan twee van ruim formaat. Beide grote slaapkamers beschikken over een eigen balkon: één aan de voorzijde en een ruim balkon aan de achterzijde. Daarnaast is er een badkamer met tweede toilet, douche en wastafel met meubel.
TWEEDE VERDIEPING
Op de tweede verdieping bevinden zich nog eens drie slaapkamers, twee aan de voorzijde en één aan de achterzijde. Tevens is er een aparte berging aan de achterzijde.
TUIN
De achtertuin ligt op het noorden en dient opnieuw te worden aangelegd. Met een lengte van maar liefst 21,8 meter en een breedte van ruim 7 meter biedt de tuin volop mogelij
Met maar liefst 162 m² woonoppervlak, verdeeld over drie woonlagen, zes slaapkamers en een achtertuin van nagenoeg 22 meter diep, biedt deze woning aan de gewilde Leeuwerikstraat enorm veel ruimte en mogelijkheden. Let wel: het betreft een kluswo
Met maar liefst 162 m² woonoppervlak, verdeeld over drie woonlagen, zes slaapkamers en een achtertuin van nagenoeg 22 meter diep, biedt deze woning aan de gewilde Leeuwerikstraat enorm veel ruimte en mogelijkheden. Let wel: het betreft een kluswoning, wat jou als koper de kans geeft om de woning volledig naar eigen smaak en wensen te moderniseren.
BEGANE GROND
Via de beschutte voortuin bereik je het tochtportaal en de ruime hal, die toegang biedt tot de woonkamer, eetkamer, het toilet, de kelder en de trap naar de eerste verdieping. De woon- en eetkamer strekken samen bijna 13 meter diep en zijn verbonden met de halfopen keuken. Vanuit de eetkamer leiden openslaande deuren naar de achtertuin. De keuken sluit aan op de bijkeuken, voorzien van witgoedaansluiting en een eigen toegang tot de tuin. Vanuit de bijkeuken bereik je ook de technische ruimte, een voormalige steeg die eveneens via de voortuin toegankelijk is.
EERSTE VERDIEPING
De ruime overloop geeft toegang tot drie slaapkamers, waarvan twee van ruim formaat. Beide grote slaapkamers beschikken over een eigen balkon: één aan de voorzijde en een ruim balkon aan de achterzijde. Daarnaast is er een badkamer met tweede toilet, douche en wastafel met meubel.
TWEEDE VERDIEPING
Op de tweede verdieping bevinden zich nog eens drie slaapkamers, twee aan de voorzijde en één aan de achterzijde. Tevens is er een aparte berging aan de achterzijde.
TUIN
De achtertuin ligt op het noorden en dient opnieuw te worden aangelegd. Met een lengte van maar liefst 21,8 meter en een breedte van ruim 7 meter biedt de tuin volop mogelijkheden voor een fraaie buitenruimte. Aanwezig zijn een houten berging en een praktische achterom.
BIJZONDERHEDEN
+ Kluswoning met enorme potentie;
+ 162 m2 woonoppervlak;
+ 6 slaapkamers;
+ Tuin op het noorden;
+ Energielabel F;
+ Zinkwerk in goede conditie;
+ Wordt verkocht met een 'As is, Where is' clausule.
OMGEVING
De woning ligt aan de populaire Leeuwerikstraat, een sfeervolle straat met veel karakteristieke jaren ’30 woningen. Hier woon je rustig, maar toch dichtbij alle voorzieningen. Supermarkten, scholen en sportvoorzieningen zijn op korte afstand aanwezig en het bruisende centrum van Leeuwarden is binnen enkele minuten per fiets bereikbaar. De straat zelf staat bekend om haar fijne woonklimaat en de ruime opzet, wat het tot een gewilde plek maakt voor gezinnen en starters die op zoek zijn naar een plek met toekomstwaarde.
Disclaimer
Deze informatie is door ons met de nodige zorgvuldigheid samengesteld. Onzerzijds wordt echter geen enkele aansprakelijkheid aanvaard voor enige onvolledigheid, onjuistheid of anderszins, dan wel de gevolgen daarvan. Alle opgegeven maten en oppervlakten zijn indicatief.
Toelichtingsclausule NEN2580
De Meetinstructie is gebaseerd op de NEN2580. De Meetinstructie is bedoeld om een meer eenduidige manier van meten toe te passen voor het geven van een indicatie van de gebruiksoppervlakte. De Meetinstructie sluit verschillen in meetuitkomsten niet volledig uit, door bijvoorbeeld interpretatieverschillen, afrondingen of beperkingen bij het uitvoeren van de meting.
Interesse?
Heb je interesse in deze woning of wil je een bezichtiging inplannen? Wij helpen je graag."*" geeft vereiste velden aan
Video
Plattegrond












