Kwekerijstraat 30 – Leeuwarden
Kenmerken
Status
Vraagprijs
Oplevering
Energielabel
Bouwjaar
Inhoud
Woonoppervlakte
Aantal kamers
Aantal slaapkamers
Aantal badkamers
Perceeloppervlakte
Buitenruimte
Ligging tuin
Oppervlakte
Garage
Omschrijving
In het sfeervolle “Rode Dorp”, een van de meest karakteristieke buurtjes van Leeuwarden staat deze voormalige arbeiderswoning uit 1919 nu te koop! Compact, gezellig, goed onderhouden en precies wat je zoekt wanneer je als starter comfortabel én betaalbaar wilt wonen. Met 67 m² woonoppervlak, twee slaapkamers en een fijne achtertuin met achterom is dit een woning waar je je direct thuis voelt. De autoluwe, doodlopende straat zorgt bovendien voor heerlijk rustig wonen met een dorpse sfeer midden in de stad.
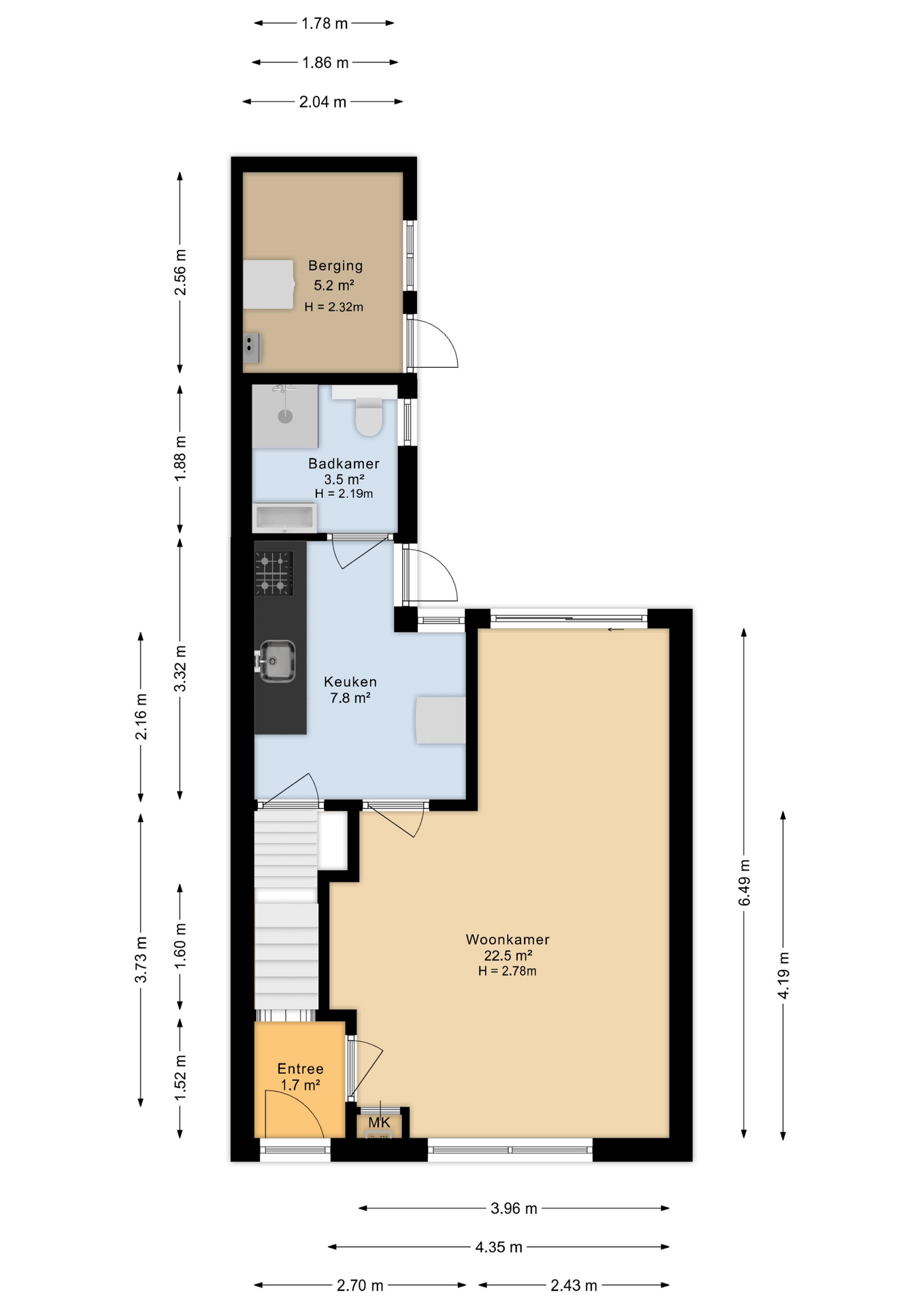
BEGANE GROND
Bij binnenkomst sta je meteen in de lichte entree met direct toegang tot zowel de trap als de woonkamer. De doorzonwoonkamer is een van de echte pluspunten van deze woning: grote raampartijen aan beide kanten zorgen voor mooi licht van ’s ochtends vroeg tot ’s avonds laat. De ruimte is logisch ingedeeld, netjes afgewerkt en voelt door de zachte kleuren en prettige lichtinval bijzonder warm aan.
Aan de achterzijde bevindt zich de schuifpui die zorgt voor extra licht en een fijne verbinding met de achtertuin. De dichte keuken ligt centraal en is voorzien van diverse inbouwapparatuur. Vanuit de keuken bereik je de tuin én de badkamer. De moderne badkamer is in 2023 volledig vernieuwd en uitgevoerd met een inloopdouche, toilet en wastafel met meubel, fris, modern en instapklaar.
EERSTE VERDIEPING
De overloop biedt toegang tot twee slaapkamers, beide gelegen aan de voorzijde van de woning. Dankzij de dakkapel zijn de kamers licht, praktisch en ruimtelijk in gebruik. Precies wat je nodig hebt voor een prettige slaapkamer, werkruimte of hobbykamer.
TUIN & BER
In het sfeervolle “Rode Dorp”, een van de meest karakteristieke buurtjes van Leeuwarden staat deze voormalige arbeiderswoning uit 1919 nu te koop! Compact, gezellig, goed onderhouden en precies wat je zoekt wanneer je als starter comfortabel
In het sfeervolle “Rode Dorp”, een van de meest karakteristieke buurtjes van Leeuwarden staat deze voormalige arbeiderswoning uit 1919 nu te koop! Compact, gezellig, goed onderhouden en precies wat je zoekt wanneer je als starter comfortabel én betaalbaar wilt wonen. Met 67 m² woonoppervlak, twee slaapkamers en een fijne achtertuin met achterom is dit een woning waar je je direct thuis voelt. De autoluwe, doodlopende straat zorgt bovendien voor heerlijk rustig wonen met een dorpse sfeer midden in de stad.
BEGANE GROND
Bij binnenkomst sta je meteen in de lichte entree met direct toegang tot zowel de trap als de woonkamer. De doorzonwoonkamer is een van de echte pluspunten van deze woning: grote raampartijen aan beide kanten zorgen voor mooi licht van ’s ochtends vroeg tot ’s avonds laat. De ruimte is logisch ingedeeld, netjes afgewerkt en voelt door de zachte kleuren en prettige lichtinval bijzonder warm aan.
Aan de achterzijde bevindt zich de schuifpui die zorgt voor extra licht en een fijne verbinding met de achtertuin. De dichte keuken ligt centraal en is voorzien van diverse inbouwapparatuur. Vanuit de keuken bereik je de tuin én de badkamer. De moderne badkamer is in 2023 volledig vernieuwd en uitgevoerd met een inloopdouche, toilet en wastafel met meubel, fris, modern en instapklaar.
EERSTE VERDIEPING
De overloop biedt toegang tot twee slaapkamers, beide gelegen aan de voorzijde van de woning. Dankzij de dakkapel zijn de kamers licht, praktisch en ruimtelijk in gebruik. Precies wat je nodig hebt voor een prettige slaapkamer, werkruimte of hobbykamer.
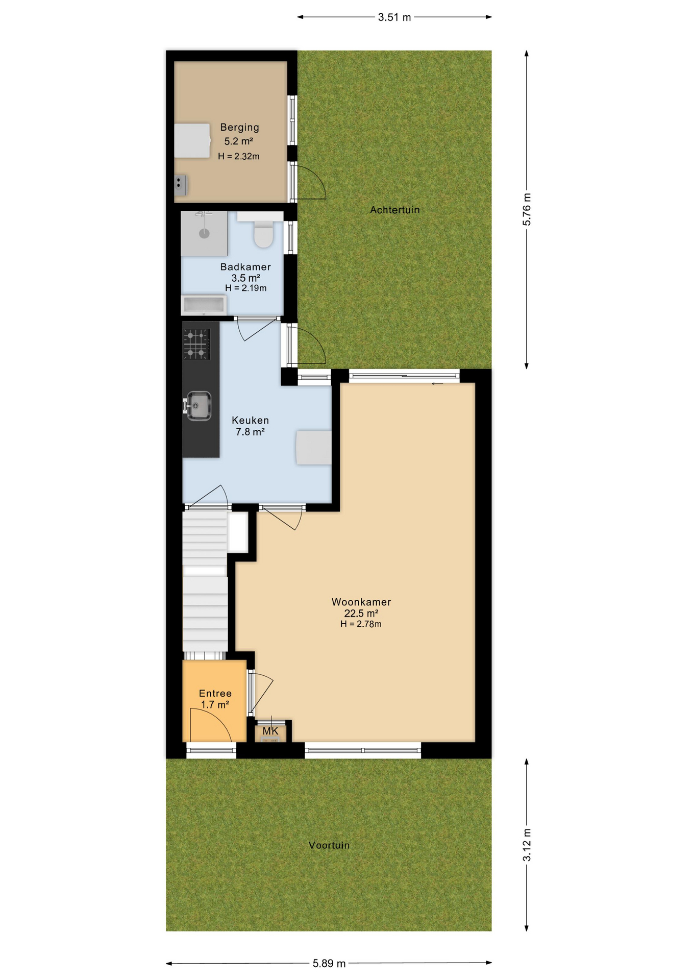
TUIN & BERGING
Aan de voorzijde vind je een onderhoudsvrije voortuin die grenst aan de autoluwe straat: ideaal voor wie rustig wil wonen zonder doorgaand verkeer.
De achtertuin ligt op het oosten, is bijna 6 meter diep en bijna 4 meter breed, en dankzij de achterom is hij ook praktisch in gebruik. De tuin is onderhoudsarm ingericht, zodat je vooral kunt genieten in plaats van werken. Hier bevindt zich ook de stenen berging, aangebouwd aan de woning en bereikbaar vanuit de tuin. Hier vind je de witgoedaansluiting en de cv-installatie (2023).
OMGEVING
De Kwekerijstraat ligt in het charmante Rode Dorp, bekend om zijn rode daken, gezellige straten en dorpse sfeer. Het is een wijk met karakter én met een bijzonder fijne ligging: op loopafstand van het centrum, het Nassauplein, diverse buurtwinkels, sportvoorzieningen, scholen en openbaar vervoer. Omdat de straat doodlopend en autoluw is, voelen bewoners zich hier extra veilig en rustig. Ook parkeren kan gewoon in de buurt.
BIJZONDERHEDEN
+ 67 m2 woonoppervlak;
+ 2 slaapkamers;
+ Energielabel E;
+ Fijne ligging;
+ Appartementsrecht van toepassing;
+ VvE bijdrage van € 76,32 p/m.
Disclaimer
Deze informatie is door ons met de nodige zorgvuldigheid samengesteld. Onzerzijds wordt echter geen enkele aansprakelijkheid aanvaard voor enige onvolledigheid, onjuistheid of anderszins, dan wel de gevolgen daarvan. Alle opgegeven maten en oppervlakten zijn indicatief.
Toelichtingsclausule NEN2580
De Meetinstructie is gebaseerd op de NEN2580. De Meetinstructie is bedoeld om een meer eenduidige manier van meten toe te passen voor het geven van een indicatie van de gebruiksoppervlakte. De Meetinstructie sluit verschillen in meetuitkomsten niet volledig uit, door bijvoorbeeld interpretatieverschillen, afrondingen of beperkingen bij het uitvoeren van de meting.
Interesse?
Heb je interesse in deze woning of wil je een bezichtiging inplannen? Wij helpen je graag."*" geeft vereiste velden aan
Video
Plattegrond











