Keizerskroon 283 – Leeuwarden
Kenmerken
Status
Vraagprijs
Oplevering
Energielabel
Bouwjaar
Inhoud
Woonoppervlakte
Aantal kamers
Aantal slaapkamers
Aantal badkamers
Perceeloppervlakte
Buitenruimte
Ligging tuin
Oppervlakte
Garage
Omschrijving
Deze ruime hoekwoning ligt op een rustige en groene plek in de wijk Aldlan. Met een woonoppervlak van circa 136 m2, vier slaapkamers en een ruim perceel bij water is dit een ideale woning voor gezinnen die ruimte zoeken zowel binnen als buiten. De ligging op de hoek zorgt voor extra lichtinval en een perceel met veel privacy rondom de woning.
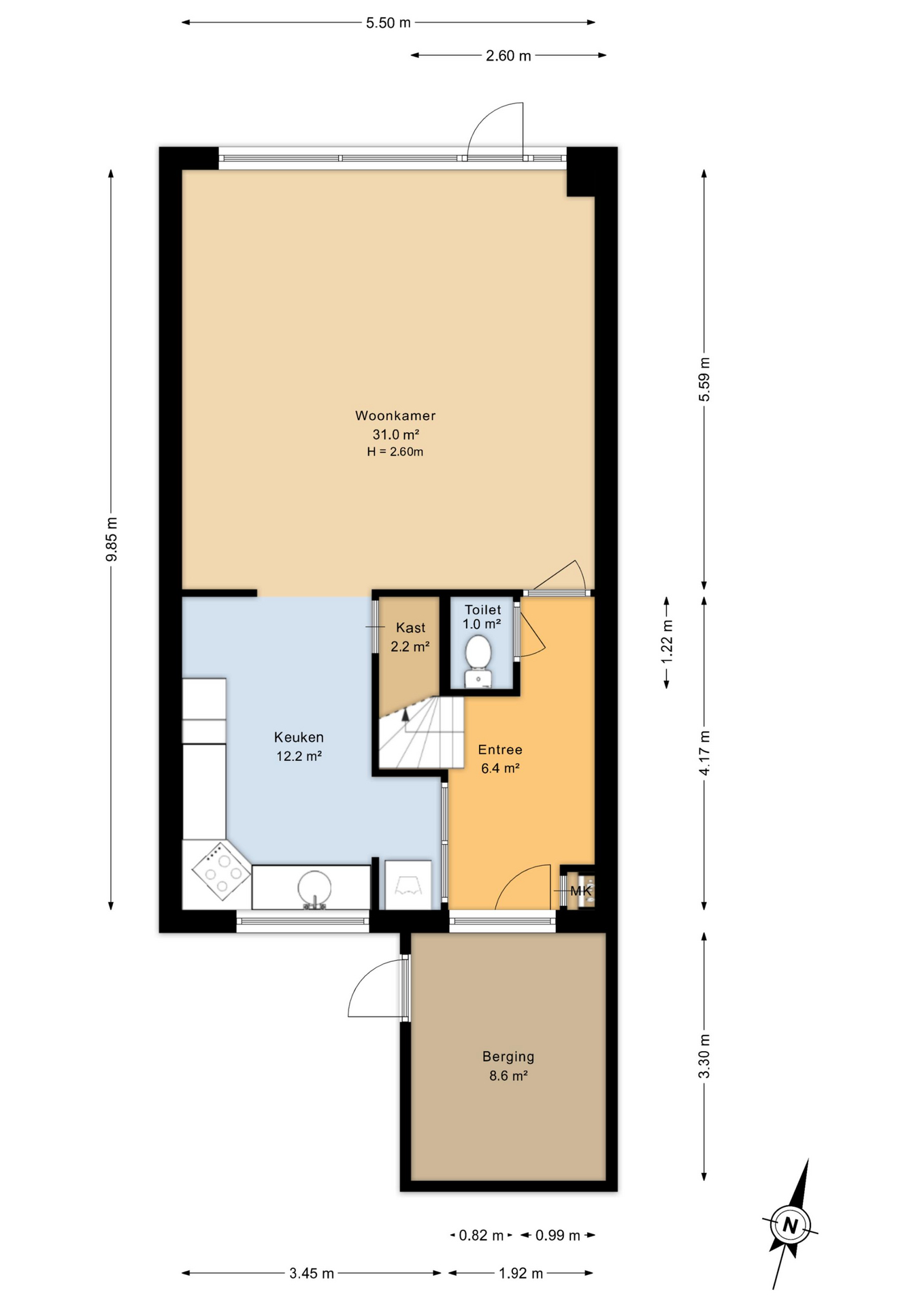
BEGANE GROND
Via de onderhoudsarme voortuin bereik je de voordeur. Binnenkomend in de ruime entree heb je toegang tot het toilet, de trap naar de eerste verdieping en de woonkamer met half open keuken.
De woonkamer is ruim opgezet en beschikt over grote raampartijen aan de tuinkant waardoor er veel natuurlijk licht binnenvalt. De ruimte biedt volop mogelijkheden voor een comfortabele zithoek en een eethoek.
De keuken bevindt zich aan de voorzijde van de woning en is royaal van formaat. De keuken is voorzien van diverse inbouwapparatuur en beschikt tevens over een witgoedaansluiting. De keuken is meer dan twintig jaar oud en kan naar wens worden gemoderniseerd, wat nieuwe bewoners de kans geeft om deze ruimte geheel naar eigen smaak in te richten.
EERSTE VERDIEPING
De ruime overloop geeft toegang tot drie slaapkamers, waarvan twee aan de achterzijde en één aan de voorzijde van de woning. Ook bevindt zich hier de badkamer met een douche in ligbad, een tweede toilet en een wastafel. Vanuit de badkamer is er toegang tot een klein balkon aan de voorzijde van de woning. Vanaf de overloop is tevens de vaste trap naar de tweede verdieping bereikbaar.
TWEEDE VERDIEPING
De tweede verdieping was oorspronkelijk ingedeeld met een ruime over
Deze ruime hoekwoning ligt op een rustige en groene plek in de wijk Aldlan. Met een woonoppervlak van circa 136 m2, vier slaapkamers en een ruim perceel bij water is dit een ideale woning voor gezinnen die ruimte zoeken zowel binnen als buiten. De
Deze ruime hoekwoning ligt op een rustige en groene plek in de wijk Aldlan. Met een woonoppervlak van circa 136 m2, vier slaapkamers en een ruim perceel bij water is dit een ideale woning voor gezinnen die ruimte zoeken zowel binnen als buiten. De ligging op de hoek zorgt voor extra lichtinval en een perceel met veel privacy rondom de woning.
BEGANE GROND
Via de onderhoudsarme voortuin bereik je de voordeur. Binnenkomend in de ruime entree heb je toegang tot het toilet, de trap naar de eerste verdieping en de woonkamer met half open keuken.
De woonkamer is ruim opgezet en beschikt over grote raampartijen aan de tuinkant waardoor er veel natuurlijk licht binnenvalt. De ruimte biedt volop mogelijkheden voor een comfortabele zithoek en een eethoek.
De keuken bevindt zich aan de voorzijde van de woning en is royaal van formaat. De keuken is voorzien van diverse inbouwapparatuur en beschikt tevens over een witgoedaansluiting. De keuken is meer dan twintig jaar oud en kan naar wens worden gemoderniseerd, wat nieuwe bewoners de kans geeft om deze ruimte geheel naar eigen smaak in te richten.
EERSTE VERDIEPING
De ruime overloop geeft toegang tot drie slaapkamers, waarvan twee aan de achterzijde en één aan de voorzijde van de woning. Ook bevindt zich hier de badkamer met een douche in ligbad, een tweede toilet en een wastafel. Vanuit de badkamer is er toegang tot een klein balkon aan de voorzijde van de woning. Vanaf de overloop is tevens de vaste trap naar de tweede verdieping bereikbaar.
TWEEDE VERDIEPING
De tweede verdieping was oorspronkelijk ingedeeld met een ruime overloop en een vierde slaapkamer. Momenteel is het een grote open ruimte die gebruikt kan worden als hobbyruimte, kantoor of speelkamer. Deze verdieping kan ook weer relatief eenvoudig worden ingedeeld met een vierde en zelfs vijfde slaapkamer. Hier bevindt zich tevens de cv installatie, een huurketel.
TUIN EN BERGING
De woning beschikt over beschutte tuinen met veel privacy. De achtertuin ligt op het noorden maar voelt door de ruimte en de open ligging toch licht en prettig aan. Achter de tuin ligt een strook gemeentegroen met water, wat zorgt voor een vrij en groen uitzicht. Op het perceel staan twee bergingen, een aangebouwde stenen berging en een vrijstaande houten berging.
OMGEVING
De woning ligt in Aldlan, een geliefde en ruim opgezette wijk in Leeuwarden. In de directe omgeving vind je scholen, winkels, sportvoorzieningen en veel groen. De wijk staat bekend om zijn rustige straten, speelplekken en prettige woonklimaat voor gezinnen. Het centrum van Leeuwarden is binnen enkele minuten fietsen bereikbaar en ook de uitvalswegen richting andere steden zijn snel te bereiken. Een fijne plek waar ruimte, rust en voorzieningen samenkomen.
BIJZONDERHEDEN
+ 136 m2 woonoppervlak;
+ 4 slaapkamers;
+ Energielabel D;
+ Huurketel;
+ Ruime perceel op de hoek;
+ Veel privacy;
+ Rustige en fijne ligging.
Disclaimer
Deze informatie is door ons met de nodige zorgvuldigheid samengesteld. Onzerzijds wordt echter geen enkele aansprakelijkheid aanvaard voor enige onvolledigheid, onjuistheid of anderszins, dan wel de gevolgen daarvan. Alle opgegeven maten en oppervlakten zijn indicatief.
Toelichtingsclausule NEN2580
De Meetinstructie is gebaseerd op de NEN2580. De Meetinstructie is bedoeld om een meer eenduidige manier van meten toe te passen voor het geven van een indicatie van de gebruiksoppervlakte. De Meetinstructie sluit verschillen in meetuitkomsten niet volledig uit, door bijvoorbeeld interpretatieverschillen, afrondingen of beperkingen bij het uitvoeren van de meting.
Interesse?
Heb je interesse in deze woning of wil je een bezichtiging inplannen? Wij helpen je graag."*" geeft vereiste velden aan
Video
Plattegrond












