Jan Jelles Hofleane 103 – Leeuwarden
Kenmerken
Status
Vraagprijs
Oplevering
Energielabel
Bouwjaar
Inhoud
Woonoppervlakte
Aantal kamers
Aantal slaapkamers
Aantal badkamers
Perceeloppervlakte
Buitenruimte
Ligging tuin
Oppervlakte
Garage
Omschrijving
Welkom aan de Jan Jelles Hofleane 103, Leeuwarden. Hier woon jij comfortabel in het gezellige Westeinde! In deze leuke eengezinswoning geniet je van een vrije zichtlijn aan de voorzijde en een fijne, zonnige achtertuin op het oosten waar je helemaal privé zit. Je komt makkelijk achterom en hebt een handige stenen berging achter in de tuin. Door de voortuin op het westen valt er lekker veel licht in de woning. De kozijnen zijn van kunststof met HR++ glas, dus het huis is goed geïsoleerd en ziet er fris uit.
Ben jij op zoek naar duurzaamheid? Er liggen sinds 2022 acht moderne PV-panelen op het dak, waarmee je flink bespaart op je energiekosten. Er is een elektrisch bedienbaar zonnescherm, plus buitenkranen aan de voor- én achterkant, ideaal als je van tuinieren houdt of gewoon graag buiten bent.
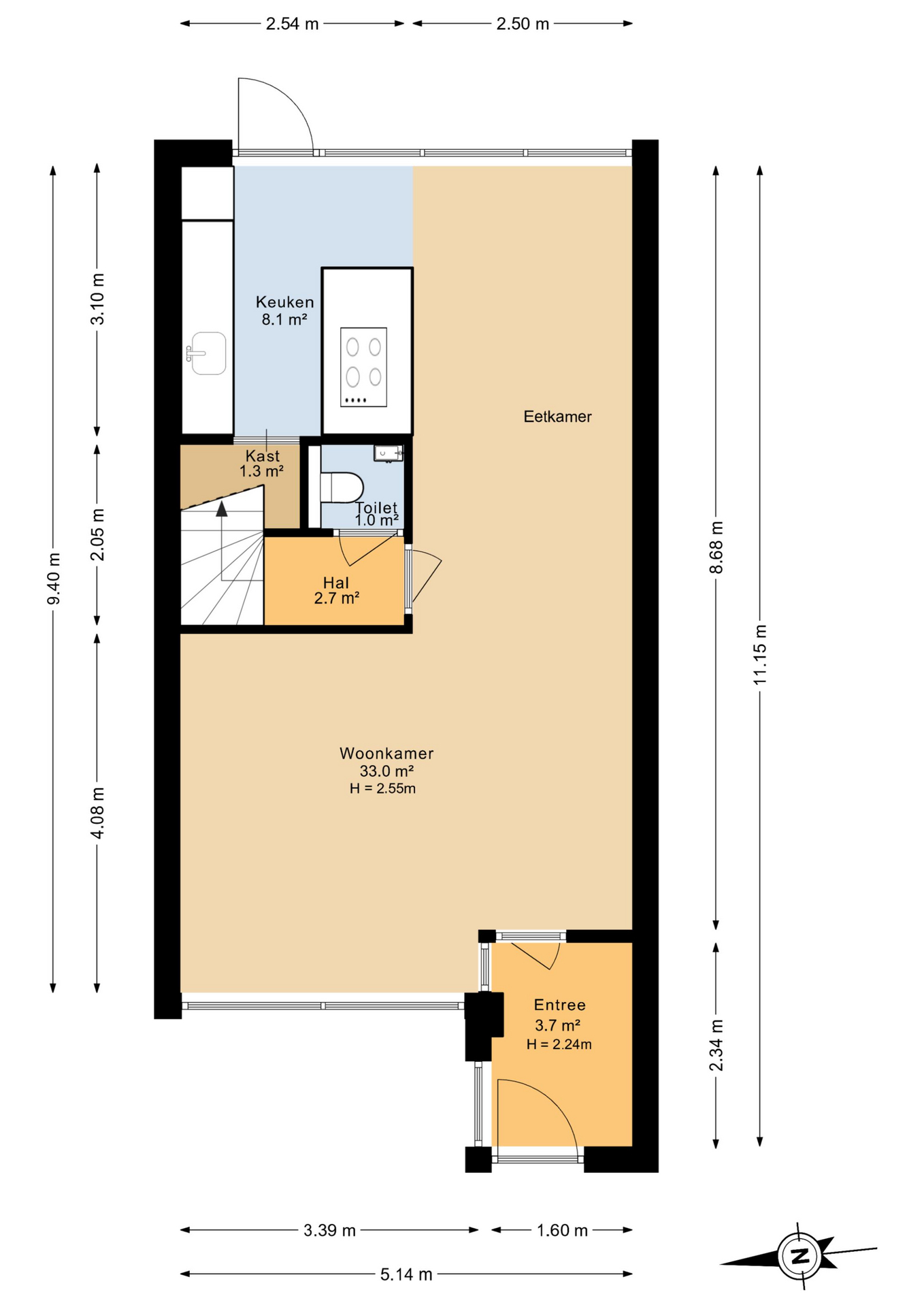
BEGANE GROND
Je komt binnen via het nieuw gedekte tochtportaal, loopt door naar een lichte woonkamer, en de keuken is helemaal nieuw en voorzien van alle gemakken zoals een inductiekookplaat met geïntegreerde afzuiging, Quooker, combi-heteluchtoven, vaatwasser en koel-vriescombinatie. In de keuken heb je een bergkast (meterkast met nieuwe schakelgroepen) en direct toegang tot de achtertuin. Vanuit de hal kun je naar het toilet en de trap naar boven.
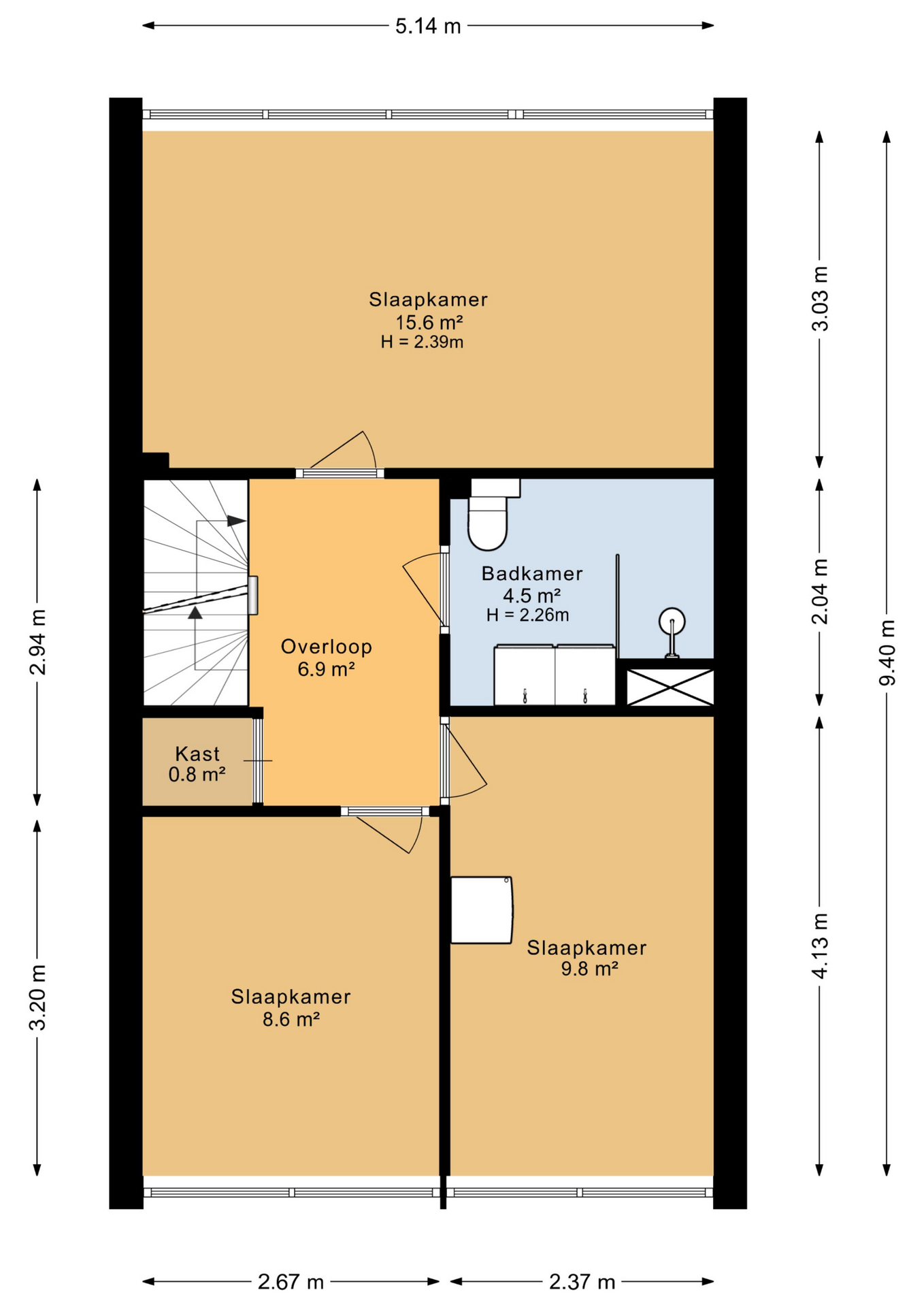
EERSTE VERDIEPING
Overloop met toegang tot drie slaapkamers, een bergkast en een moderne badkamer met toilet, inloopdouche en dubbele wastafel met meubel (2015). De ouderslaapkamer op het oosten is ruim (ca. 15,6 m²).
TWEEDE VERDIEPING
Hier vind je een royale overloop met bergkast waar de Cv-installatie staat. De berging is nu in gebru
Welkom aan de Jan Jelles Hofleane 103, Leeuwarden. Hier woon jij comfortabel in het gezellige Westeinde! In deze leuke eengezinswoning geniet je van een vrije zichtlijn aan de voorzijde en een fijne, zonnige achtertuin op het oosten waar je helema
Welkom aan de Jan Jelles Hofleane 103, Leeuwarden. Hier woon jij comfortabel in het gezellige Westeinde! In deze leuke eengezinswoning geniet je van een vrije zichtlijn aan de voorzijde en een fijne, zonnige achtertuin op het oosten waar je helemaal privé zit. Je komt makkelijk achterom en hebt een handige stenen berging achter in de tuin. Door de voortuin op het westen valt er lekker veel licht in de woning. De kozijnen zijn van kunststof met HR++ glas, dus het huis is goed geïsoleerd en ziet er fris uit.
Ben jij op zoek naar duurzaamheid? Er liggen sinds 2022 acht moderne PV-panelen op het dak, waarmee je flink bespaart op je energiekosten. Er is een elektrisch bedienbaar zonnescherm, plus buitenkranen aan de voor- én achterkant, ideaal als je van tuinieren houdt of gewoon graag buiten bent.
BEGANE GROND
Je komt binnen via het nieuw gedekte tochtportaal, loopt door naar een lichte woonkamer, en de keuken is helemaal nieuw en voorzien van alle gemakken zoals een inductiekookplaat met geïntegreerde afzuiging, Quooker, combi-heteluchtoven, vaatwasser en koel-vriescombinatie. In de keuken heb je een bergkast (meterkast met nieuwe schakelgroepen) en direct toegang tot de achtertuin. Vanuit de hal kun je naar het toilet en de trap naar boven.
EERSTE VERDIEPING
Overloop met toegang tot drie slaapkamers, een bergkast en een moderne badkamer met toilet, inloopdouche en dubbele wastafel met meubel (2015). De ouderslaapkamer op het oosten is ruim (ca. 15,6 m²).
TWEEDE VERDIEPING
Hier vind je een royale overloop met bergkast waar de Cv-installatie staat. De berging is nu in gebruik als wasruimte. Aan de voorzijde is nog een ruime slaapkamer met wastafel.
Over de wijk Westeinde: Westeinde is een fijne buurt in Leeuwarden waar je geniet van rust, veel groen en goede voorzieningen. Je bent zo in het centrum of op de uitvalswegen. In de wijk vind je diverse speeltuinen, sportclubs en scholen, ideaal voor gezinnen met kinderen. Hier woon je comfortabel en prettig, of je nu starter bent of juist met je gezin wilt doorstromen naar een grotere woning.
BIJZONDERHEDEN
+ Energielabel A;
+ 134m² woonoppervlakte;
+ Fijne woonstand;
+ Kunststof kozijnen met HR++;
+ 8 PV-panelen uit 2022;
+ Jonge en courante keuken en badkamer.
Disclaimer
Deze informatie is door ons met de nodige zorgvuldigheid samengesteld. Onzerzijds wordt echter geen enkele aansprakelijkheid aanvaard voor enige onvolledigheid, onjuistheid of anderszins, dan wel de gevolgen daarvan. Alle opgegeven maten en oppervlakten zijn indicatief.
Toelichtingsclausule NEN2580
De Meetinstructie is gebaseerd op de NEN2580. De Meetinstructie is bedoeld om een meer eenduidige manier van meten toe te passen voor het geven van een indicatie van de gebruiksoppervlakte. De Meetinstructie sluit verschillen in meetuitkomsten niet volledig uit, door bijvoorbeeld interpretatieverschillen, afrondingen of beperkingen bij het uitvoeren van de meting.
Interesse?
Heb je interesse in deze woning of wil je een bezichtiging inplannen? Wij helpen je graag."*" geeft vereiste velden aan
Video
Plattegrond











