Brandemeer 102 – Leeuwarden
Kenmerken
Status
Vraagprijs
Oplevering
Energielabel
Bouwjaar
Inhoud
Woonoppervlakte
Aantal kamers
Aantal slaapkamers
Aantal badkamers
Perceeloppervlakte
Buitenruimte
Ligging tuin
Oppervlakte
Garage
Omschrijving
De Brandmeer 102 biedt met ca. 130 m² woonoppervlak, vier slaapkamers en een zonnige tuin op het zuiden een ideale kans op jarenlang woonplezier voor zowel starters als gezinnen. De woning beschikt over energielabel C, een praktische inpandige berging en een ruime badkamer met toilet.
BEGANE GROND
Bij binnenkomst stap je de lange entree binnen. Aan de voorzijde van de woning bevindt zich de keuken, compleet uitgerust met alle benodigde inbouwapparatuur. Ook de cv-ketel is hier gesitueerd. Aan de andere zijde vind je een praktische inpandige berging, ideaal voor fietsen en extra opslag. Op de begane grond is tevens een verzorgd toilet met wastafel aanwezig.
Aan de achterzijde van de woning bevindt zich de ruime woonkamer van circa 33 m². Vanuit hier heb je toegang tot de zonnige achtertuin op het zuiden, die zowel via de achterdeur als via een handige achterom bereikbaar is.
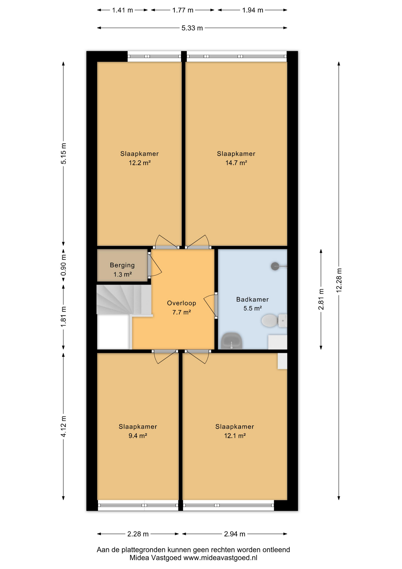
EERSTE VERDIEPING
De eerste verdieping is te bereiken via een vaste trap en biedt met vier royale slaapkamers en een ruime badkamer alles wat je nodig hebt. De badkamer is voorzien van een inloopdouche, toilet en wastafel. Daarnaast bevindt zich op de overloop nog een praktische bergkast.
OMGEVING
Bilgaard is een wijk in het noorden van Leeuwarden en staat bekend als een typische naoorlogse woonwijk met een mix van laag- en hoogbouw. De wijk telt zo’n 6.300 inwoners en heeft een diverse, multiculturele bevolking. Kenmerkend voor Bilgaard zijn de relatief betaalbare woningen, een sterke sociale samenhang en veel voorzieningen zoals een winkelcentrum, wijkcentrum en nabij natuurgebied (Leeuwarderbos).
De Brandmeer 102 biedt met ca. 130 m² woonoppervlak, vier slaapkamers en een zonnige tuin op het zuiden een ideale kans op jarenlang woonplezier voor zowel starters als gezinnen. De woning beschikt over energielabel C, een praktische inpandige be
De Brandmeer 102 biedt met ca. 130 m² woonoppervlak, vier slaapkamers en een zonnige tuin op het zuiden een ideale kans op jarenlang woonplezier voor zowel starters als gezinnen. De woning beschikt over energielabel C, een praktische inpandige berging en een ruime badkamer met toilet.
BEGANE GROND
Bij binnenkomst stap je de lange entree binnen. Aan de voorzijde van de woning bevindt zich de keuken, compleet uitgerust met alle benodigde inbouwapparatuur. Ook de cv-ketel is hier gesitueerd. Aan de andere zijde vind je een praktische inpandige berging, ideaal voor fietsen en extra opslag. Op de begane grond is tevens een verzorgd toilet met wastafel aanwezig.
Aan de achterzijde van de woning bevindt zich de ruime woonkamer van circa 33 m². Vanuit hier heb je toegang tot de zonnige achtertuin op het zuiden, die zowel via de achterdeur als via een handige achterom bereikbaar is.
EERSTE VERDIEPING
De eerste verdieping is te bereiken via een vaste trap en biedt met vier royale slaapkamers en een ruime badkamer alles wat je nodig hebt. De badkamer is voorzien van een inloopdouche, toilet en wastafel. Daarnaast bevindt zich op de overloop nog een praktische bergkast.
OMGEVING
Bilgaard is een wijk in het noorden van Leeuwarden en staat bekend als een typische naoorlogse woonwijk met een mix van laag- en hoogbouw. De wijk telt zo’n 6.300 inwoners en heeft een diverse, multiculturele bevolking. Kenmerkend voor Bilgaard zijn de relatief betaalbare woningen, een sterke sociale samenhang en veel voorzieningen zoals een winkelcentrum, wijkcentrum en nabij natuurgebied (Leeuwarderbos).
BIJZONDERHEDEN
+ Charmante jaren ’70 tussenwoning met karakter
+ Energielabel C
+ Ca. 130 m² woonoppervlak
+ 4 royale slaapkamers
+ Ruime badkamer met toilet
+ Praktische inpandige berging
+ Zonnige tuin op het zuiden
Disclaimer
Deze informatie is door ons met de nodige zorgvuldigheid samengesteld. Onzerzijds wordt echter geen enkele aansprakelijkheid aanvaard voor enige onvolledigheid, onjuistheid of anderszins, dan wel de gevolgen daarvan. Alle opgegeven maten en oppervlakten zijn indicatief.
Toelichtingsclausule NEN2580
De Meetinstructie is gebaseerd op de NEN2580. De Meetinstructie is bedoeld om een meer eenduidige manier van meten toe te passen voor het geven van een indicatie van de gebruiksoppervlakte. De Meetinstructie sluit verschillen in meetuitkomsten niet volledig uit, door bijvoorbeeld interpretatieverschillen, afrondingen of beperkingen bij het uitvoeren van de meting.
Interesse?
Heb je interesse in deze woning of wil je een bezichtiging inplannen? Wij helpen je graag."*" geeft vereiste velden aan
Video
Plattegrond










