Bachstraat 41 – Leeuwarden
Kenmerken
Status
Vraagprijs
Oplevering
Energielabel
Bouwjaar
Inhoud
Woonoppervlakte
Aantal kamers
Aantal slaapkamers
Aantal badkamers
Perceeloppervlakte
Buitenruimte
Ligging tuin
Oppervlakte
Garage
Omschrijving
Deze leuke en goed onderhouden eindwoning aan de Bachstraat 41 in Leeuwarden is zeker een bezichtiging waard! Met een moderne keuken, een badkamer op de verdieping, twee slaapkamers, en een zonnige tuin op het zuidwesten is dit een heerlijke plek om thuis te komen. De woning ligt in de geliefde Componistenbuurt: karakteristiek, rustig en toch dicht bij alle voorzieningen.
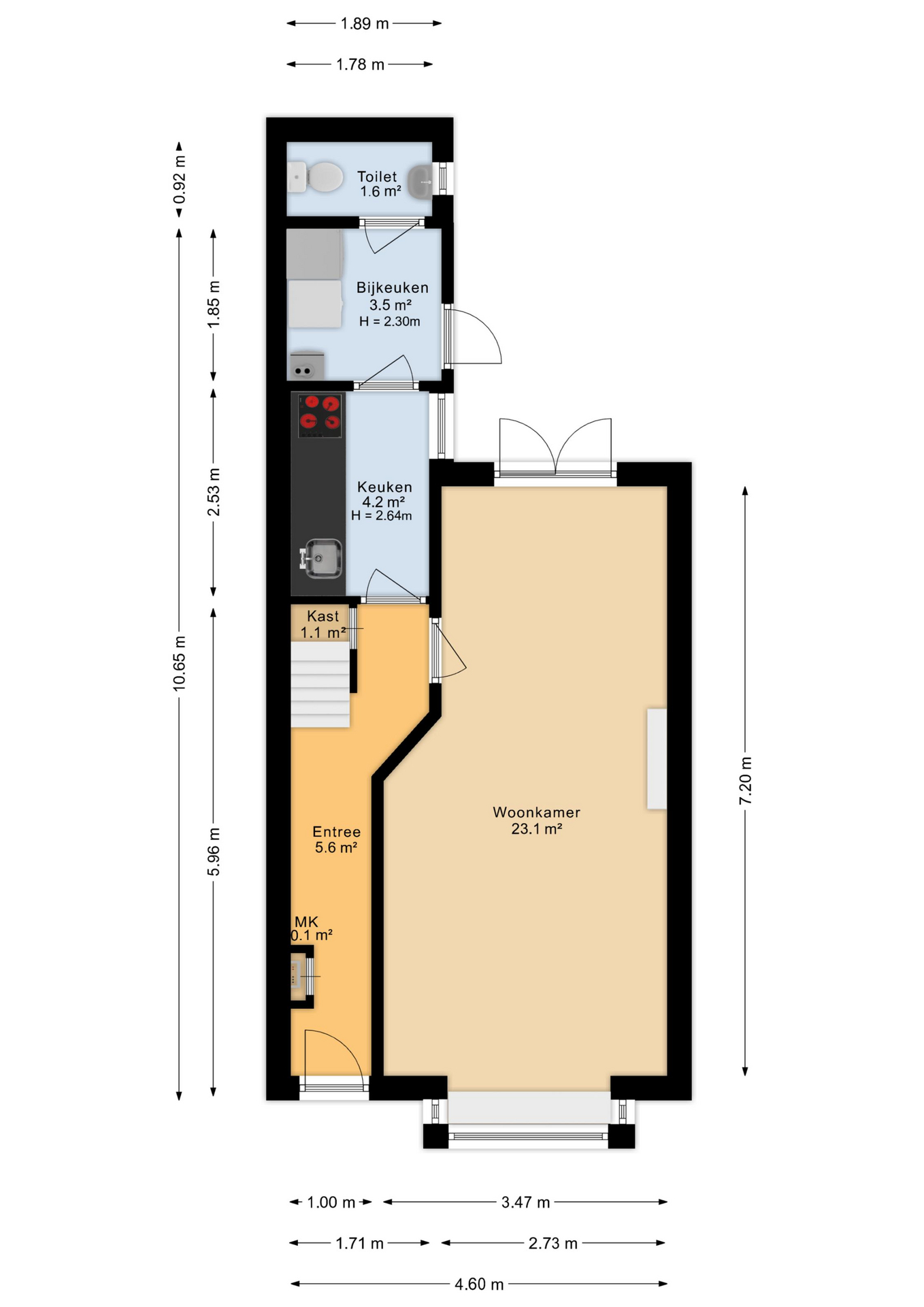
BEGANE GROND
Je komt binnen via de beschutte voortuin in de lange hal met meterkast en trapopgang. Vanuit hier stap je de lichte doorzonwoonkamer binnen, voorzien van een sfeervolle erker, strakke muren en openslaande deuren naar de tuin. Door de indeling en lichtinval voelt de woonkamer direct warm en uitnodigend aan, een ideale plek om te ontspannen of gezellig te tafelen.
De dichte keuken is in 2022 vernieuwd en uitgevoerd in een modern, tijdloos ontwerp met alle benodigde inbouwapparatuur. Aansluitend vind je de praktische bijkeuken met witgoedaansluiting, ruimte voor extra apparatuur en toegang tot het toilet.
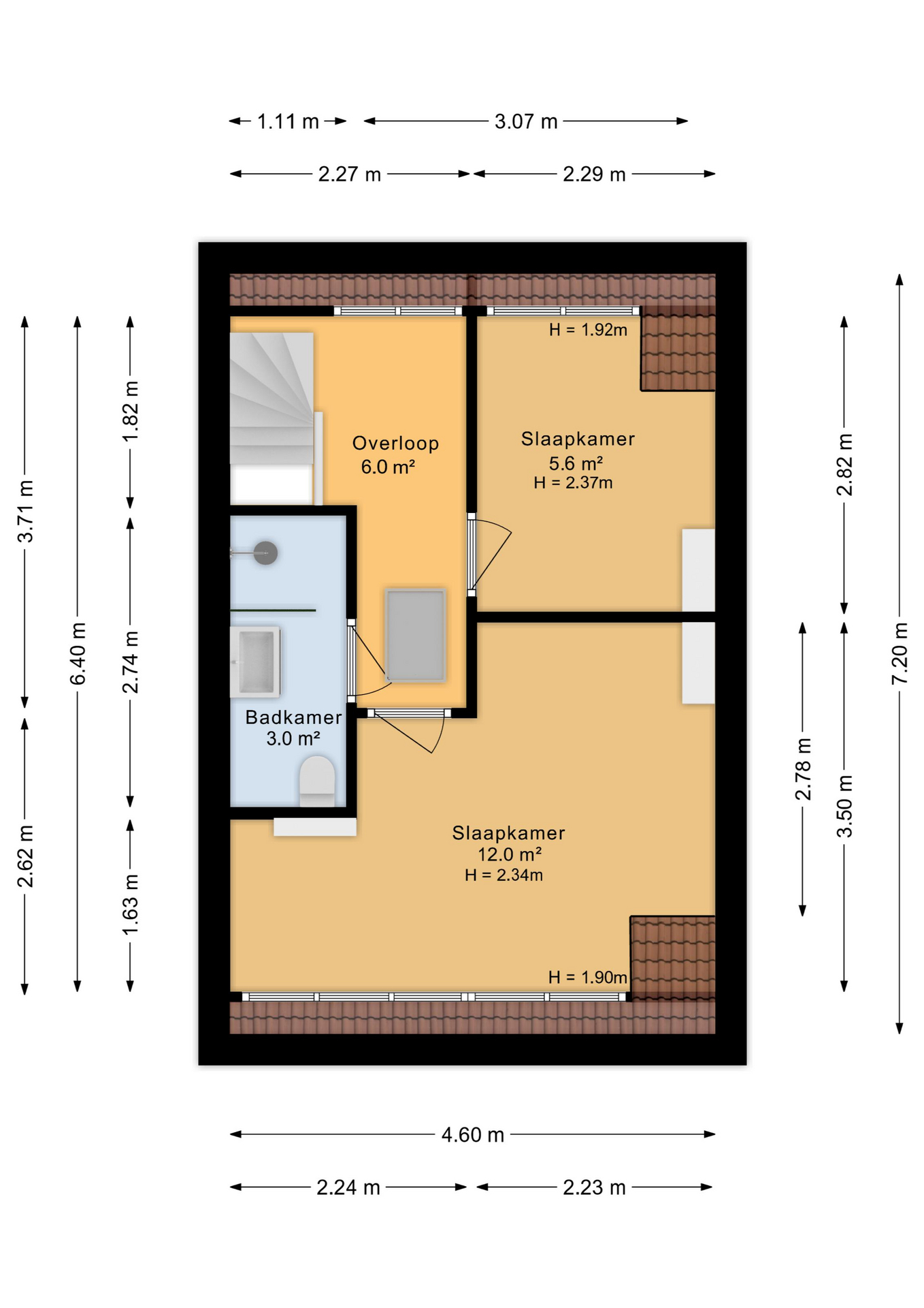
EERSTE VERDIEPING
De lichte overloop geeft toegang tot twee slaapkamers. De slaapkamer aan de achterzijde is bijzonder ruim doordat hier voorheen twee kamers waren, ideaal als royale master bedroom, met gemak weer te splitsen voor wie extra kamers nodig heeft. De badkamer op deze verdieping is modern afgewerkt en voorzien van een inloopdouche, wastafelmeubel en tweede toilet. Via een vlizotrap is de bergvliering te bereiken (nokhoogte ca. 1.72 m), perfect als extra opslagruimte.
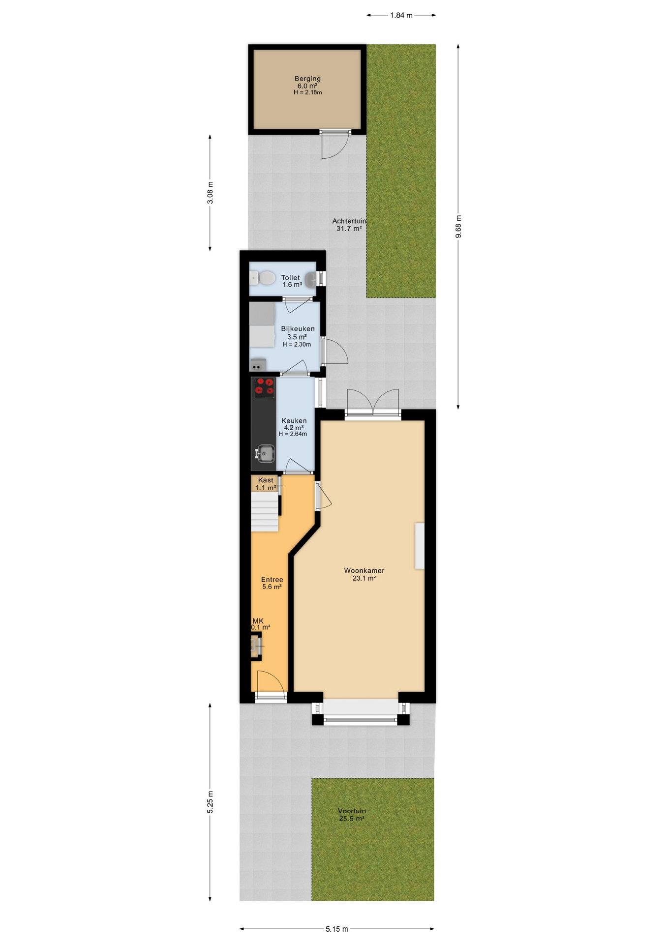
TUIN
De achtertuin is nagenoeg 10 meter diep en bereikbaar via de openslaande deuren in de woonkamer, de bijkeuken én
Deze leuke en goed onderhouden eindwoning aan de Bachstraat 41 in Leeuwarden is zeker een bezichtiging waard! Met een moderne keuken, een badkamer op de verdieping, twee slaapkamers, en een zonnige tuin op het zuidwesten is dit een heerlijke plek
Deze leuke en goed onderhouden eindwoning aan de Bachstraat 41 in Leeuwarden is zeker een bezichtiging waard! Met een moderne keuken, een badkamer op de verdieping, twee slaapkamers, en een zonnige tuin op het zuidwesten is dit een heerlijke plek om thuis te komen. De woning ligt in de geliefde Componistenbuurt: karakteristiek, rustig en toch dicht bij alle voorzieningen.
BEGANE GROND
Je komt binnen via de beschutte voortuin in de lange hal met meterkast en trapopgang. Vanuit hier stap je de lichte doorzonwoonkamer binnen, voorzien van een sfeervolle erker, strakke muren en openslaande deuren naar de tuin. Door de indeling en lichtinval voelt de woonkamer direct warm en uitnodigend aan, een ideale plek om te ontspannen of gezellig te tafelen.
De dichte keuken is in 2022 vernieuwd en uitgevoerd in een modern, tijdloos ontwerp met alle benodigde inbouwapparatuur. Aansluitend vind je de praktische bijkeuken met witgoedaansluiting, ruimte voor extra apparatuur en toegang tot het toilet.
EERSTE VERDIEPING
De lichte overloop geeft toegang tot twee slaapkamers. De slaapkamer aan de achterzijde is bijzonder ruim doordat hier voorheen twee kamers waren, ideaal als royale master bedroom, met gemak weer te splitsen voor wie extra kamers nodig heeft. De badkamer op deze verdieping is modern afgewerkt en voorzien van een inloopdouche, wastafelmeubel en tweede toilet. Via een vlizotrap is de bergvliering te bereiken (nokhoogte ca. 1.72 m), perfect als extra opslagruimte.
TUIN
De achtertuin is nagenoeg 10 meter diep en bereikbaar via de openslaande deuren in de woonkamer, de bijkeuken én een achterom. Gelegen op het zuidwesten geniet je hier vrijwel de hele dag van de zon. De tuin heeft een fijne indeling met terras en een vrijstaande houten berging voor fietsen en tuingereedschap.
OMGEVING
De Bachstraat ligt in de geliefde en rustige Componistenbuurt, een charmante buurt met veel jaren ’30 woningen en een prettig woonklimaat. Op loopafstand vind je diverse voorzieningen zoals supermarkten, scholen, kinderopvang en sportfaciliteiten. Het centrum van Leeuwarden en het treinstation bevinden zich op circa 10 fietsminuten afstand. Daarnaast ben je binnen enkele minuten op de uitvalswegen richting Drachten, Groningen en Heerenveen. Een ideale locatie voor wie houdt van rustig wonen met alle gemakken van de stad binnen handbereik!
BIJZONDERHEDEN
+ 69 m2 woonoppervlak;
+ Energielabel D;
+ 2 slaapkamers;
+ Tuin op het zuidwesten;
+ Goed onderhouden;
+ Fijne ligging.
Disclaimer
Deze informatie is door ons met de nodige zorgvuldigheid samengesteld. Onzerzijds wordt echter geen enkele aansprakelijkheid aanvaard voor enige onvolledigheid, onjuistheid of anderszins, dan wel de gevolgen daarvan. Alle opgegeven maten en oppervlakten zijn indicatief.
Toelichtingsclausule NEN2580
De Meetinstructie is gebaseerd op de NEN2580. De Meetinstructie is bedoeld om een meer eenduidige manier van meten toe te passen voor het geven van een indicatie van de gebruiksoppervlakte. De Meetinstructie sluit verschillen in meetuitkomsten niet volledig uit, door bijvoorbeeld interpretatieverschillen, afrondingen of beperkingen bij het uitvoeren van de meting.
Interesse?
Heb je interesse in deze woning of wil je een bezichtiging inplannen? Wij helpen je graag."*" geeft vereiste velden aan
Video
Plattegrond












