Yn ‘e Lijte 64 – Grou
Kenmerken
Status
Vraagprijs
Oplevering
Energielabel
Bouwjaar
Inhoud
Woonoppervlakte
Aantal kamers
Aantal slaapkamers
Aantal badkamers
Perceeloppervlakte
Buitenruimte
Ligging tuin
Oppervlakte
Garage
Omschrijving
Ervaar het ultieme gevoel van vrijheid in deze vrijstaande recreatiewoning op een unieke locatie aan het water, gelegen op maar liefst 771 m² eigen grond. Geniet van het prachtige uitzicht over het Prinses Margrietkanaal en het pontje. Een plek waar rust, natuur en watersport samenkomen!
BEGANE GROND
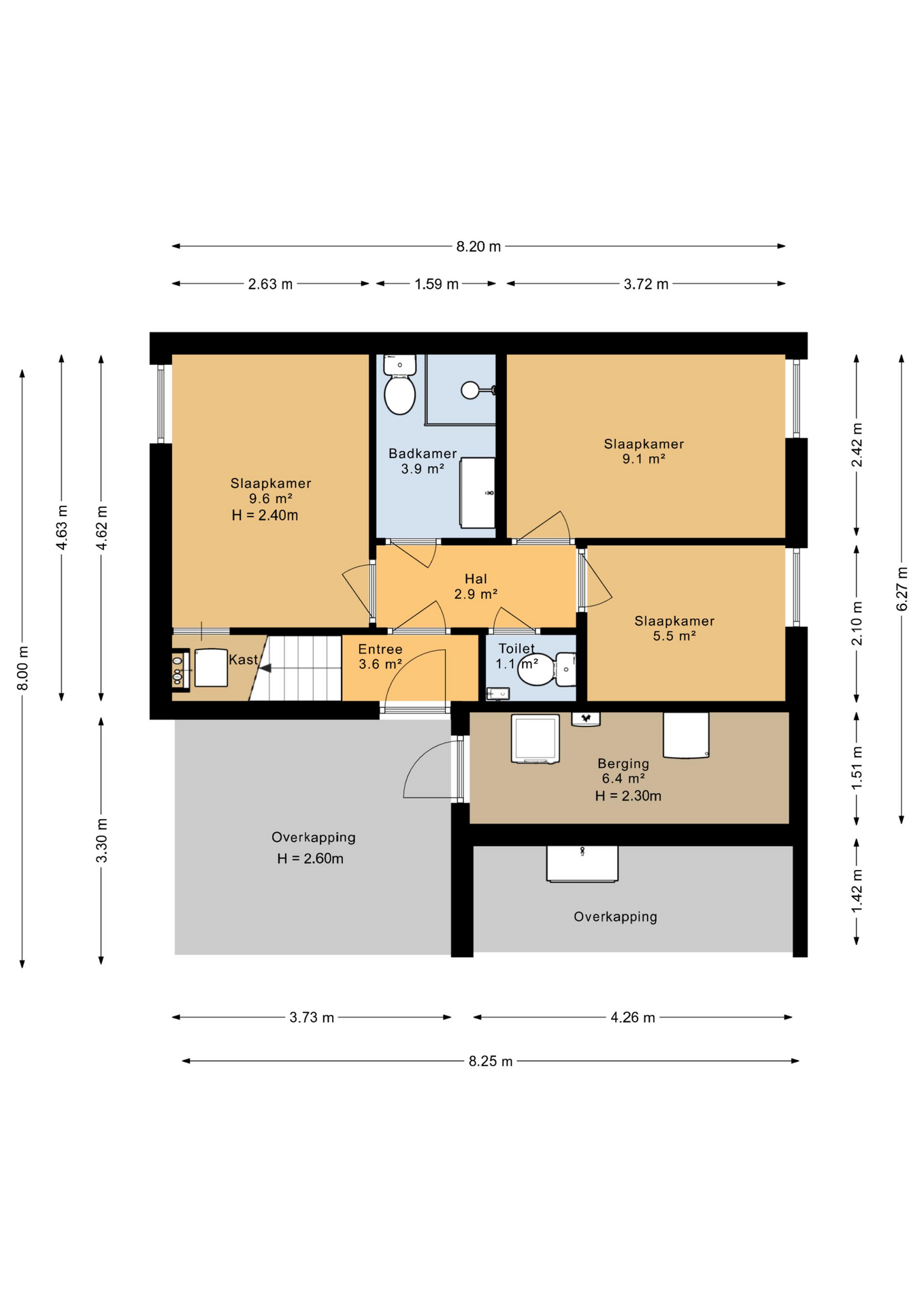
Via het pad om de woning bereik je de voordeur en de berging. Bij binnenkomst word je verwelkomd in de hal met toegang tot de eerste verdieping. Middels een tweede hal kom je bij een separaat toilet, drie goed bemeten slaapkamers en een badkamer voorzien van een wastafel met meubel, douche en tweede toilet.
EERSTE VERDIEPING
De vaste trap leidt naar de royale living met hoge plafonds en grote raampartijen, waardoor er veel licht binnenvalt en je een schitterend uitzicht hebt op de tuin en het water. De open hoekkeuken is uitgerust met een koelkast, inductiekookplaat en oven. De woonkamer biedt een aangename ruimte om te ontspannen of samen te komen met familie en vrienden.
BUITEN
De buitenruimte is minstens zo aantrekkelijk: een zonnig terras met houten vlonderplanken, volop privacy en voldoende parkeergelegenheid op eigen terrein. De tuin is onder architectuur aangelegd, voorzien van drainage, en beschikt over een buitenkeuken – ideaal voor lange zomeravonden en gezellige diners in de open lucht. Vanaf het eind van het straatje wandel je zo naar de boulevardsteiger, waar je eenvoudig een ligplaats voor een boot kunt huren. Binnen enkele minuten vaar je het Friese merengebied op!
BIJZONDERHEDEN
771 m² eigen grond;
Vrijstaand en beschut gelegen;
Drie s
Ervaar het ultieme gevoel van vrijheid in deze vrijstaande recreatiewoning op een unieke locatie aan het water, gelegen op maar liefst 771 m² eigen grond. Geniet van het prachtige uitzicht over het Prinses Margrietkanaal en het pontje. Een plek
Ervaar het ultieme gevoel van vrijheid in deze vrijstaande recreatiewoning op een unieke locatie aan het water, gelegen op maar liefst 771 m² eigen grond. Geniet van het prachtige uitzicht over het Prinses Margrietkanaal en het pontje. Een plek waar rust, natuur en watersport samenkomen!
BEGANE GROND
Via het pad om de woning bereik je de voordeur en de berging. Bij binnenkomst word je verwelkomd in de hal met toegang tot de eerste verdieping. Middels een tweede hal kom je bij een separaat toilet, drie goed bemeten slaapkamers en een badkamer voorzien van een wastafel met meubel, douche en tweede toilet.
EERSTE VERDIEPING
De vaste trap leidt naar de royale living met hoge plafonds en grote raampartijen, waardoor er veel licht binnenvalt en je een schitterend uitzicht hebt op de tuin en het water. De open hoekkeuken is uitgerust met een koelkast, inductiekookplaat en oven. De woonkamer biedt een aangename ruimte om te ontspannen of samen te komen met familie en vrienden.
BUITEN
De buitenruimte is minstens zo aantrekkelijk: een zonnig terras met houten vlonderplanken, volop privacy en voldoende parkeergelegenheid op eigen terrein. De tuin is onder architectuur aangelegd, voorzien van drainage, en beschikt over een buitenkeuken – ideaal voor lange zomeravonden en gezellige diners in de open lucht. Vanaf het eind van het straatje wandel je zo naar de boulevardsteiger, waar je eenvoudig een ligplaats voor een boot kunt huren. Binnen enkele minuten vaar je het Friese merengebied op!
BIJZONDERHEDEN
771 m² eigen grond;
Vrijstaand en beschut gelegen;
Drie slaapkamers;
Ruime tuin op het westen, onder architectuur aangelegd en voorzien van drainage;
Buitenkeuken aanwezig;
Houten vlonderplanken op het terras;
Eigen parkeerplaatsen op het perceel;
Op loopafstand van het vaarwater;
Centrale ligging nabij Grou en natuurgebied De Alde Feanen;
Schilderwerk 2025;
VVE bedraagt €175,39 per maand.
Verhuur in eigen beheer is mogelijk.
WATERPARK YN 'E LIJTE
Waterpark Yn 'e Lijte ligt ideaal aan de rand van het sfeervolle watersportdorp Grou, met voorzieningen zoals supermarkten, horeca en watersportverhuur. Of je nu houdt van zeilen, fietsen, wandelen of simpelweg wilt genieten van de rust, hier vind je alles wat Friesland zo bijzonder maakt.
Disclaimer
Deze informatie is met de nodige zorgvuldigheid samengesteld. Er wordt geen aansprakelijkheid aanvaard voor eventuele onvolledigheden, onjuistheden of de gevolgen daarvan. Alle opgegeven maten en oppervlakten zijn indicatief.
Toelichtingsclausule NEN2580
De Meetinstructie is gebaseerd op de NEN2580 en bedoeld om op eenduidige wijze de gebruiksoppervlakte te meten. Verschillen in uitkomsten zijn niet volledig uit te sluiten, bijvoorbeeld door interpretatieverschillen of afrondingen.
Interesse?
Heb je interesse in deze woning of wil je een bezichtiging inplannen? Wij helpen je graag."*" geeft vereiste velden aan
Video
Geen video beschikbaarPlattegrond









