van Heemstrastraat 41 – Leeuwarden
Kenmerken
Status
Vraagprijs
Oplevering
Energielabel
Bouwjaar
Inhoud
Woonoppervlakte
Aantal kamers
Aantal slaapkamers
Aantal badkamers
Perceeloppervlakte
Buitenruimte
Ligging tuin
Oppervlakte
Garage
Omschrijving
Welkom bij deze sfeervolle tussenwoning, gelegen aan een brede, rustige straat met volop parkeergelegenheid. Deze charmante woning is grotendeels gerenoveerd en combineert modern wooncomfort met een knusse, huiselijke sfeer. Met een praktische indeling, een lichte woonkamer, een aangebouwde keuken en een heerlijk beschut binnenplaatsje met achterom, is dit de ideale plek voor wie comfortabel wil wonen op een rustige, maar goed bereikbare locatie.
BEGANE GROND
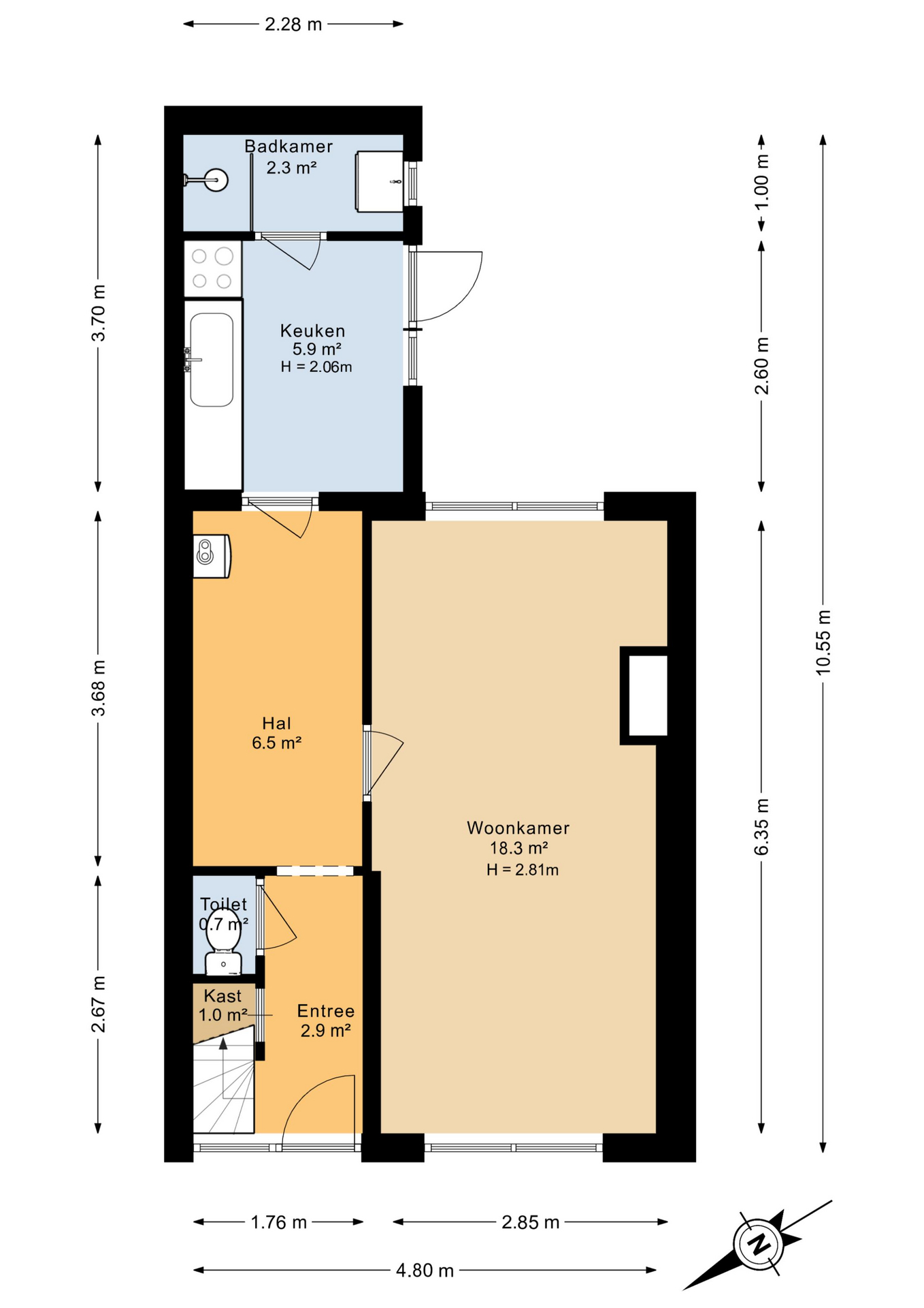
Via de entree stap je in de hal met trapopgang, trapkast, meterkast en een separaat toilet. De woonkamer is heerlijk licht en volledig vernieuwd: voorzien van schuimbeton, nieuw laminaat, strak gestucte wanden en een frisse uitstraling. Vanuit de woonkamer bereik je de aangebouwde keuken, uitgerust met een praktisch keukenblok, gasfornuis en afzuigkap.
Aansluitend vind je de moderne badkamer, compleet met douche en wastafel. De keuken biedt bovendien toegang tot het knusse binnenplaatsje, een fijne plek om in alle rust buiten te zitten. Dankzij de achterom is het binnenplaatsje ook nog eens bijzonder praktisch in gebruik.
EERSTE VERDIEPING
Op de eerste verdieping bevinden zich twee ruime slaapkamers en een overloop met bergruimte. Ook hier is alles nieuw afgewerkt: beide kamers beschikken over een nieuwe vloeren en strak gestucte wanden, waardoor ze direct klaar zijn voor gebruik.
ZOLDER
De zolder is bereikbaar via een vaste trap en biedt volop mogelijkheden. De extra kamer, voorzien van nieuwe laminaat vloer, kan naar wens worden ingericht als logeerkamer, hobbyruimte of thuiskantoor, ideaal voor wie extra ruimte zoekt
Welkom bij deze sfeervolle tussenwoning, gelegen aan een brede, rustige straat met volop parkeergelegenheid. Deze charmante woning is grotendeels gerenoveerd en combineert modern wooncomfort met een knusse, huiselijke sfeer. Met een praktische ind
Welkom bij deze sfeervolle tussenwoning, gelegen aan een brede, rustige straat met volop parkeergelegenheid. Deze charmante woning is grotendeels gerenoveerd en combineert modern wooncomfort met een knusse, huiselijke sfeer. Met een praktische indeling, een lichte woonkamer, een aangebouwde keuken en een heerlijk beschut binnenplaatsje met achterom, is dit de ideale plek voor wie comfortabel wil wonen op een rustige, maar goed bereikbare locatie.
BEGANE GROND
Via de entree stap je in de hal met trapopgang, trapkast, meterkast en een separaat toilet. De woonkamer is heerlijk licht en volledig vernieuwd: voorzien van schuimbeton, nieuw laminaat, strak gestucte wanden en een frisse uitstraling. Vanuit de woonkamer bereik je de aangebouwde keuken, uitgerust met een praktisch keukenblok, gasfornuis en afzuigkap.
Aansluitend vind je de moderne badkamer, compleet met douche en wastafel. De keuken biedt bovendien toegang tot het knusse binnenplaatsje, een fijne plek om in alle rust buiten te zitten. Dankzij de achterom is het binnenplaatsje ook nog eens bijzonder praktisch in gebruik.
EERSTE VERDIEPING
Op de eerste verdieping bevinden zich twee ruime slaapkamers en een overloop met bergruimte. Ook hier is alles nieuw afgewerkt: beide kamers beschikken over een nieuwe vloeren en strak gestucte wanden, waardoor ze direct klaar zijn voor gebruik.
ZOLDER
De zolder is bereikbaar via een vaste trap en biedt volop mogelijkheden. De extra kamer, voorzien van nieuwe laminaat vloer, kan naar wens worden ingericht als logeerkamer, hobbyruimte of thuiskantoor, ideaal voor wie extra ruimte zoekt.
OMGEVING
De woning ligt aan een brede, rustige straat met voldoende parkeergelegenheid. In de directe omgeving vind je winkels, scholen en openbaar vervoer. Dankzij de goede bereikbaarheid en prettige woonomgeving combineert deze woning het beste van twee werelden: rust en gemak.
BIJZONDERHEDEN
+ Energielabel C;
+ 69 m2 woonoppervlakte;
+ Fraai gelegen tussenwoning met aangebouwde keuken;
+ Knus binnenplaatsje met achterom;
+ Twee slaapkamers en extra kamer op zolder;
+ Gelegen aan een brede straat met ruime parkeergelegenheid;
+ Niet-zelf-bewoningsclausule, ouderdom & mogelijkheid tot asbest clausule van toepassing.
Disclaimer
Deze informatie is door ons met de nodige zorgvuldigheid samengesteld. Onzerzijds wordt echter geen enkele aansprakelijkheid aanvaard voor enige onvolledigheid, onjuistheid of anderszins, dan wel de gevolgen daarvan. Alle opgegeven maten en oppervlakten zijn indicatief.
Toelichtingsclausule NEN2580
De Meetinstructie is gebaseerd op de NEN2580. De Meetinstructie is bedoeld om een meer eenduidige manier van meten toe te passen voor het geven van een indicatie van de gebruiksoppervlakte. De Meetinstructie sluit verschillen in meetuitkomsten niet volledig uit, door bijvoorbeeld interpretatieverschillen, afrondingen of beperkingen bij het uitvoeren van de meting.
Interesse?
Heb je interesse in deze woning of wil je een bezichtiging inplannen? Wij helpen je graag."*" geeft vereiste velden aan
Video
Geen video beschikbaarPlattegrond











