Mieddyk 78 – Menaam
Kenmerken
Status
Vraagprijs
Oplevering
Energielabel
Bouwjaar
Inhoud
Woonoppervlakte
Aantal kamers
Aantal slaapkamers
Aantal badkamers
Perceeloppervlakte
Buitenruimte
Ligging tuin
Oppervlakte
Garage
Omschrijving
Aan de rand van het dorp Menaam staat deze ruime en nette twee onder een kapwoning met 123 m2 woonoppervlak. De woning beschikt over drie slaapkamers met de mogelijkheid om dit eenvoudig weer terug te brengen naar vier, heeft een eigen oprit met plek voor twee auto’s, een aangebouwde garage en een heerlijke tuin op het zuidwesten met achterom. Een fijne gezinswoning op een rustige locatie met volop ruimte en comfort.
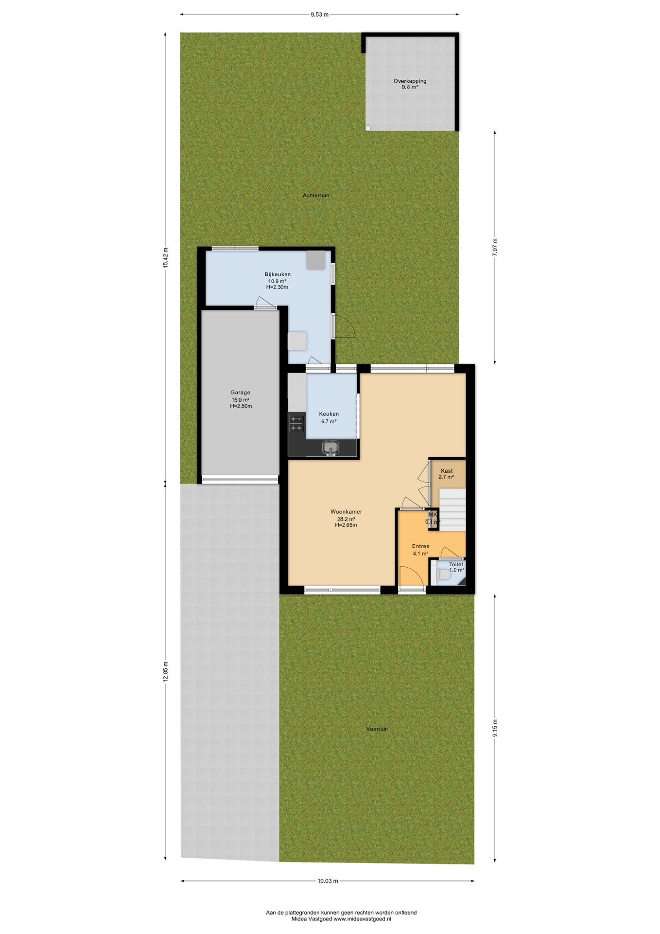
BEGANE GROND
Via de lichte entree kom je binnen in de hal met toegang tot het toilet, de trap naar de eerste verdieping en de woonkamer. De woonkamer is ruim en prettig licht door de grote raampartijen en de gunstige ligging. Hier vind je ook een praktische inbouwkast en een sfeervolle pelletkachel die zorgt voor extra warmte en gezelligheid.
De open keuken voorzien van diverse inbouwapparatuur en sluit naadloos aan op de woonkamer. Vanuit de keuken kom je in de bijkeuken waar zich de witgoedaansluitingen bevinden. De bijkeuken biedt extra bergruimte en geeft toegang tot zowel de garage als de achtertuin.
EERSTE VERDIEPING
De overloop geeft toegang tot twee slaapkamers en de badkamer. De slaapkamer aan de achterzijde beschikt over een ruime inloopkast of aansluitend kantoor, wat voorheen een aparte slaapkamer was en eenvoudig weer als zodanig te realiseren is. De badkamer is modern uitgevoerd met een inloopdouche, tweede toilet en dubbele wastafel. Vanaf de overloop bereik je via een vaste trap de tweede verdieping.
TWEEDE VERDIEPING
Hier bevindt zich een overloop met bergruimte en de cv installatie uit 2017. Daarnaast is er een derde slaapkamer aanwezig met e
Aan de rand van het dorp Menaam staat deze ruime en nette twee onder een kapwoning met 123 m2 woonoppervlak. De woning beschikt over drie slaapkamers met de mogelijkheid om dit eenvoudig weer terug te brengen naar vier, heeft een eigen oprit met p
Aan de rand van het dorp Menaam staat deze ruime en nette twee onder een kapwoning met 123 m2 woonoppervlak. De woning beschikt over drie slaapkamers met de mogelijkheid om dit eenvoudig weer terug te brengen naar vier, heeft een eigen oprit met plek voor twee auto’s, een aangebouwde garage en een heerlijke tuin op het zuidwesten met achterom. Een fijne gezinswoning op een rustige locatie met volop ruimte en comfort.
BEGANE GROND
Via de lichte entree kom je binnen in de hal met toegang tot het toilet, de trap naar de eerste verdieping en de woonkamer. De woonkamer is ruim en prettig licht door de grote raampartijen en de gunstige ligging. Hier vind je ook een praktische inbouwkast en een sfeervolle pelletkachel die zorgt voor extra warmte en gezelligheid.
De open keuken voorzien van diverse inbouwapparatuur en sluit naadloos aan op de woonkamer. Vanuit de keuken kom je in de bijkeuken waar zich de witgoedaansluitingen bevinden. De bijkeuken biedt extra bergruimte en geeft toegang tot zowel de garage als de achtertuin.
EERSTE VERDIEPING
De overloop geeft toegang tot twee slaapkamers en de badkamer. De slaapkamer aan de achterzijde beschikt over een ruime inloopkast of aansluitend kantoor, wat voorheen een aparte slaapkamer was en eenvoudig weer als zodanig te realiseren is. De badkamer is modern uitgevoerd met een inloopdouche, tweede toilet en dubbele wastafel. Vanaf de overloop bereik je via een vaste trap de tweede verdieping.
TWEEDE VERDIEPING
Hier bevindt zich een overloop met bergruimte en de cv installatie uit 2017. Daarnaast is er een derde slaapkamer aanwezig met extra opbergruimte achter de knieschotten.
TUIN & GARAGE
De voor en achtertuin zijn verzorgd aangelegd en goed onderhouden. De oprit is bijna 13 meter lang en biedt gemakkelijk ruimte voor twee auto’s. De garage is voorzien van elektra en een overheaddeur die momenteel niet functioneert, maar wel toegankelijk is via de achterzijde.
De achtertuin ligt op het zuidwesten en is onderhoudsarm ingericht. Met twee terrassen, een fijne overkapping en veel privacy is dit een heerlijke plek om van de zon te genieten. Via de zijkant van de woning is er een achterom aanwezig.
OMGEVING
De woning ligt aan de rand van Menaam, een rustig en gemoedelijk dorp met een prettige woonomgeving. In het dorp zijn diverse voorzieningen aanwezig zoals een supermarkt, basisschool en sportverenigingen. Daarnaast ben je binnen korte tijd in Leeuwarden en zijn uitvalswegen goed bereikbaar. Tevens is er een bushalte op één minuut loopafstand. De ligging aan de rand van het dorp zorgt voor een vrij en rustig gevoel, terwijl je toch alle voorzieningen binnen handbereik hebt.
BIJZONDERHEDEN
+ 123 m2 woonoppervlak;
+ 3 slaapkamers (met mogelijkheid tot 4);
+ Energielabel D;
+ Ruime oprit met garage;
+ Deels kunststof kozijnen;
+ Zonnige tuin op zuidwest met achterom;
+ Rustige en open ligging aan de rand van het dorp;
+ Alle voorzieningen en uitvalswegen dichtbij.
Disclaimer
Deze informatie is door ons met de nodige zorgvuldigheid samengesteld. Onzerzijds wordt echter geen enkele aansprakelijkheid aanvaard voor enige onvolledigheid, onjuistheid of anderszins, dan wel de gevolgen daarvan. Alle opgegeven maten en oppervlakten zijn indicatief.
Toelichtingsclausule NEN2580
De Meetinstructie is gebaseerd op de NEN2580. De Meetinstructie is bedoeld om een meer eenduidige manier van meten toe te passen voor het geven van een indicatie van de gebruiksoppervlakte. De Meetinstructie sluit verschillen in meetuitkomsten niet volledig uit, door bijvoorbeeld interpretatieverschillen, afrondingen of beperkingen bij het uitvoeren van de meting.
Interesse?
Heb je interesse in deze woning of wil je een bezichtiging inplannen? Wij helpen je graag."*" geeft vereiste velden aan
Video
Plattegrond












