It Heafek 19 – Leeuwarden
Kenmerken
Status
Vraagprijs
Oplevering
Energielabel
Bouwjaar
Inhoud
Woonoppervlakte
Aantal kamers
Aantal slaapkamers
Aantal badkamers
Perceeloppervlakte
Buitenruimte
Ligging tuin
Oppervlakte
Garage
Omschrijving
Welkom bij deze verzorgde hoekwoning in het geliefde buurtschap Techum, ten zuiden van Leeuwarden!
Op een heerlijk rustig plekje, zonder directe achterburen, vind je deze moderne woning uit 2016. De woning combineert comfort met een zonnige ligging. De verzorgde achtertuin op het zuidwesten nodigt uit om tot laat in de avond van de zon te genieten.
BEGANE GROND
Via de entree stap je binnen in de hal met toegang tot het wandcloset met fonteintje. De ruime, tuingerichte woonkamer is voorzien van een schuifpui die zorgt voor veel lichtinval en direct contact met de achtertuin. Een trapkast biedt extra bergruimte.
De open keuken is uitgerust met een moderne keukenunit voorzien van diverse inbouwapparatuur, ideaal voor wie graag kookt in een eigentijdse setting. Het geheel wordt compleet gemaakt met comfortabele vloerverwarming.
EERSTE VERDIEPING
Op de eerste verdieping vind je een overloop met toegang tot drie slaapkamers. De moderne, licht betegelde badkamer is voorzien van een douche, dubbele wastafel met meubel en tweede hangtoilet.
TWEEDE VERDIEPING
Via een vlizotrap bereik je de praktische zolderberging, ideaal als extra opslagruimte.
TUIN
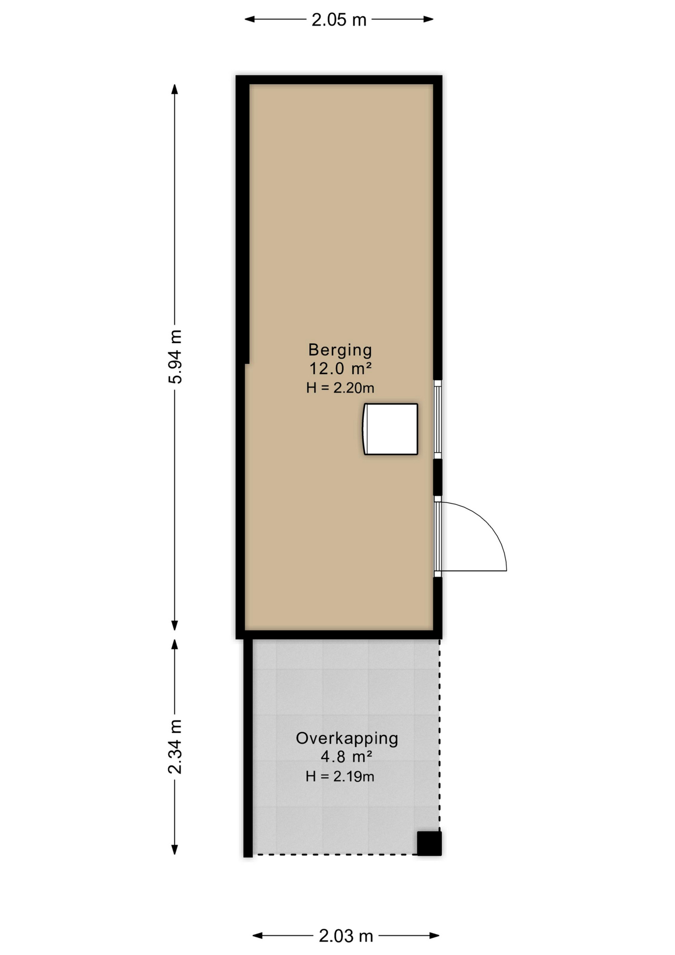
De zonnige achtertuin, gelegen op het zuidwesten, is een echt hoogtepunt. Dankzij de ligging geniet je hier van zon tot in de late avonduren. De bestaande houten berging is recent vergroot en voorzien van een gezellige veranda, een fijne plek om te ontspannen of te genieten met familie en vrienden. Parkeren doe je eenvoudig aan de achterzijde van de woning.
OMGEVING
Techum is een rustig en groen buurtschap a
Welkom bij deze verzorgde hoekwoning in het geliefde buurtschap Techum, ten zuiden van Leeuwarden!
Op een heerlijk rustig plekje, zonder directe achterburen, vind je deze moderne woning uit 2016. De woning combineert comfort met een zonnige
Welkom bij deze verzorgde hoekwoning in het geliefde buurtschap Techum, ten zuiden van Leeuwarden!
Op een heerlijk rustig plekje, zonder directe achterburen, vind je deze moderne woning uit 2016. De woning combineert comfort met een zonnige ligging. De verzorgde achtertuin op het zuidwesten nodigt uit om tot laat in de avond van de zon te genieten.
BEGANE GROND
Via de entree stap je binnen in de hal met toegang tot het wandcloset met fonteintje. De ruime, tuingerichte woonkamer is voorzien van een schuifpui die zorgt voor veel lichtinval en direct contact met de achtertuin. Een trapkast biedt extra bergruimte.
De open keuken is uitgerust met een moderne keukenunit voorzien van diverse inbouwapparatuur, ideaal voor wie graag kookt in een eigentijdse setting. Het geheel wordt compleet gemaakt met comfortabele vloerverwarming.
EERSTE VERDIEPING
Op de eerste verdieping vind je een overloop met toegang tot drie slaapkamers. De moderne, licht betegelde badkamer is voorzien van een douche, dubbele wastafel met meubel en tweede hangtoilet.
TWEEDE VERDIEPING
Via een vlizotrap bereik je de praktische zolderberging, ideaal als extra opslagruimte.
TUIN
De zonnige achtertuin, gelegen op het zuidwesten, is een echt hoogtepunt. Dankzij de ligging geniet je hier van zon tot in de late avonduren. De bestaande houten berging is recent vergroot en voorzien van een gezellige veranda, een fijne plek om te ontspannen of te genieten met familie en vrienden. Parkeren doe je eenvoudig aan de achterzijde van de woning.
OMGEVING
Techum is een rustig en groen buurtschap aan de zuidkant van Leeuwarden, met een moderne uitstraling en goede verbindingen naar de stad. De omgeving biedt volop ruimte, wandel- en fietsmogelijkheden, en een prettige woonbeleving met veel privacy.
BIJZONDERHEDEN
+ Bouwjaar 2016, optimaal geïsoleerd;
+ Vrije ligging zonder directe achterburen;
+ Brede, zonnige achtertuin op het zuidwesten;
+ Uitgebouwde houten berging met veranda;
+ Parkeergelegenheid op eigen erf;
+ Vrijwel volledig voorzien van comfortabele vloerverwarming.
Disclaimer
Deze informatie is door ons met de nodige zorgvuldigheid samengesteld. Onzerzijds wordt echter geen enkele aansprakelijkheid aanvaard voor enige onvolledigheid, onjuistheid of anderszins, dan wel de gevolgen daarvan. Alle opgegeven maten en oppervlakten zijn indicatief.
Toelichtingsclausule NEN2580
De Meetinstructie is gebaseerd op de NEN2580. De Meetinstructie is bedoeld om een meer eenduidige manier van meten toe te passen voor het geven van een indicatie van de gebruiksoppervlakte. De Meetinstructie sluit verschillen in meetuitkomsten niet volledig uit, door bijvoorbeeld interpretatieverschillen, afrondingen of beperkingen bij het uitvoeren van de meting.
Interesse?
Heb je interesse in deze woning of wil je een bezichtiging inplannen? Wij helpen je graag."*" geeft vereiste velden aan
Video
Plattegrond

















