Eise Eisingastrjitte 12 – Dronryp
Kenmerken
Status
Vraagprijs
Oplevering
Energielabel
Bouwjaar
Inhoud
Woonoppervlakte
Aantal kamers
Aantal slaapkamers
Aantal badkamers
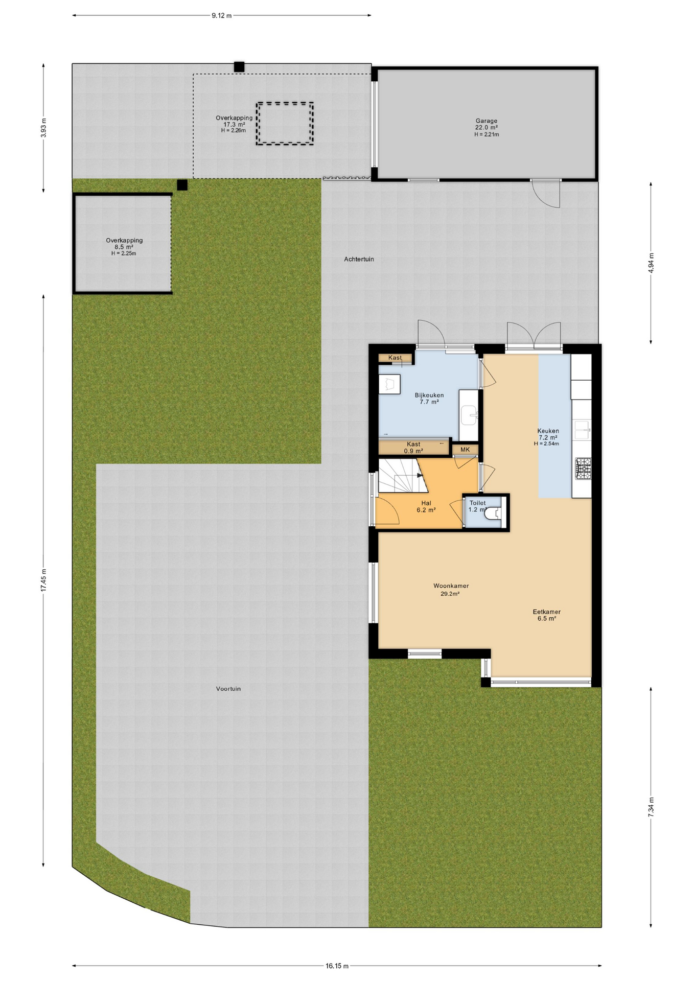
Perceeloppervlakte
Buitenruimte
Ligging tuin
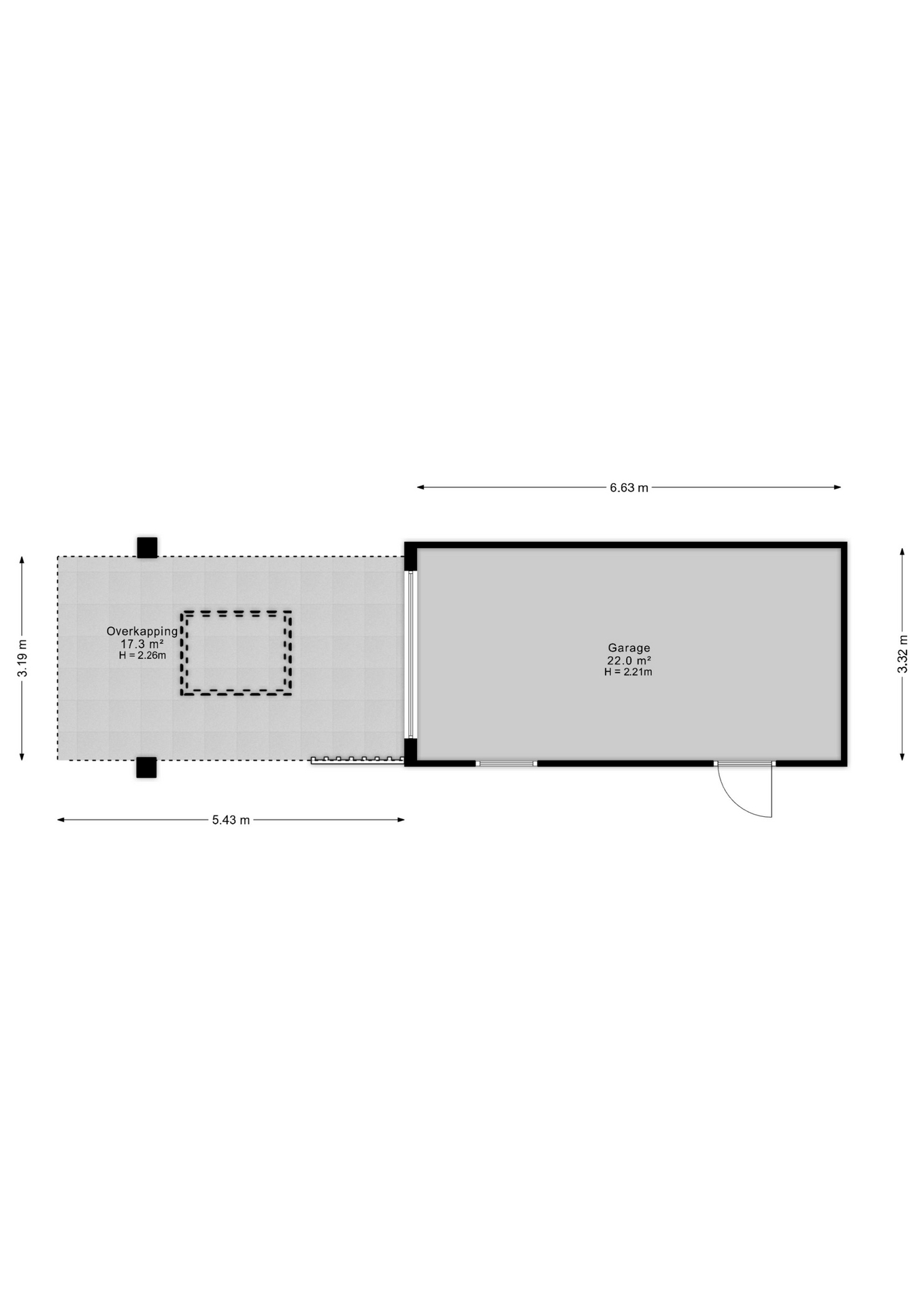
Oppervlakte
Garage
Omschrijving
Op zoek naar een instapklare en energiezuinige woning waar comfort, privacy en een fijne woonomgeving samenkomen? Dan is deze prachtige 2-onder-1-kapwoning aan de Eise Eisingastrjitte 12 absoluut jouw bezichtiging waard! Met energielabel A, volledig nageïsoleerd, 104 m² woonoppervlak, drie slaapkamers, twee opritten én een vrijstaande garage met carport geniet je hier van optimaal woongenot in het hart van Dronryp.
BEGANE GROND
De strak aangelegde voortuin met royale oprit biedt ruimte aan zeker drie auto's. Via de voordeur kom je in een ruime, lichte hal met trapopgang, toilet en toegang tot de woonkamer. Aan de tuinzijde bevindt zich de open keuken, voorzien van openslaande deuren naar het terras, ideaal om binnen en buiten moeiteloos met elkaar te verbinden. Aansluitend vind je de praktische bijkeuken met witgoedaansluiting, extra keukenblok en een eigen achterdeur.
De royale woonkamer (meer dan 30 m²) heeft een prettige lichtinval en biedt een vrij uitzicht richting de straat en het groen in de omgeving. Een fijne plek om te ontspannen!
EERSTE VERDIEPING
De overloop leidt naar drie slaapkamers en de nette badkamer met ligbad, inloopdouche, tweede toilet en dubbele wastafel. Via een luik is de bergvliering bereikbaar, perfect voor extra opslag.
GARAGE & TUIN
Aan de zijkant van de woning ligt een tweede oprit die leidt naar de vrijstaande garage met carport. De garage is royaal (ca. 6.63 x 3.32 m) en voorzien van een elektrische sectionaaldeur, ideaal voor hobby’s, opslag of het stallen van je auto.
De tuin ligt rondom de woning, is privacy-rijk en met zor
Op zoek naar een instapklare en energiezuinige woning waar comfort, privacy en een fijne woonomgeving samenkomen? Dan is deze prachtige 2-onder-1-kapwoning aan de Eise Eisingastrjitte 12 absoluut jouw bezichtiging waard! Met energielabel A, volled
Op zoek naar een instapklare en energiezuinige woning waar comfort, privacy en een fijne woonomgeving samenkomen? Dan is deze prachtige 2-onder-1-kapwoning aan de Eise Eisingastrjitte 12 absoluut jouw bezichtiging waard! Met energielabel A, volledig nageïsoleerd, 104 m² woonoppervlak, drie slaapkamers, twee opritten én een vrijstaande garage met carport geniet je hier van optimaal woongenot in het hart van Dronryp.
BEGANE GROND
De strak aangelegde voortuin met royale oprit biedt ruimte aan zeker drie auto's. Via de voordeur kom je in een ruime, lichte hal met trapopgang, toilet en toegang tot de woonkamer. Aan de tuinzijde bevindt zich de open keuken, voorzien van openslaande deuren naar het terras, ideaal om binnen en buiten moeiteloos met elkaar te verbinden. Aansluitend vind je de praktische bijkeuken met witgoedaansluiting, extra keukenblok en een eigen achterdeur.
De royale woonkamer (meer dan 30 m²) heeft een prettige lichtinval en biedt een vrij uitzicht richting de straat en het groen in de omgeving. Een fijne plek om te ontspannen!
EERSTE VERDIEPING
De overloop leidt naar drie slaapkamers en de nette badkamer met ligbad, inloopdouche, tweede toilet en dubbele wastafel. Via een luik is de bergvliering bereikbaar, perfect voor extra opslag.
GARAGE & TUIN
Aan de zijkant van de woning ligt een tweede oprit die leidt naar de vrijstaande garage met carport. De garage is royaal (ca. 6.63 x 3.32 m) en voorzien van een elektrische sectionaaldeur, ideaal voor hobby’s, opslag of het stallen van je auto.
De tuin ligt rondom de woning, is privacy-rijk en met zorg aangelegd. Een mooi gazon, verschillende zithoekjes, nette bestrating en een knusse overkapping maken het tot een heerlijke plek om van het buitenleven te genieten.
OMGEVING
Dronryp is een vriendelijk en levendig dorp met een sterk gemeenschapsgevoel en uitstekende voorzieningen. Op korte afstand vind je een supermarkt, basisscholen, sportverenigingen, een treinstation én horecagelegenheden. Vanuit het dorp ben je binnen circa 10 minuten in Leeuwarden en ook Franeker ligt binnen handbereik. Daarnaast woon je hier vlak bij prachtige wandel- en fietsgebieden, de Dokkumer Ee en het Friese platteland, volop rust én gemak in één!
BIJZONDERHEDEN
+ 104 m2 woonoppervlak;
+ 3 slaapkamers;
+ Energielabel A;
+ Volledig geïsoleerd;
+ Ruim perceel met veel mogelijkheden;
+ Vrijstaande garage met carport;
+ Gunstige ligging;
+ Wordt verkocht met een 'niet-zelfbewoningsclausule'.
Disclaimer
Deze informatie is door ons met de nodige zorgvuldigheid samengesteld. Onzerzijds wordt echter geen enkele aansprakelijkheid aanvaard voor enige onvolledigheid, onjuistheid of anderszins, dan wel de gevolgen daarvan. Alle opgegeven maten en oppervlakten zijn indicatief.
Toelichtingsclausule NEN2580
De Meetinstructie is gebaseerd op de NEN2580. De Meetinstructie is bedoeld om een meer eenduidige manier van meten toe te passen voor het geven van een indicatie van de gebruiksoppervlakte. De Meetinstructie sluit verschillen in meetuitkomsten niet volledig uit, door bijvoorbeeld interpretatieverschillen, afrondingen of beperkingen bij het uitvoeren van de meting.
Interesse?
Heb je interesse in deze woning of wil je een bezichtiging inplannen? Wij helpen je graag."*" geeft vereiste velden aan
Video
Plattegrond



















