Dotingastate 115 – Leeuwarden
Kenmerken
Status
Vraagprijs
Oplevering
Energielabel
Bouwjaar
Inhoud
Woonoppervlakte
Aantal kamers
Aantal slaapkamers
Aantal badkamers
Perceeloppervlakte
Buitenruimte
Ligging tuin
Oppervlakte
Garage
Omschrijving
OPEN HUIS OP VRIJDAG 21 NOVEMBER 2025 VAN 16:00 - 17:00 UUR, AANMELDEN NIET VEPRLICHT.
Welkom bij deze ruime en sfeervolle 2-onder-1-kapwoning aan een van de mooiere plekjes van de geliefde wijk Camminghaburen! Met een woonoppervlak van 123 m², vier slaapkamers en energielabel C biedt deze woning volop ruimte en rust. De ligging is écht bijzonder: heerlijk beschut, veel groen en een prachtig uitzicht over het parkje met speeltoestellen voor de woning. Hier woon je in rust en privacy, maar toch dichtbij alle voorzieningen die de wijk rijk is. Wel vraagt deze woning nog het nodige onderhoud en opknapwerk nodig voordat hij helemaal tot zijn recht komt.
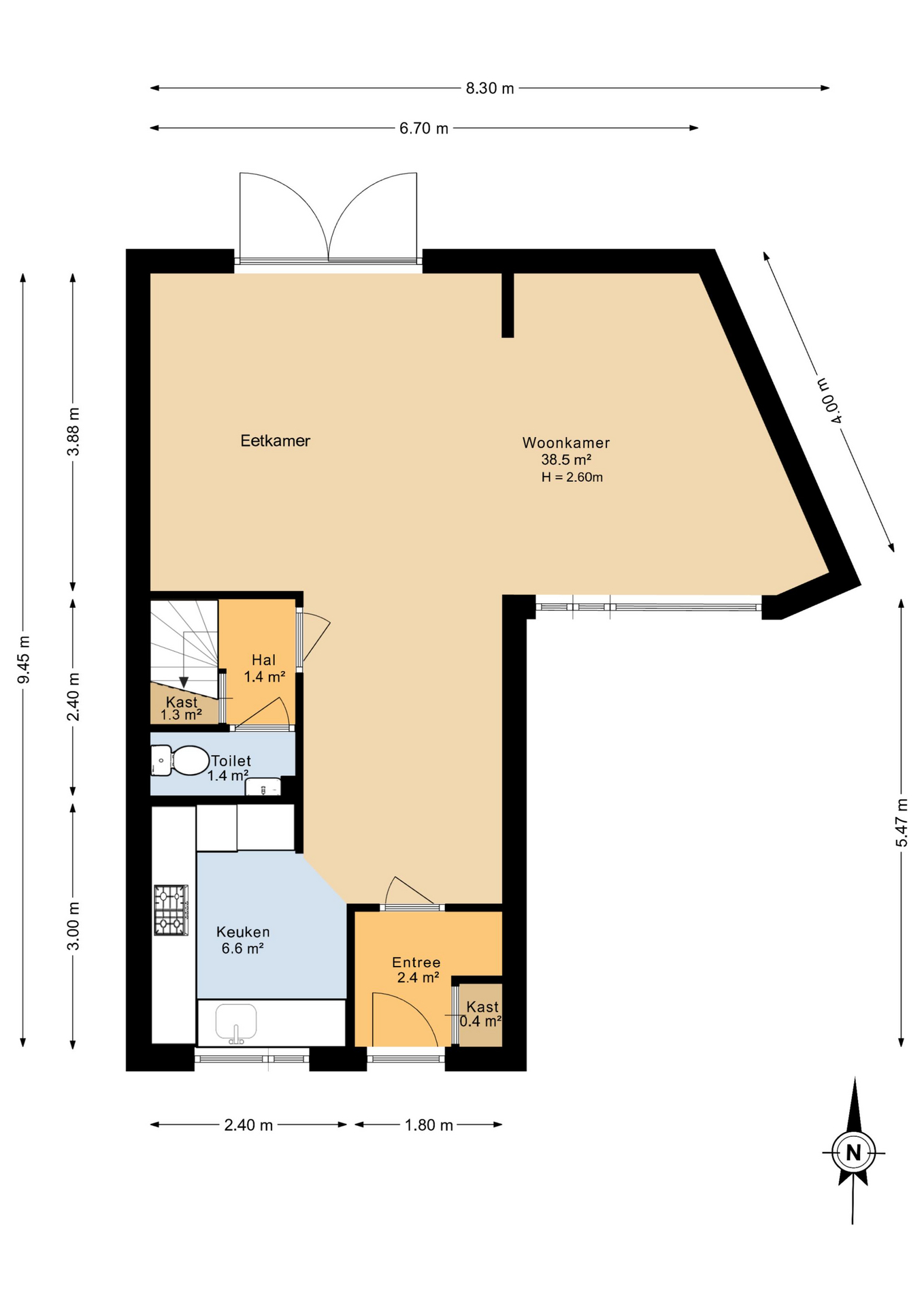
BEGANE GROND
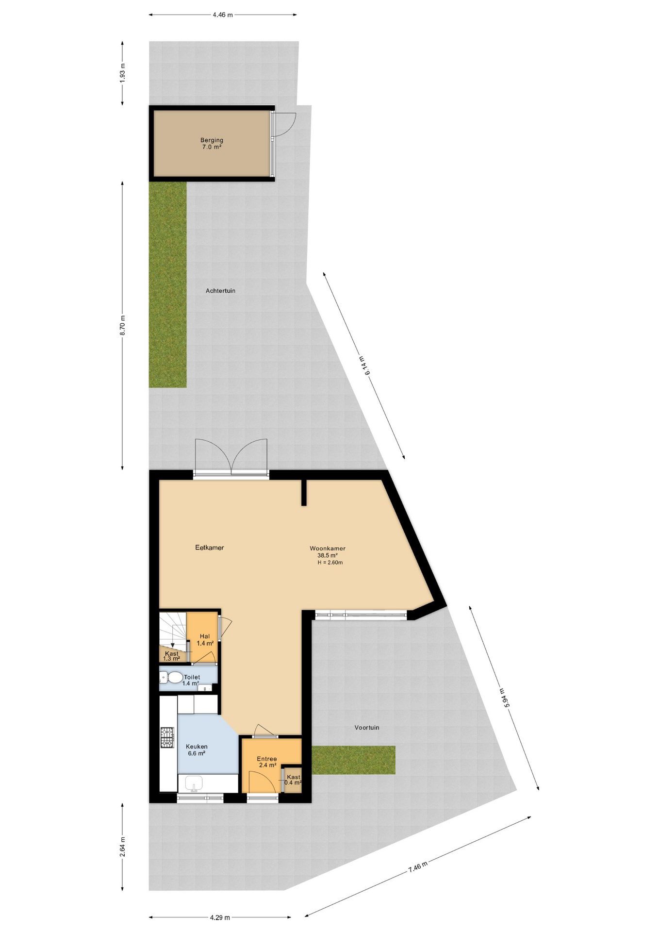
Via de voortuin op het zuiden bereik je de entree met tochtportaal. Vanuit hier stap je de lichte woonkamer binnen met direct links de halfopen keuken, voorzien van de nodige gemakken. Vanuit de woonkamer loop je door naar de hal waar het toilet en de trap naar de eerste verdieping te vinden zijn. Het woon- en eetgedeelte is heerlijk ruim opgezet met een grote raampartij richting de voortuin en openslaande deuren naar de achtertuin, waardoor binnen en buiten fijn in elkaar overlopen.
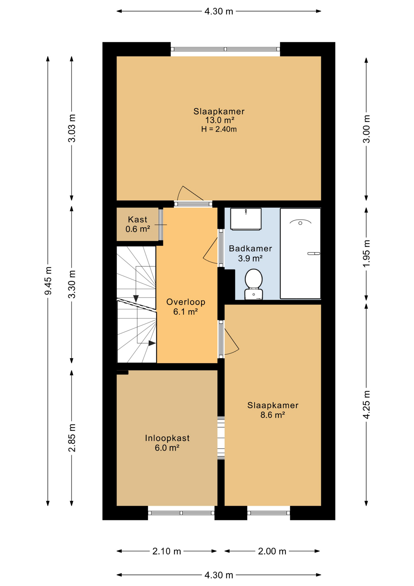
EERSTE VERDIEPING
De overloop geeft toegang tot twee slaapkamers, waarvan de slaapkamer aan de voorzijde beschikt over een royale inloopkast (voorheen de derde slaapkamer op deze verdieping). De badkamer is uitgerust met een tweede toilet, wastafel en een ligbad met douche. Via de vaste trap bereik je de tweede verdieping.
TWEEDE VERDIEPING
De tweede verdieping biedt een ruime overloop met aansluitingen voor het witgoed en de CV-instal
OPEN HUIS OP VRIJDAG 21 NOVEMBER 2025 VAN 16:00 - 17:00 UUR, AANMELDEN NIET VEPRLICHT.
Welkom bij deze ruime en sfeervolle 2-onder-1-kapwoning aan een van de mooiere plekjes van de geliefde wijk Camminghaburen! Met een woonoppervlak van 123
OPEN HUIS OP VRIJDAG 21 NOVEMBER 2025 VAN 16:00 - 17:00 UUR, AANMELDEN NIET VEPRLICHT.
Welkom bij deze ruime en sfeervolle 2-onder-1-kapwoning aan een van de mooiere plekjes van de geliefde wijk Camminghaburen! Met een woonoppervlak van 123 m², vier slaapkamers en energielabel C biedt deze woning volop ruimte en rust. De ligging is écht bijzonder: heerlijk beschut, veel groen en een prachtig uitzicht over het parkje met speeltoestellen voor de woning. Hier woon je in rust en privacy, maar toch dichtbij alle voorzieningen die de wijk rijk is. Wel vraagt deze woning nog het nodige onderhoud en opknapwerk nodig voordat hij helemaal tot zijn recht komt.
BEGANE GROND
Via de voortuin op het zuiden bereik je de entree met tochtportaal. Vanuit hier stap je de lichte woonkamer binnen met direct links de halfopen keuken, voorzien van de nodige gemakken. Vanuit de woonkamer loop je door naar de hal waar het toilet en de trap naar de eerste verdieping te vinden zijn. Het woon- en eetgedeelte is heerlijk ruim opgezet met een grote raampartij richting de voortuin en openslaande deuren naar de achtertuin, waardoor binnen en buiten fijn in elkaar overlopen.
EERSTE VERDIEPING
De overloop geeft toegang tot twee slaapkamers, waarvan de slaapkamer aan de voorzijde beschikt over een royale inloopkast (voorheen de derde slaapkamer op deze verdieping). De badkamer is uitgerust met een tweede toilet, wastafel en een ligbad met douche. Via de vaste trap bereik je de tweede verdieping.
TWEEDE VERDIEPING
De tweede verdieping biedt een ruime overloop met aansluitingen voor het witgoed en de CV-installatie (2013, huur). Daarnaast vind je hier nog twee ruime slaapkamers, één aan de voorzijde en één aan de achterzijde.
TUIN EN BERGING
De achtertuin, gesitueerd op het noorden, loopt iets schuin af en beschikt over twee terrassen, zodat je altijd wel een plekje in de zon kunt vinden. Achterin de tuin staat een vrijstaande stenen berging en er is een praktische achterom.
OMGEVING
Deze woning ligt op een fantastische locatie in Camminghaburen: groen, beschut en met uitzicht op een parkje, perfect voor gezinnen of mensen die van rust houden. Op korte afstand vind je diverse voorzieningen zoals supermarkten, scholen, sportclubs en openbaar vervoer (station Camminghaburen op loopafstand). Bovendien ben je binnen 10 minuten in de binnenstad van Leeuwarden en zijn de uitvalswegen richting Drachten en Groningen uitstekend bereikbaar.
BIJZONDERHEDEN
+ 123 m2 woonoppervlak;
+ 4 slaapkamers;
+ Energielabel C;
+ Cv-installatie 2013 (huur);
+ Heeft opknapwerk nodig;
+ Beschutte groene ligging.
Disclaimer
Deze informatie is door ons met de nodige zorgvuldigheid samengesteld. Onzerzijds wordt echter geen enkele aansprakelijkheid aanvaard voor enige onvolledigheid, onjuistheid of anderszins, dan wel de gevolgen daarvan. Alle opgegeven maten en oppervlakten zijn indicatief.
Toelichtingsclausule NEN2580
De Meetinstructie is gebaseerd op de NEN2580. De Meetinstructie is bedoeld om een meer eenduidige manier van meten toe te passen voor het geven van een indicatie van de gebruiksoppervlakte. De Meetinstructie sluit verschillen in meetuitkomsten niet volledig uit, door bijvoorbeeld interpretatieverschillen, afrondingen of beperkingen bij het uitvoeren van de meting.
Interesse?
Heb je interesse in deze woning of wil je een bezichtiging inplannen? Wij helpen je graag."*" geeft vereiste velden aan
Video
Plattegrond












