de Ruyterweg 95 – Leeuwarden
Kenmerken
Status
Vraagprijs
Oplevering
Energielabel
Bouwjaar
Inhoud
Woonoppervlakte
Aantal kamers
Aantal slaapkamers
Aantal badkamers
Perceeloppervlakte
Buitenruimte
Ligging tuin
Oppervlakte
Garage
Omschrijving
Welkom bij deze karaktervolle twee-onder-een-kapwoning aan de Ruyterweg 95 in Leeuwarden, gelegen op een royaal perceel van 310 m² eigen grond!
Deze charmante woning combineert sfeer en comfort met veel ruimte en mogelijkheden. Zo beschikt de woning over een zonnige achtertuin van maar liefst 180 m² op het westen, bereikbaar via een achterom. Authentieke details, een nette afwerking én de potentie van de tweede verdieping maken dit huis tot een ideale plek om je woondromen waar te maken.
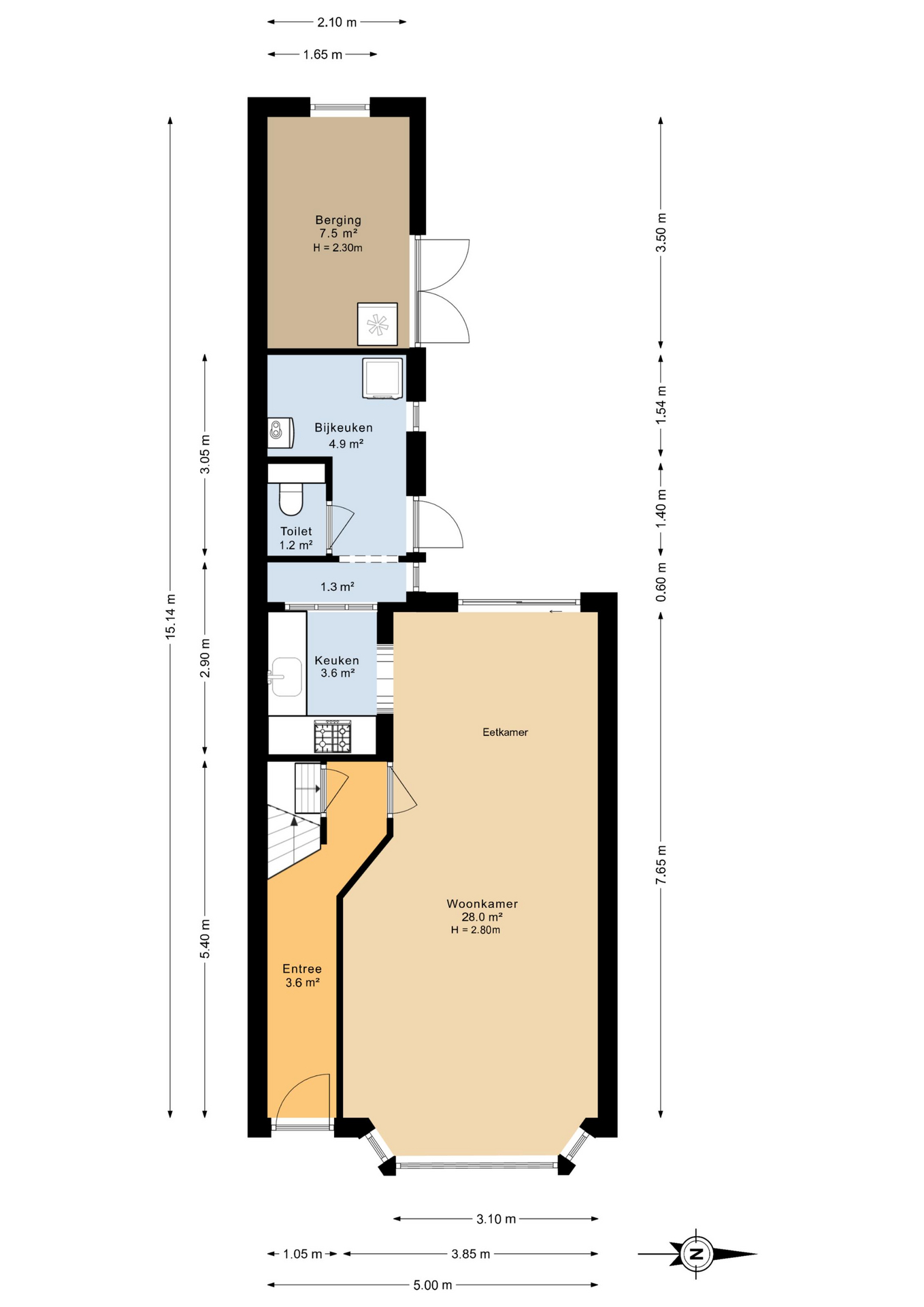
BEGANE GROND
De entreehal verwelkomt je met een vaste trap naar boven, een handige trapkast en toegang tot een keldertje voor extra bergruimte. Vanuit de hal stap je de lichte woonkamer binnen, met een sfeervolle erker die zorgt voor veel daglicht en een warme uitstraling.
Aansluitend vind je de moderne open keuken (2015) met inbouwapparatuur en voorbereid op inductiekoken. De keuken loopt door in de bijkeuken met separaat toilet, cv-installatie en witgoedaansluitingen. Via de schuifpui bereik je de diepe en onderhoudsvriendelijke achtertuin.
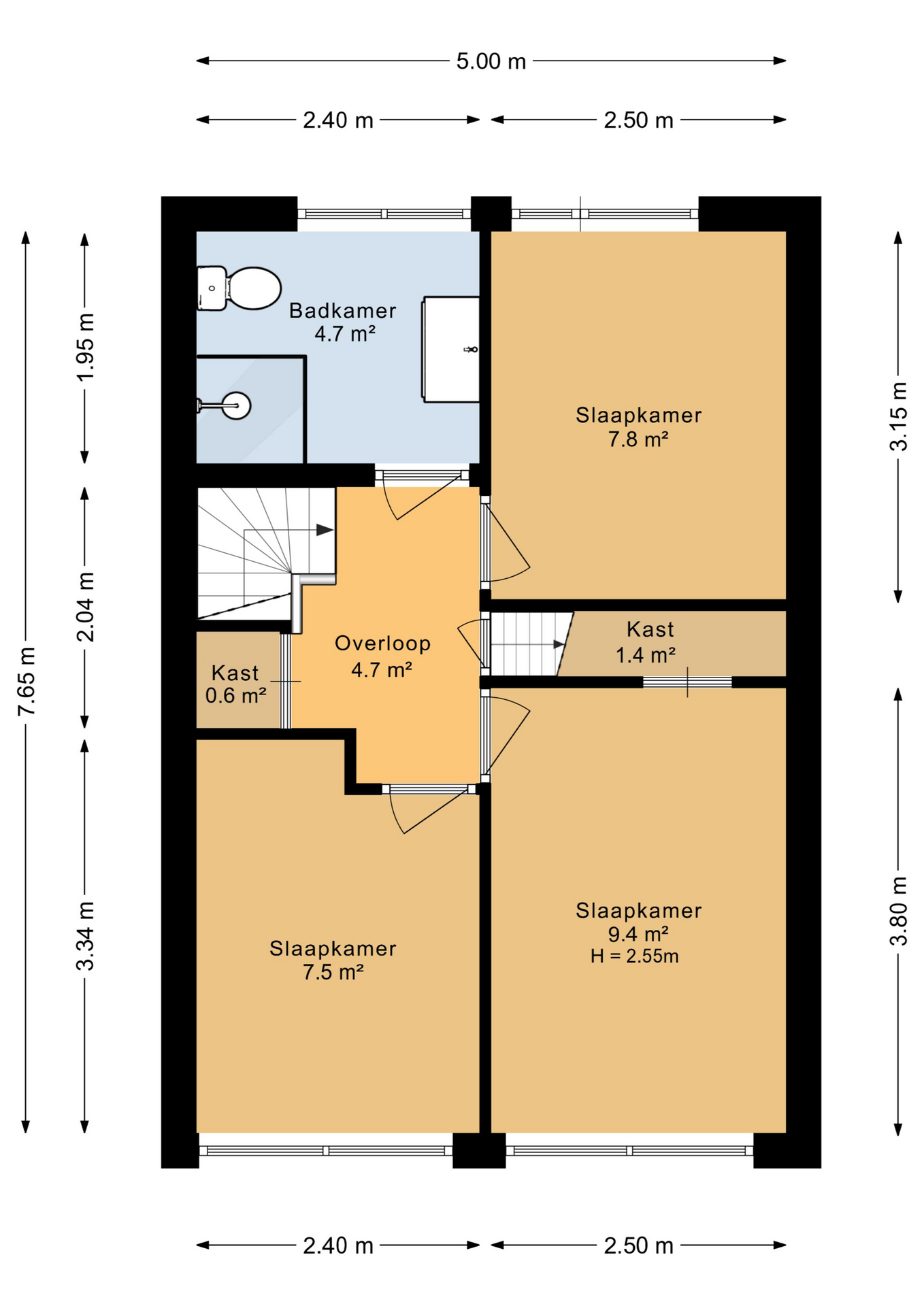
EERSTE VERDIEPING
De overloop geeft toegang tot de badkamer (2010), voorzien van douche, wastafelmeubel en tweede toilet (met sanibroyeur). Verder zijn er drie comfortabele slaapkamers aanwezig.
TWEEDE VERDIEPING
De ruime zolderverdieping (ca. 24 m²) biedt volop mogelijkheden. Richt deze in als master bedroom, kantoor of creatieve studio, de ruimte en bergruimte zijn er, de invulling bepaal je zelf.
TUIN
De achtertuin is een echt hoogtepunt: met een diepte van circa 23 meter en ruim 8 meter breedte is er altijd plek om te genieten
Welkom bij deze karaktervolle twee-onder-een-kapwoning aan de Ruyterweg 95 in Leeuwarden, gelegen op een royaal perceel van 310 m² eigen grond!
Deze charmante woning combineert sfeer en comfort met veel ruimte en mogelijkheden. Zo beschikt
Welkom bij deze karaktervolle twee-onder-een-kapwoning aan de Ruyterweg 95 in Leeuwarden, gelegen op een royaal perceel van 310 m² eigen grond!
Deze charmante woning combineert sfeer en comfort met veel ruimte en mogelijkheden. Zo beschikt de woning over een zonnige achtertuin van maar liefst 180 m² op het westen, bereikbaar via een achterom. Authentieke details, een nette afwerking én de potentie van de tweede verdieping maken dit huis tot een ideale plek om je woondromen waar te maken.
BEGANE GROND
De entreehal verwelkomt je met een vaste trap naar boven, een handige trapkast en toegang tot een keldertje voor extra bergruimte. Vanuit de hal stap je de lichte woonkamer binnen, met een sfeervolle erker die zorgt voor veel daglicht en een warme uitstraling.
Aansluitend vind je de moderne open keuken (2015) met inbouwapparatuur en voorbereid op inductiekoken. De keuken loopt door in de bijkeuken met separaat toilet, cv-installatie en witgoedaansluitingen. Via de schuifpui bereik je de diepe en onderhoudsvriendelijke achtertuin.
EERSTE VERDIEPING
De overloop geeft toegang tot de badkamer (2010), voorzien van douche, wastafelmeubel en tweede toilet (met sanibroyeur). Verder zijn er drie comfortabele slaapkamers aanwezig.
TWEEDE VERDIEPING
De ruime zolderverdieping (ca. 24 m²) biedt volop mogelijkheden. Richt deze in als master bedroom, kantoor of creatieve studio, de ruimte en bergruimte zijn er, de invulling bepaal je zelf.
TUIN
De achtertuin is een echt hoogtepunt: met een diepte van circa 23 meter en ruim 8 meter breedte is er altijd plek om te genieten van de zon. De tuin beschikt over een vrijstaande berging met elektra en is gemakkelijk bereikbaar via de achterom.
OMGEVING
De Ruyterweg ligt in een prettige, centrale woonomgeving. Op loop- en fietsafstand vind je het Cambuurplein met supermarkten, speciaalzaken en sportvoorzieningen. Ook het bruisende centrum van Leeuwarden is binnen enkele minuten bereikbaar. De straat zelf kenmerkt zich door rust, ruimte en de charme van karakteristieke jaren ’30 woningen met een gemoedelijke sfeer.
BIJZONDERHEDEN
+ 310m2 eigen grond;
+ 112m2 woonoppervlak;
+ Dak, bodem en spouw- isolatie;
+ Centrale ligging;
+ Energielabel C;
+ Zonnige tuin op het westen;
+ 3 slaapkamers met grote tweede verdieping;
+ 112 m2 woonoppervlak.
Disclaimer
Deze informatie is door ons met de nodige zorgvuldigheid samengesteld. Onzerzijds wordt echter geen enkele aansprakelijkheid aanvaard voor enige onvolledigheid, onjuistheid of anderszins, dan wel de gevolgen daarvan. Alle opgegeven maten en oppervlakten zijn indicatief.
Toelichtingsclausule NEN2580
De Meetinstructie is gebaseerd op de NEN2580. De Meetinstructie is bedoeld om een meer eenduidige manier van meten toe te passen voor het geven van een indicatie van de gebruiksoppervlakte. De Meetinstructie sluit verschillen in meetuitkomsten niet volledig uit, door bijvoorbeeld interpretatieverschillen, afrondingen of beperkingen bij het uitvoeren van de meting.
Interesse?
Heb je interesse in deze woning of wil je een bezichtiging inplannen? Wij helpen je graag."*" geeft vereiste velden aan
Video
Plattegrond













