Burgemeester van Panhuyslaan 41 – Burgum
Kenmerken
Status
Vraagprijs
Oplevering
Energielabel
Bouwjaar
Inhoud
Woonoppervlakte
Aantal kamers
Aantal slaapkamers
Aantal badkamers
Perceeloppervlakte
Buitenruimte
Ligging tuin
Oppervlakte
Garage
Omschrijving
Deze goed onderhouden tussenwoning in Burgum biedt volop woonplezier en comfort met drie slaapkamers, een ruime achtertuin op het westen en een open keuken. Kortom, de perfecte plek voor starters en jonge gezinnen.
BEGANE GROND
Bij binnenkomst in de ruime hal zijn er twee doorgangen: één naar het toilet met fonteintje en één naar het royale woon- en eetgedeelte van circa 38 m². De lichte woonkamer met een elektrische haard staat in open verbinding met de moderne keuken (2017), die is uitgerust met een koelkast (2022), 4-pits gasfornuis, oven en vaatwasser.
Aangrenzend bevindt zich de bijkeuken aan de achterzijde van de woning. Hier is plaats voor een vriezer en een was-droogcombinatie en er is volop bergruimte in de aanwezige kasten. Vanuit de keuken bieden openslaande deuren direct toegang tot de achtertuin.
De westelijk gelegen achtertuin biedt een comfortabele zithoek en een verzorgd stukje groen. Achterin de tuin is een praktische opbergruimte gerealiseerd. De tuin is tevens bereikbaar via een achterom, waar ook parkeergelegenheid voor de auto aanwezig is.
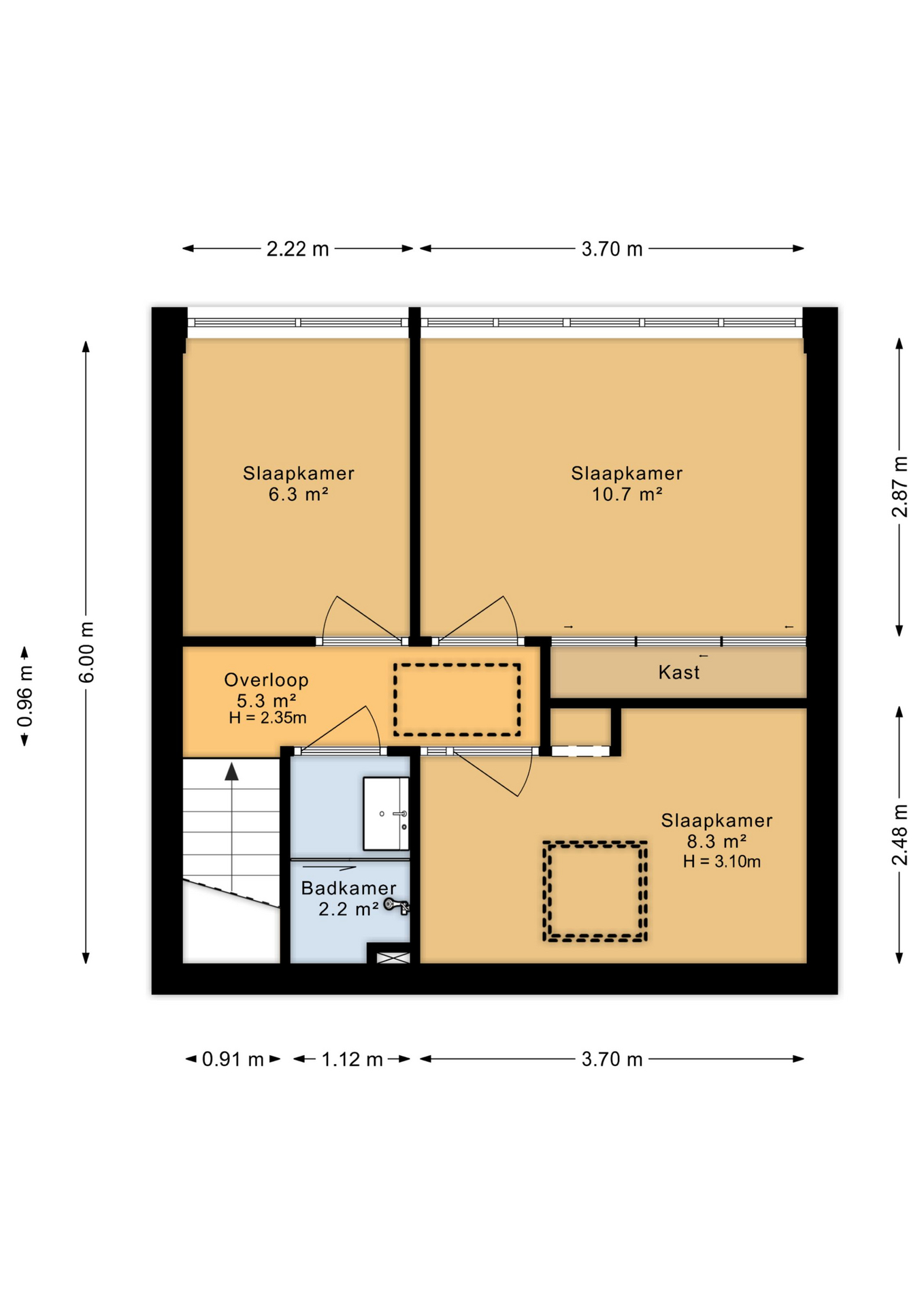
EERSTE VERDIEPING
Op de eerste verdieping bevinden zich drie slaapkamers, waarvan twee ruim van opzet zijn en één wat compacter is. Aan het begin van de verdieping ligt de badkamer, uitgerust met een grote wastafel en een inloopdouche die afsluitbaar is met een schuifdeur. Tevens is deze verdieping voorzien van een vliering voor extra opbergruimte.
LOCATIE
Burgum is een levendig dorp in Friesland met zo’n 10.000 inwoners en een centrale ligging tussen Leeuwarden en Drachten. Het dorp biedt uitgebreide
Deze goed onderhouden tussenwoning in Burgum biedt volop woonplezier en comfort met drie slaapkamers, een ruime achtertuin op het westen en een open keuken. Kortom, de perfecte plek voor starters en jonge gezinnen.
BEGANE GROND
Bij b
Deze goed onderhouden tussenwoning in Burgum biedt volop woonplezier en comfort met drie slaapkamers, een ruime achtertuin op het westen en een open keuken. Kortom, de perfecte plek voor starters en jonge gezinnen.
BEGANE GROND
Bij binnenkomst in de ruime hal zijn er twee doorgangen: één naar het toilet met fonteintje en één naar het royale woon- en eetgedeelte van circa 38 m². De lichte woonkamer met een elektrische haard staat in open verbinding met de moderne keuken (2017), die is uitgerust met een koelkast (2022), 4-pits gasfornuis, oven en vaatwasser.
Aangrenzend bevindt zich de bijkeuken aan de achterzijde van de woning. Hier is plaats voor een vriezer en een was-droogcombinatie en er is volop bergruimte in de aanwezige kasten. Vanuit de keuken bieden openslaande deuren direct toegang tot de achtertuin.
De westelijk gelegen achtertuin biedt een comfortabele zithoek en een verzorgd stukje groen. Achterin de tuin is een praktische opbergruimte gerealiseerd. De tuin is tevens bereikbaar via een achterom, waar ook parkeergelegenheid voor de auto aanwezig is.
EERSTE VERDIEPING
Op de eerste verdieping bevinden zich drie slaapkamers, waarvan twee ruim van opzet zijn en één wat compacter is. Aan het begin van de verdieping ligt de badkamer, uitgerust met een grote wastafel en een inloopdouche die afsluitbaar is met een schuifdeur. Tevens is deze verdieping voorzien van een vliering voor extra opbergruimte.
LOCATIE
Burgum is een levendig dorp in Friesland met zo’n 10.000 inwoners en een centrale ligging tussen Leeuwarden en Drachten. Het dorp biedt uitgebreide voorzieningen zoals winkels, scholen en sportverenigingen, en is goed bereikbaar met zowel auto als openbaar vervoer. Voor natuurliefhebbers ligt het Bergumermeer en Nationaal Park De Alde Feanen om de hoek. Met zijn rijke geschiedenis, Friese karakter en sterke gemeenschapszin is Burgum een ideale plek voor wie rustig wil wonen met alle comfort dichtbij.
BIJZONDERHEDEN
+ Energielabel C;
+ 92 m2 woonoppervlak;
+ Elektrische haard;
+ Drie slaapkamers;
+ Ruim woon- en eetgedeelte;
+ Verzorgde tuin op het westen.
Disclaimer
Deze informatie is door ons met de nodige zorgvuldigheid samengesteld. Onzerzijds wordt echter geen enkele aansprakelijkheid aanvaard voor enige onvolledigheid, onjuistheid of anderszins, dan wel de gevolgen daarvan. Alle opgegeven maten en oppervlakten zijn indicatief.
Toelichtingsclausule NEN2580
De Meetinstructie is gebaseerd op de NEN2580. De Meetinstructie is bedoeld om een meer eenduidige manier van meten toe te passen voor het geven van een indicatie van de gebruiksoppervlakte. De Meetinstructie sluit verschillen in meetuitkomsten niet volledig uit, door bijvoorbeeld interpretatieverschillen, afrondingen of beperkingen bij het uitvoeren van de meting.
Interesse?
Heb je interesse in deze woning of wil je een bezichtiging inplannen? Wij helpen je graag."*" geeft vereiste velden aan
Video
Plattegrond

















