Bleeklaan 106 – Leeuwarden
Kenmerken
Status
Vraagprijs
Oplevering
Energielabel
Bouwjaar
Inhoud
Woonoppervlakte
Aantal kamers
Aantal slaapkamers
Aantal badkamers
Perceeloppervlakte
Buitenruimte
Ligging tuin
Oppervlakte
Garage
Omschrijving
Welkom aan de Bleeklaan 106, een huis met karakter én toekomst! Laat je verrassen door deze charmante en keurig onderhouden tussenwoning in het hart van Leeuwarden. De woning is volledig voorzien van nieuwe kunststof kozijnen, heeft een zonnige tuin op het zuidwesten met achterom, en biedt meer ruimte dan je op het eerste gezicht zou denken. Authentieke details geven het huis een warme uitstraling, terwijl de tweede verdieping nog volop mogelijkheden biedt. Een perfecte mix van sfeer, comfort en potentie, klaar om jouw woondromen waar te maken!
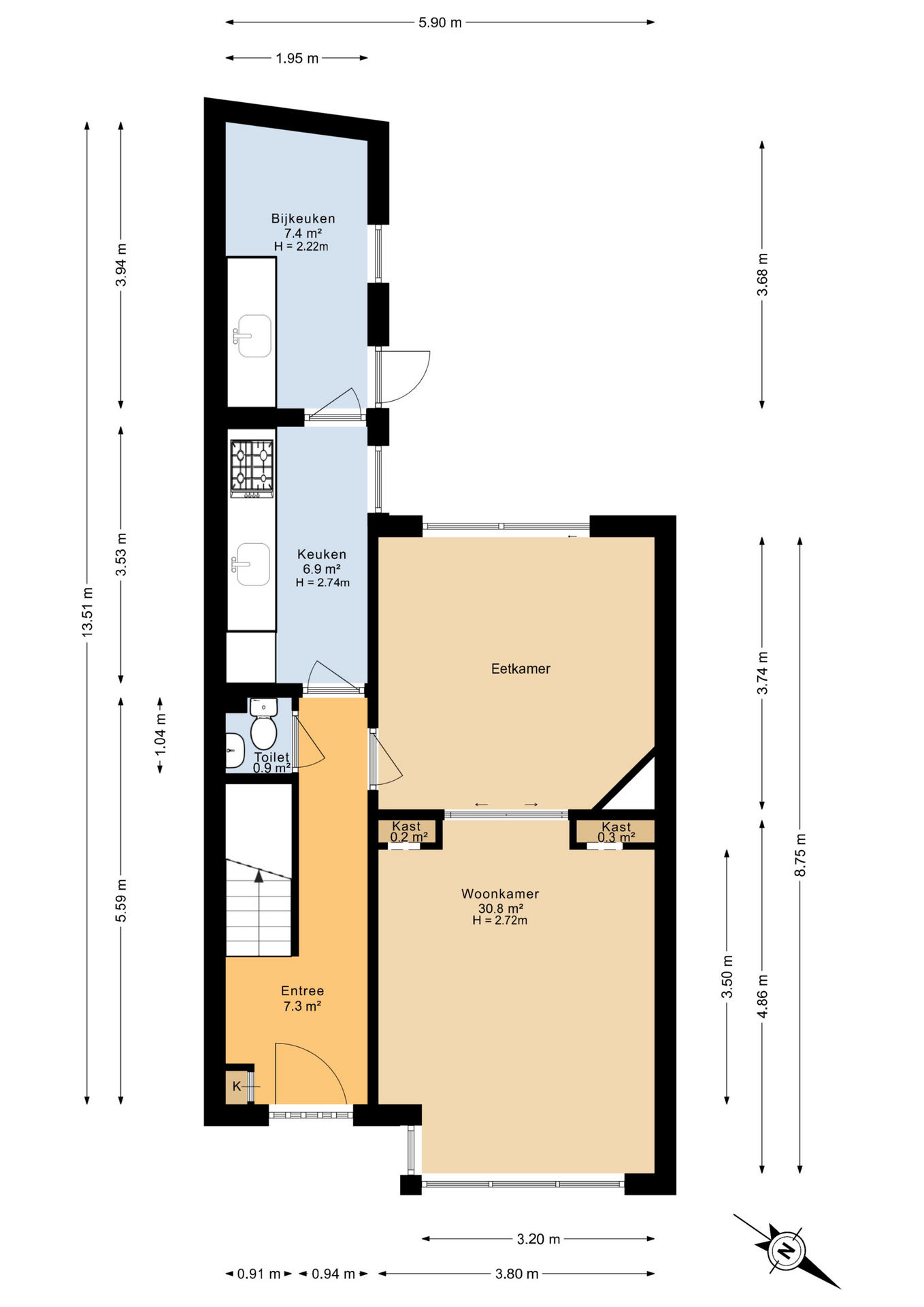
BEGANE GROND
Bij binnenkomst kom je in de ruime hal, die toegang biedt tot het toilet, de trap naar boven en de doorgangen naar zowel de keuken als het woon- en eetgedeelte. De lichte woonkamer en eetkamer zijn met stijlvolle en-suite deuren van elkaar gescheiden en vormen samen een sfeervolle leefruimte met veel lichtinval dankzij de grote ramen. De ruimte voelt direct warm en uitnodigend aan, een plek waar je je meteen thuis voelt.
De keuken is netjes onderhouden, gewrapt, en voorzien van een nieuwe afzuigkap en nieuwe vaatwasser, evenals een 4-pits gasfornuis, oven en koelkast. Achter de keuken ligt een praktische bijkeuken, ideaal voor extra bergruimte, wasapparatuur of het stallen van fietsen.
EERSTE VERDIEPING
Op de eerste verdieping vind je drie slaapkamers, waarvan twee royaal van formaat. De hoofdslaapkamer aan de voorzijde beschikt bovendien over een eigen balkon en inbouwkasten, een heerlijke plek om de dag te beginnen.
De badkamer biedt alles wat je nodig hebt, een tweede toilet, een royaal wastafelmeubel, een inloopdouche en a
Welkom aan de Bleeklaan 106, een huis met karakter én toekomst! Laat je verrassen door deze charmante en keurig onderhouden tussenwoning in het hart van Leeuwarden. De woning is volledig voorzien van nieuwe kunststof kozijnen, heeft een zonnige t
Welkom aan de Bleeklaan 106, een huis met karakter én toekomst! Laat je verrassen door deze charmante en keurig onderhouden tussenwoning in het hart van Leeuwarden. De woning is volledig voorzien van nieuwe kunststof kozijnen, heeft een zonnige tuin op het zuidwesten met achterom, en biedt meer ruimte dan je op het eerste gezicht zou denken. Authentieke details geven het huis een warme uitstraling, terwijl de tweede verdieping nog volop mogelijkheden biedt. Een perfecte mix van sfeer, comfort en potentie, klaar om jouw woondromen waar te maken!
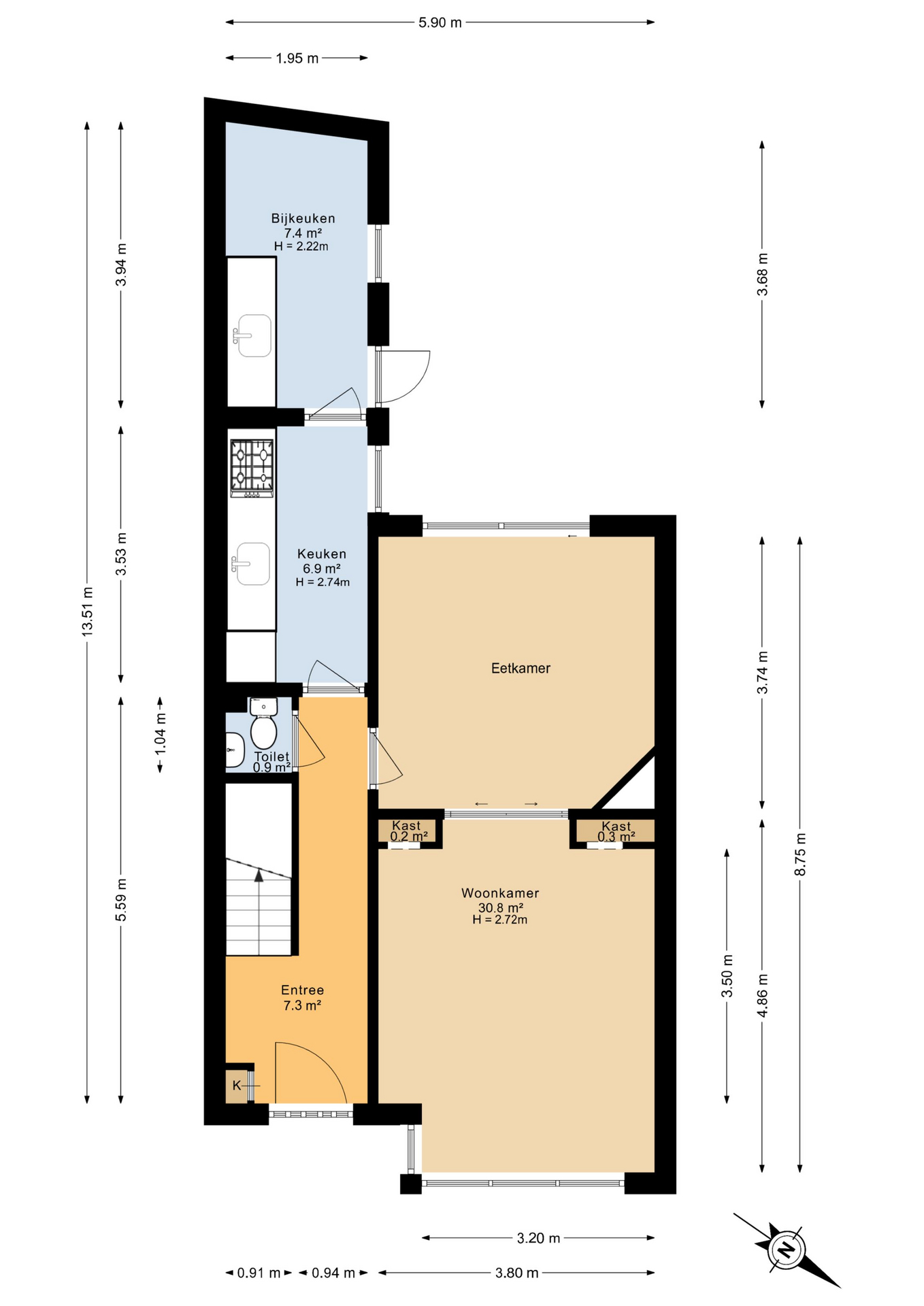
BEGANE GROND
Bij binnenkomst kom je in de ruime hal, die toegang biedt tot het toilet, de trap naar boven en de doorgangen naar zowel de keuken als het woon- en eetgedeelte. De lichte woonkamer en eetkamer zijn met stijlvolle en-suite deuren van elkaar gescheiden en vormen samen een sfeervolle leefruimte met veel lichtinval dankzij de grote ramen. De ruimte voelt direct warm en uitnodigend aan, een plek waar je je meteen thuis voelt.
De keuken is netjes onderhouden, gewrapt, en voorzien van een nieuwe afzuigkap en nieuwe vaatwasser, evenals een 4-pits gasfornuis, oven en koelkast. Achter de keuken ligt een praktische bijkeuken, ideaal voor extra bergruimte, wasapparatuur of het stallen van fietsen.
EERSTE VERDIEPING
Op de eerste verdieping vind je drie slaapkamers, waarvan twee royaal van formaat. De hoofdslaapkamer aan de voorzijde beschikt bovendien over een eigen balkon en inbouwkasten, een heerlijke plek om de dag te beginnen.
De badkamer biedt alles wat je nodig hebt, een tweede toilet, een royaal wastafelmeubel, een inloopdouche en aansluitingen voor wasmachine en droger. Dankzij de logische indeling en het prettige formaat vormt deze ruimte een prachtig startpunt om jouw droombadkamer te realiseren.
TWEEDE VERDIEPING
De tweede verdieping is een grote open ruimte met volop mogelijkheden. Richt deze verdieping in als master bedroom, kantoor, hobbyruimte of een combinatie daarvan, de keuze is aan jou. Dankzij de praktische indeling en ruime opbergmogelijkheden kun je hier echt alle kanten op.
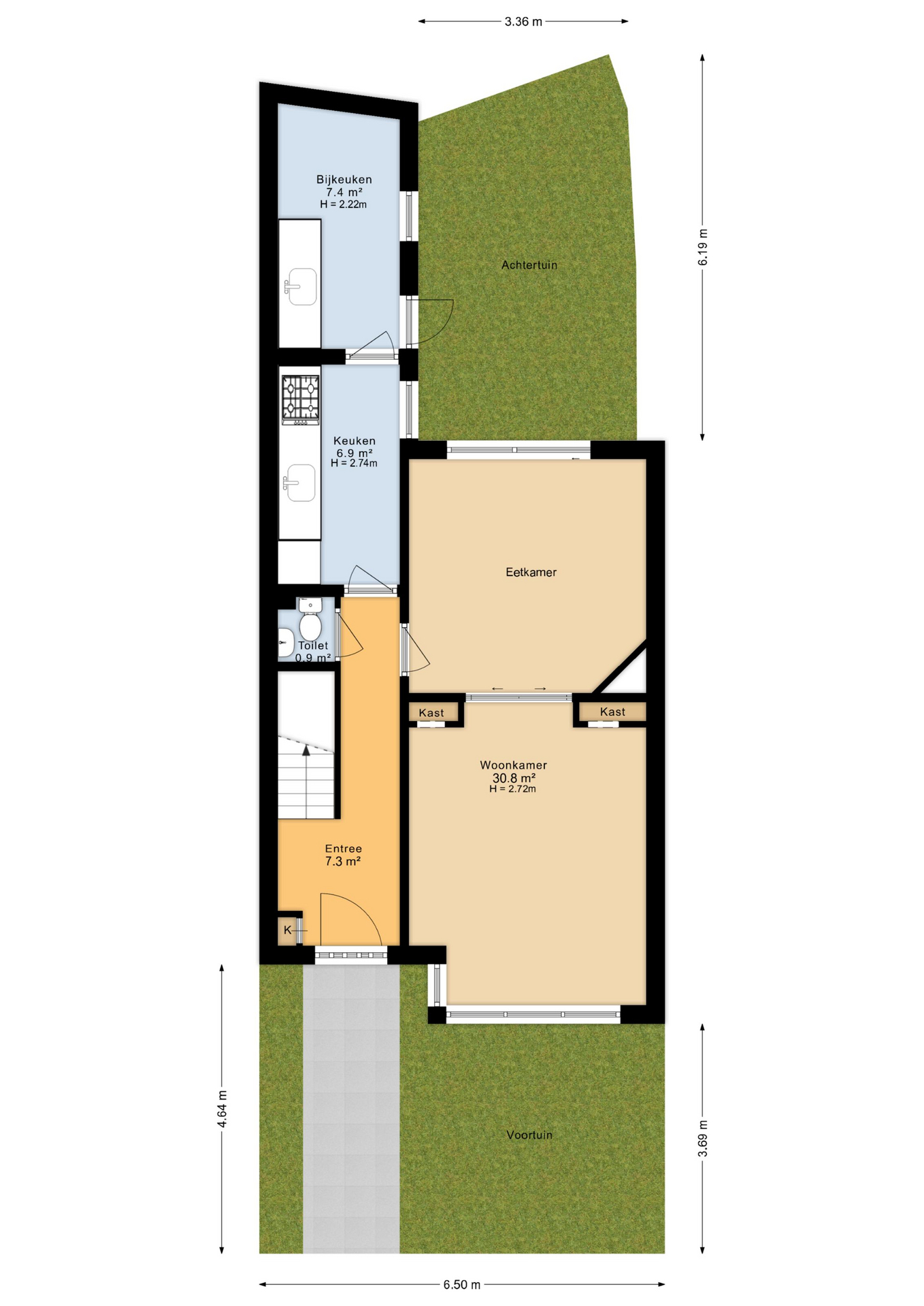
TUIN
De zonnige achtertuin op het zuidwesten is met circa 21 m² een heerlijke plek om te genieten van de zon. De tuin is verzorgd aangelegd, voorzien van groen en biedt voldoende privacy. Dankzij de achterom is de tuin ook gemakkelijk bereikbaar met bijvoorbeeld fietsen of tuinspullen.
OMGEVING
De Bleeklaan is een rustige, kindvriendelijke straat op een gewilde locatie nabij het centrum van Leeuwarden. Alle dagelijkse voorzieningen, zoals supermarkten, scholen en openbaar vervoer, zijn binnen handbereik. Voor ontspanning en recreatie liggen diverse parken en groene zones in de buurt. Bovendien zijn de A31 en A32 snel bereikbaar, waardoor je ook buiten de stad gemakkelijk op weg bent.
BIJZONDERHEDEN
+ Centrale ligging;
+ Nieuwe kunststof kozijnen;
+ Energielabel C;
+ Zonnige tuin op het zuidwesten;
+ 4 slaapkamers met grote tweede verdieping;
+ CV-ketel 2024;
+ 134 m2 woonoppervlak.
Disclaimer
Deze informatie is door ons met de nodige zorgvuldigheid samengesteld. Onzerzijds wordt echter geen enkele aansprakelijkheid aanvaard voor enige onvolledigheid, onjuistheid of anderszins, dan wel de gevolgen daarvan. Alle opgegeven maten en oppervlakten zijn indicatief.
Toelichtingsclausule NEN2580
De Meetinstructie is gebaseerd op de NEN2580. De Meetinstructie is bedoeld om een meer eenduidige manier van meten toe te passen voor het geven van een indicatie van de gebruiksoppervlakte. De Meetinstructie sluit verschillen in meetuitkomsten niet volledig uit, door bijvoorbeeld interpretatieverschillen, afrondingen of beperkingen bij het uitvoeren van de meting.
Interesse?
Heb je interesse in deze woning of wil je een bezichtiging inplannen? Wij helpen je graag."*" geeft vereiste velden aan
Video
Plattegrond











