Bildtsestraat 73 – Leeuwarden
Kenmerken
Status
Vraagprijs
Oplevering
Energielabel
Bouwjaar
Inhoud
Woonoppervlakte
Aantal kamers
Aantal slaapkamers
Aantal badkamers
Perceeloppervlakte
Buitenruimte
Ligging tuin
Oppervlakte
Garage
Omschrijving
Wonen in een charmante en ruime hoekwoning in de geliefde Vosseparkwijk van Leeuwarden is nu mogelijk aan de Bildtsestraat 73. Met een woonoppervlak van maar liefst 130 m², vier slaapkamers, energielabel C en de mogelijkheid tot levensloopbestendig wonen, biedt deze woning de perfecte combinatie van karakter en praktisch wooncomfort.
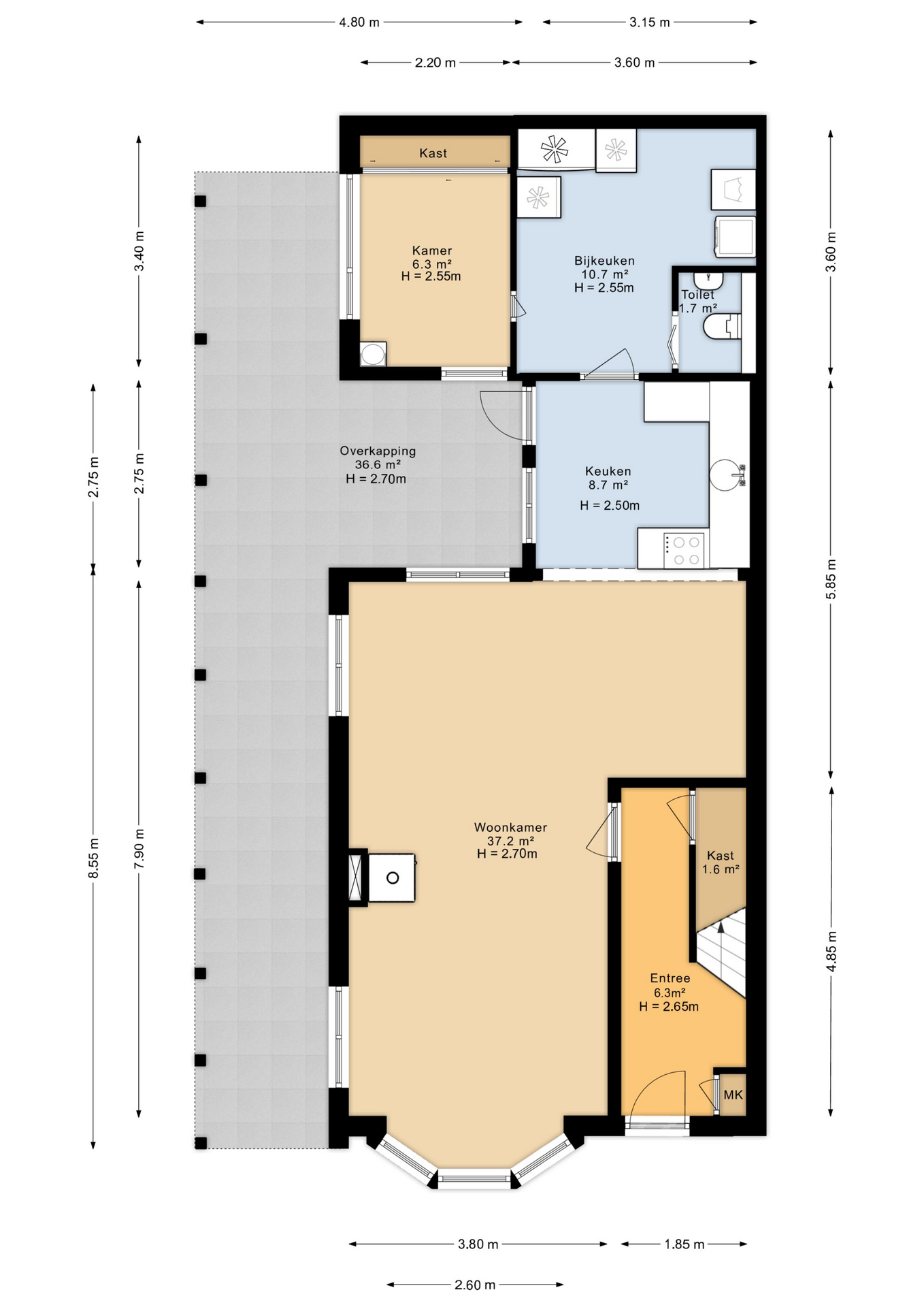
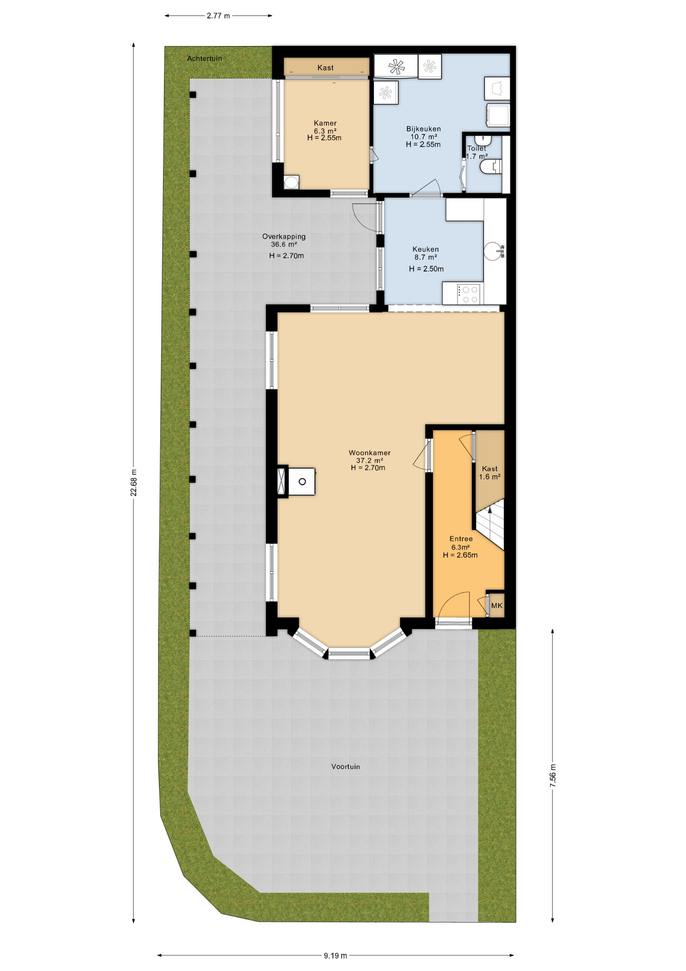
BEGANE GROND
Via de voortuin stap je binnen in de fraaie entree met originele glas-in-looddetails. De ruime hal geeft toegang tot de meterkast, trapopgang en de woonkamer met open keuken. De woonkamer van bijna 40 m² ademt sfeer dankzij het authentieke balkenplafond, de sfeervolle houtkachel en de erker aan de voorzijde die zorgt voor extra licht en karakter.
De open keuken (2007) staat in directe verbinding met de achtertuin en de bijkeuken. De bijkeuken van bijna 11 m² is voorzien van witgoedaansluitingen, toegang tot het toilet én een extra kamer die gebruikt kan worden als werkruimte of eenvoudig om te bouwen is tot slaapkamer met badkamer, zodat levensloopbestendig wonen tot de mogelijkheden behoort.
EERSTE VERDIEPING
De overloop leidt naar drie slaapkamers en de badkamer. Aan de achterzijde bevinden zich twee kamers, waarvan één van ruim 15 m² en de ander toegang biedt tot het platte dak. Aan de voorzijde ligt nog een fijne slaapkamer van ca. 13 m² met prachtig uitzicht over het straatbeeld en de wijk. De badkamer is compleet uitgerust met ligbad, douche, wastafel met meubel en een tweede toilet.
ZOLDER
De tweede verdieping biedt een verrassend ruime zolder met een nokhoogte van 2,12 meter, ideaal als vierde slaapkamer of hobbyruim
Wonen in een charmante en ruime hoekwoning in de geliefde Vosseparkwijk van Leeuwarden is nu mogelijk aan de Bildtsestraat 73. Met een woonoppervlak van maar liefst 130 m², vier slaapkamers, energielabel C en de mogelijkheid tot levensloopbestend
Wonen in een charmante en ruime hoekwoning in de geliefde Vosseparkwijk van Leeuwarden is nu mogelijk aan de Bildtsestraat 73. Met een woonoppervlak van maar liefst 130 m², vier slaapkamers, energielabel C en de mogelijkheid tot levensloopbestendig wonen, biedt deze woning de perfecte combinatie van karakter en praktisch wooncomfort.
BEGANE GROND
Via de voortuin stap je binnen in de fraaie entree met originele glas-in-looddetails. De ruime hal geeft toegang tot de meterkast, trapopgang en de woonkamer met open keuken. De woonkamer van bijna 40 m² ademt sfeer dankzij het authentieke balkenplafond, de sfeervolle houtkachel en de erker aan de voorzijde die zorgt voor extra licht en karakter.
De open keuken (2007) staat in directe verbinding met de achtertuin en de bijkeuken. De bijkeuken van bijna 11 m² is voorzien van witgoedaansluitingen, toegang tot het toilet én een extra kamer die gebruikt kan worden als werkruimte of eenvoudig om te bouwen is tot slaapkamer met badkamer, zodat levensloopbestendig wonen tot de mogelijkheden behoort.
EERSTE VERDIEPING
De overloop leidt naar drie slaapkamers en de badkamer. Aan de achterzijde bevinden zich twee kamers, waarvan één van ruim 15 m² en de ander toegang biedt tot het platte dak. Aan de voorzijde ligt nog een fijne slaapkamer van ca. 13 m² met prachtig uitzicht over het straatbeeld en de wijk. De badkamer is compleet uitgerust met ligbad, douche, wastafel met meubel en een tweede toilet.
ZOLDER
De tweede verdieping biedt een verrassend ruime zolder met een nokhoogte van 2,12 meter, ideaal als vierde slaapkamer of hobbyruimte. Bij de trapopgang vind je de CV-installatie (2023).
TUIN & OMGEVING
De voortuin is beschut en biedt privacy, perfect om in alle rust van het buitenleven te genieten. Via de zijkant is de tuin verbonden met de overkapte achtertuin, die ook via de keuken bereikbaar is. De achtertuin beschikt over een achterom en is praktisch en onderhoudsvriendelijk ingericht.
De Vossenparkwijk staat bekend om haar karakteristieke jaren ’30-stijl en groene lanen. De Bildstestraat zelf is een geliefde en rustige straat met een prettige mix van gezinnen, jonge stellen en ouderen. In de directe omgeving vind je scholen, sportvoorzieningen, winkels en het gezellige centrum van Leeuwarden op fietsafstand. Het nabijgelegen Vossenpark en Westerpark bieden volop ruimte om te wandelen en te genieten van de natuur. Bovendien zijn uitvalswegen richting de ring en snelwegen uitstekend bereikbaar.
BIJZONDERHEDEN
+ 130 m2 Woonoppervlak;
+ 4 slaapkamers;
+ Energielabel C;
+ Cv-ketel uit 2023 (eigendom);
+ Woning vol Karakter;
+ Fijne ligging;
+ Mogelijkheid tot levensloopbestendig wonen.
Disclaimer
Deze informatie is door ons met de nodige zorgvuldigheid samengesteld. Onzerzijds wordt echter geen enkele aansprakelijkheid aanvaard voor enige onvolledigheid, onjuistheid of anderszins, dan wel de gevolgen daarvan. Alle opgegeven maten en oppervlakten zijn indicatief.
Toelichtingsclausule NEN2580
De Meetinstructie is gebaseerd op de NEN2580. De Meetinstructie is bedoeld om een meer eenduidige manier van meten toe te passen voor het geven van een indicatie van de gebruiksoppervlakte. De Meetinstructie sluit verschillen in meetuitkomsten niet volledig uit, door bijvoorbeeld interpretatieverschillen, afrondingen of beperkingen bij het uitvoeren van de meting.
Interesse?
Heb je interesse in deze woning of wil je een bezichtiging inplannen? Wij helpen je graag."*" geeft vereiste velden aan
Video
Plattegrond















