Auck Petersstrjitte 2 – Leeuwarden
Kenmerken
Status
Vraagprijs
Oplevering
Energielabel
Bouwjaar
Inhoud
Woonoppervlakte
Aantal kamers
Aantal slaapkamers
Aantal badkamers
Perceeloppervlakte
Buitenruimte
Ligging tuin
Oppervlakte
Garage
Omschrijving
Een unieke villa in Leeuwarden die alle ruimte en luxe biedt voor een groot gezin, een gezin met gasten, een generatie-woning of om deels te gebruiken als B&B. Deze woning is momenteel opgesplitst en ingedeeld in vier zelfstandige appartementen. Deze prachtige woning uit 2008 beschikt over maar liefst 360 m² woonoppervlak, is volledig geïsoleerd en fraai afgewerkt. Met tien slaapkamers, vier badkamers en een tuin die direct aan open vaarwater ligt, is dit een droomhuis voor wie houdt van ruimte en comfort. De huidige indeling in vier appartementen is eenvoudig terug te brengen naar één royale villa.
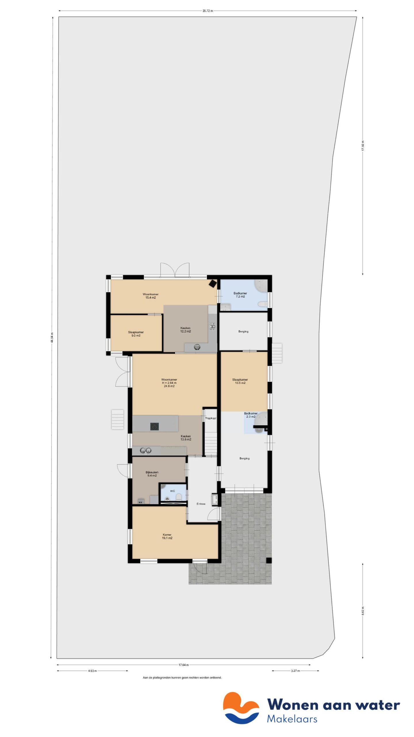
BEGANE GROND
De begane grond bestaat momenteel uit twee appartementen (voor en achter). Het voorste appartement is te bereiken via de royale entree, die uitkomt op de oprit. De entree geeft toegang tot een werkkamer, een modern toilet, een bijkeuken en de omgebouwde garage. De garage is voorzien van afvoer voor riolering, douche-unit, gootsteen en opbergruimte. Het woongedeelte heeft een grote open keuken, voorzien van luxe inbouwapparatuur, en een woonkamer met openslaande deuren naar de tuin.
Het achterste appartement is toegankelijk via de openslaande deuren aan de tuinzijde. Hier kom je binnen in de woonkamer met open keuken, die uitkijkt over de tuin. Dit appartement beschikt over een ruime slaapkamer, een volledig uitgeruste badkamer.
EERSTE VERDIEPING
De eerste verdieping bestaat uit een zeer ruime gang, 5 kamers, die op dit moment verdeeld zijn voor het gebruik als zelfstandig appartement. Daarnaast is er een dichte keuken, twee separate toiletten en twee badkamers op deze
Een unieke villa in Leeuwarden die alle ruimte en luxe biedt voor een groot gezin, een gezin met gasten, een generatie-woning of om deels te gebruiken als B&B. Deze woning is momenteel opgesplitst en ingedeeld in vier zelfstandige appartemente
Een unieke villa in Leeuwarden die alle ruimte en luxe biedt voor een groot gezin, een gezin met gasten, een generatie-woning of om deels te gebruiken als B&B. Deze woning is momenteel opgesplitst en ingedeeld in vier zelfstandige appartementen. Deze prachtige woning uit 2008 beschikt over maar liefst 360 m² woonoppervlak, is volledig geïsoleerd en fraai afgewerkt. Met tien slaapkamers, vier badkamers en een tuin die direct aan open vaarwater ligt, is dit een droomhuis voor wie houdt van ruimte en comfort. De huidige indeling in vier appartementen is eenvoudig terug te brengen naar één royale villa.
BEGANE GROND
De begane grond bestaat momenteel uit twee appartementen (voor en achter). Het voorste appartement is te bereiken via de royale entree, die uitkomt op de oprit. De entree geeft toegang tot een werkkamer, een modern toilet, een bijkeuken en de omgebouwde garage. De garage is voorzien van afvoer voor riolering, douche-unit, gootsteen en opbergruimte. Het woongedeelte heeft een grote open keuken, voorzien van luxe inbouwapparatuur, en een woonkamer met openslaande deuren naar de tuin.
Het achterste appartement is toegankelijk via de openslaande deuren aan de tuinzijde. Hier kom je binnen in de woonkamer met open keuken, die uitkijkt over de tuin. Dit appartement beschikt over een ruime slaapkamer, een volledig uitgeruste badkamer.
EERSTE VERDIEPING
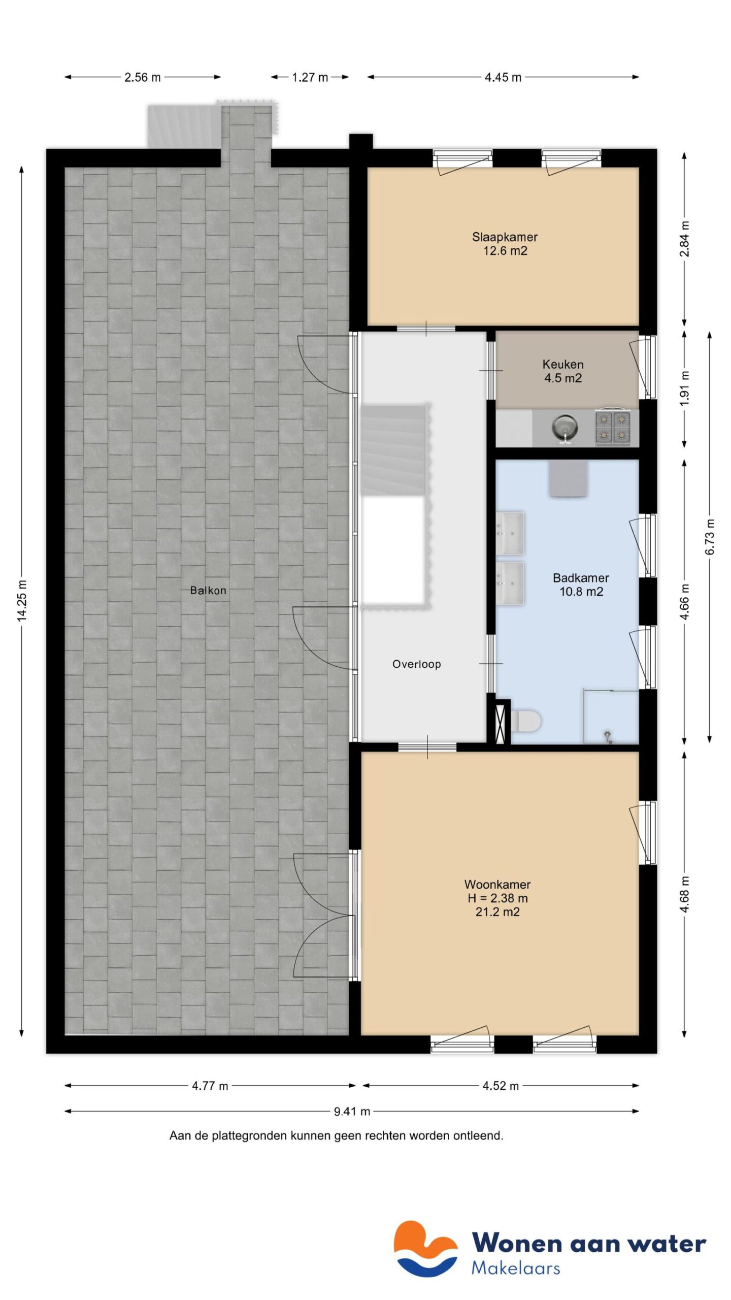
De eerste verdieping bestaat uit een zeer ruime gang, 5 kamers, die op dit moment verdeeld zijn voor het gebruik als zelfstandig appartement. Daarnaast is er een dichte keuken, twee separate toiletten en twee badkamers op deze verdieping, wat voor veel gemak zorgt. Aan de voorzijde bevindt zich een klein balkon op het zonnige zuiden, terwijl aan de achterzijde een groot dakterras op het noorden uitkijkt over het water, wat zorgt voor prachtige vergezichten.
TWEEDE VERDIEPING
De 2e verdieping heeft een groot dakterras op het Westen, ideaal om de gehele dag en avond van de (ondergaande) zon en het weidse uitzicht te genieten, Deze verdieping heeft 2 slaapkamers, waarvan de grootste (op het Zuiden), gebruikt kan worden als living. Verder biedt ook deze verdieping een keuken met inbouwkoelkast en oven en een zeer ruime badkamer met dubbele wastafel, douche en toilet.
TUIN
De villa is omgeven door een zonnige tuin, die ondanks de noordelijke ligging op verschillende plekken zon biedt. De tuin heeft meerdere toegangen vanuit de woning en ligt aan open vaarwater, met voldoende ruimte om twee à drie boten aan te meren. De ruimte rondom en de toegang tot het water maken deze tuin ideaal voor ontspanning en watersportliefhebbers.
OMGEVING
Gelegen aan de Auck Peterstrjitte in een rustige en groene woonwijk van Leeuwarden, biedt deze villa een perfecte combinatie van rust en bereikbaarheid. De ligging aan het vaarwater biedt directe toegang tot de prachtige Friese wateren, ideaal voor liefhebbers van varen en natuur.
Op korte afstand, buiten de wijk, vind je diverse voorzieningen zoals scholen, winkels en sportfaciliteiten, terwijl het bruisende stadscentrum van Leeuwarden op slechts enkele minuten rijden ligt. Met goede verbindingen naar uitvalswegen ben je bovendien snel onderweg naar omliggende steden en dorpen.
BIJZONDERHEDEN
+ 360 m2 woonoppervlak;
+ Op top locatie gelegen;
+ Te bewonen als deel of geheel;
+ Unieke architectuur;
+ Aan vaarwater gelegen;
+ Energielabel A.
Disclaimer
Deze informatie is door ons met de nodige zorgvuldigheid samengesteld. Onzerzijds wordt echter geen enkele aansprakelijkheid aanvaard voor enige onvolledigheid, onjuistheid of anderszins, dan wel de gevolgen daarvan. Alle opgegeven maten en oppervlakten zijn indicatief.
Toelichtingsclausule NEN2580
De Meetinstructie is gebaseerd op de NEN2580. De Meetinstructie is bedoeld om een meer eenduidige manier van meten toe te passen voor het geven van een indicatie van de gebruiksoppervlakte. De Meetinstructie sluit verschillen in meetuitkomsten niet volledig uit, door bijvoorbeeld interpretatieverschillen, afrondingen of beperkingen bij het uitvoeren van de meting.
Interesse?
Heb je interesse in deze woning of wil je een bezichtiging inplannen? Wij helpen je graag."*" geeft vereiste velden aan
Video
Geen video beschikbaarPlattegrond











